Правильный подход к конструкции дымогенератора для коптильни

Посмотрите товары для изобретателей. Ссылка на магазин.
Что касается технологии копчения. Все ролики, снятые на канале, сделаны, отталкиваясь документа “Производство продуктов из свинины, говядины, баранины и других видов мяса”.
Ответ. Любой человек, который попробовал свежую копченую рыбку, приготовленную на костре или в какой-нибудь коптильне, “знает” о копчении всё. По крайней мере в 100 раз больше, чем технологи, которые пишут технологические карты и регламенты копчения. Такой комментатор, если он закоптил что-нибудь сам, а тем более не один раз, тут же становится непререкаемым авторитетом в области всего, что касается копчения. Да и во всех областях сразу.
Автор же такими глубокими познаниями похвастаться не может. Поэтому вынужден постоянно учиться, обращаясь к специальной литературе и профессиональным технологом.
Электроника для самоделок вкитайском магазине.
Дымогенератор своими руками: виды
Элементами дымогенератора являются:
- дымоход;
- заслонки;
- камера из трубы;
- компрессор.
Нет универсального вида дымогенератора, потому что разные умельцы используют для конструкции свои оригинальные идеи.
Использование электроплитки

Это единственный прибор, который должен быть в наличии. Другие элементы генератора дыма можно найти в «закромах» у многих хозяев. Это отрезок жестяной трубы, бездонная бочка, сетка из проволоки, щепки, фанерный лист. Конструкция проста, поэтому используют ее как временную коптильню.
Бочку «водружают» на плитку, засыпают щепки/опилки. Отступив сверху бочки на 1/3, крест-накрест устанавливают штыри из арматуры, на них укладывают сетку. Здесь крепят крючки либо просто располагают продукты. Закрывают импровизированный дымогенератор фанерным либо металлическим листом. Отрегулировав температуру, приступают к копчению.
В роли дымогенератора — огнетушитель

Еще один вариант, подходящий для коптильни объемом 1 м3, изготовить его нетрудно. Для производства дымогенератора необходим порошковый огнетушитель, минимальная длина 40 см, диаметр — 10. Понадобятся такие элементы и инструменты:
- труба, выводящая дым;
- трубка из меди, диаметр ее — 10-14 мм;
- компрессор небольшой мощности или компьютерный вентилятор;
- ниппель, сгон, тройник (3/4);
- штуцер;
- болгарка;
- сверла;
- тиски.
Сначала занимаются подготовительными работами: огнетушитель встряхивают, удаляют остатки порошка, тщательно чистят снаружи и внутри.
- Зафиксировав тисками, отвинчивают крышку, удаляют баллон с углекислым газом.
- Отступив от дна огнетушителя 30 мм, высверливают 2 отверстия для поддувала, их диаметр 10 мм.
- Трубку распиливают на 2 отрезка: один должен быть вдвое длиннее второго. В нем высверливают отверстия для подачи воздуха, вставляют в крышку огнетушителя, используя ниппель и тройник, пробку из пластмассы с отверстием для тонкой трубки.
- С противоположной стороны вкручивают дымоходную трубу.
- Соединяют дымоход и компрессорный шланг. Роль компрессора исполняет кулер ноутбука либо прибор для аквариума.
- Внутрь бывшего огнетушителя помещают пружину, изготовленную из толстой проволоки. Ее подвешивают либо фиксируют прутом из стали, конец его заводят в ниппель.
- Засыпают опилки или щепки.
Есть и другой вариант, где разрезается корпус. Верхняя часть его служит крышкой, что позволяет обойтись без демонтажа пускового рычага. Дымогенератор, бывший в прошлом огнетушителем, обеспечивает 7-8 часов бесперебойной работы.
Дымогенератор из отрезка трубы

Первым делом сооружают камеру. Высота конструкции обычно не превышает 80 см. Сверху и снизу предусматривают съемные крышки, позволяющие засыпать и удалять отработанные стружки-опилки. Однако самые простые дымогенераторы делают без отсоединяющегося дна, очищают их, переворачивая.
В других приборах предусматривают решетку для опилок, расположенную на некотором расстоянии от дна конструкции. Иногда оборудуют заслонку, но процесс «добывания» золы в этом случае усложняется. Обязательный элемент дымогенератора — поддувала, обеспечивающие тление опилок. Их диаметр — до 6 мм.
В верхней части камеры, с отступом менее 10 см от верха конструкции оборудуют дымоход. Штуцер приваривают перпендикулярно, он должен выступать за трубу на 6-8 см. Затем нарезают резьбу под фитинги. Присоединив тройник, монтируют 2 трубки: первая идет к компрессору, вторая предназначена для соединения с коптильней.

Есть иной вариант, похожий на действия с огнетушителем: не трогают боковые стенки, а тройник присоединяют к крышке дымогенератора. Таким образом, передний штуцер соединяют с коптильней, задний с компрессором. В обоих случаях используют маломощный компрессор, так как важен перманентный приток воздуха, а не мощная его струя.
Дымогенератор своими руками, чертежи и предпочтительный его вариант лучше выбирать, ориентируясь на готовые изделия, а с особенностями конструкций можно познакомиться, просмотрев видео. Одно из них, очень подробное и доступное, находится здесь:
Меры безопасности
Дымогенератор является устройством повышенной пожарной опасности. Несмотря на невысокую температуру процесса копчения, выполнение следующих правил поможет избежать неприятностей:
- Установка прибора производится на ровную негорючую поверхность.
- Окраска возможна только жаростойкой краской.
- Размещать аппарат нужно вдали от электропроводки, легковоспламеняющихся жидкостей и горючих материалов.
- Заводское устройство должно быть оборудовано системой аварийного отключения.
Выполнение этих условий поможет не только приготовить вкусную пищу, но и предотвратить возгорание и ущерб здоровью.
Дымогенератор для холодного копчения своими руками: чертеж
Составление чертежа – это необходимый подготовительный этап, который позволяет выполнить соответствующие расчеты и обозначить их на бумаге. В схеме обязательно обозначается корпус дымогенератора, который может иметь круглую или квадратную форму.
Корпус самодельного дымогенератора используется в качестве камеры, которая наполняется топливом. Стенки устройства обязательно должны обладать хорошей герметичностью. В противном случае дым, образованный при тлении опилок, будет рассеиваться в окружающее пространство.

Чтобы сделать дымогенератор для холодного копчения своими руками необходимо использовать чертежи
Сами устройства для копчения продуктов подразделяются на разновидности в зависимости от конструктивных особенностей и назначения. Сегодня можно встретить габаритные стационарные устройства или, наоборот, более компактные, переносные. В конструкции коптилки может присутствовать заслонка. Этот элемент позволяет увеличить приток воздуха в камеру, которая содержит топливо.
Самодельная коптильня холодного копчения может иметь две топки. Такая конструкция направлена на увеличение тяги в системе. Дымогенераторы используются как в горячих, так и в холодных коптилках. В чертеже указываются все составляющие элементы устройства. Обязательно нужно внести в схему эжектор и его размеры, а также компрессор.
Как сделать дымогенератор своими руками: изготовление эжектора
Эжектор – это устройство, которое является трубкой и используется для создания необходимого показателя тяги в дымогенераторе. Данный прибор классифицируют по месту расположения. В зависимости от этого фактора можно выделить два типа эжекторов:
нижние;

Любой дымогенератор для коптильни холодного копчения состоит из контейнера, насоса (компрессора) и эжектора
верхние.
Первый вариант не рекомендуется специалистами для коптилок, изготовленных собственноручно. Это связано с тем, что такое размещение препятствует притоку воздуха, что, соответственно, отражается на тяге в конструкции. Трубки, установленные в нижней части, требуют постоянного контроля, что не очень удобно. При составлении чертежа дымогенератора необходимо заранее продумать расположение данной трубки и зафиксировать его на рисунке.
Избежать проблем с тягой довольно просто. Все, что для этого нужно, –разместить эжектор в верхней половине дымогенератора. Такой ход имеет несколько преимуществ. Установка эжектора в верхней части способствует увеличению объема зоны сгорания. Топливо, расположенное внутри камеры, тлеет медленнее в этом случае, а также уменьшается вероятность того, что оно потухнет.
Так производится сборка эжектора для дымогенератора своими руками. Чертеж, фото и пошаговая инструкция – все это позволяет выполнить грамотную сборку данного изделия.

Схема эжектора для дымогенератора холодного копчения
Из чего сделать компрессор для дымогенератора своими руками?
Компрессор считается одной из важнейших деталей прибора, который генерирует дым для копчения продуктов. Его можно приобрести отдельно, после чего присоединить к конструкции. Но чаще всего для этих целей используются различные подручные материалы, которые можно найти в каждой квартире или доме.
Статья по теме:
Нагнетатель воздуха своими руками можно выполнить из старого кулера. Данная компьютерная деталь как нельзя лучше подходит для увеличения притока воздуха в конструкцию. Необходимо соблюдать порядок действий по трансформации кулера в компрессор.
В первую очередь потребуется взять пластиковую бутылку и обрезать ее верхнюю часть. Далее с помощью клея следует присоединить вентилятор к внутренней части обрезанного пластикового элемента. С другой стороны (к горлышку) подключается шланг. Второй выход трубки подсоединяется к дымогенератору. Такая конструкция отлично справляется со своей функцией. Единственный ее минус заключается в непрезентабельном внешнем виде.

Компрессор для дымогенератора своими руками можно выполнить из старой компьютерной детали — кулера
Еще одним распространенным вариантом является покупка аквариумного компрессора для дымогенератора. Многие люди отмечают, что устройство для производства дыма может работать и без компрессора. Но эффективность такой установки ниже, так как воздух поступает в нее естественным путем.
Таким образом, для увеличения производительности рекомендуется собрать компрессор. Причем необязательно, чтобы он имел сложную конструкцию. Простой вентилятор для дымогенератора своими руками значительно упрощает копчение, а на его производство уходит не более часа.
Модернизация
Описанная выше конструкция полностью работоспособна. Но она имеет много недостатков, не очень удобна. По результатам ее использования сделаны доработки и усовершенствования.
Регулируемая тяга
Один из главных недостатков описанной конструкции — плохая регулировка интенсивности горения. Ее можно немного изменить, регулируя производительность компрессора. В конструкцию можно добавить регулируемое поддувало. Его можно сделать по принципу шибера:
- В нижней части корпуса (выше места крепления стеки) приварить кусок круглой трубы длиной 10-15 см.
- Просверлить два отверстия, которые располагаются строго одно напротив другого.
- Взять пруток, которых проходит в эти отверстия. Его длина на 20 см больше диаметра трубы.
- Из листа металла (2-3 мм толщины) вырезать круг. Его диаметр чуть меньше внутреннего диаметра трубы.
- Из прутка сделать «ручку» (согнуть ее).
- Вставить в отверстия ручку, приварить вырезанный круг.
Все, регулируемая заслонка готова. Поворачиваете ее, регулируете интенсивность поступления воздуха, регулируя интенсивность горения.
Зольник
Еще один недостаток — через сетку просыпается зола. Можно ставить дымогенератор на металлическую пластину, но можно сделать зольник. Кстати, шибер можно сделать в зольнике. Это будет правильнее, так как подсос воздуха можно будет почти перекрыть, чего с шибером в корпусе не добьешься — воздух поступает через сетку.

Зольник — небольшая емкость по размерам чуть больше корпуса
Зольник делают из отрезка трубы чуть большего сечения, чем труба на корпусе. Если такой нет, придется сварить. К куску трубы приваривается дно, к корпусу — по периметру — тонкая полоса металла. Корпус вставляется в зольник (ножки привариваются также к нему).
Сбор конденсата
При работе дымогенератора для холодного копчения происходит выделение конденсата. Это осложняет жизнь, особенно если на улице температура невысокая. Решить проблему можно сделав сборник для конденсата. Для этого:
- выходную трубку дымогенератора опускаем вниз,
- в нижней точке устанавливаем емкость для конденсата, приварив к ней две трубы — одну напротив другой;
- с противоположной стороны труба снова поднимается вверх и входит в коптильный шкаф.
При таком устройстве значительная часть конденсата оказывается в емкости. Проблема стоит не так остро.
Дымогенератор из электроплиты
Для периодического копчения небольшого количества рыбы или мяса можно изготовить простой дымогенератор с использованием электрической плитки.

Понадобятся следующие составляющие:
- электрическая плитка;
- старая кастрюля;
- труба или бывшая в употреблении бочка,
- сетка из проволоки;
- два прута арматуры;
- лист железа, фанеры;
- опилки, щепки.

Коптильня должна располагаться на свежем воздухе, максимально далеко от жилых помещений. Для работы нужно электричество, возможно придется воспользоваться удлинителем. Иначе вещи в доме пропахнут дымом.

Пошаговая инструкция:
- Подготовить бочку. Тщательно очистить ее от остатков содержимого. Затем, отмерив примерно одну треть высоты от верха бочки, пропустить через ее стенки несколько арматурных прутов. На арматуру закрепить сетку, к ней подвесить необходимые продукты. Бочка готова к использованию.
- Устойчиво установить плитку на негорючую поверхность и подключить ее к розетке.
- Положить в кастрюлю древесное топливо.
- Кастрюлю поставить на включенную в розетку плитку.
- При помощи ручки регулятора температуры отрегулировать мощность ее нагрева.
- Поставить бочку на плитку.
- Прикрыть сверху конструкцию железом или фанерой.

Одна загрузка позволит работать такому дымогенератору для холодного копчения 4 — 6 часов. Усложняется процесс необходимостью постоянного контроля количества топлива и коррекции температуры тления. Бочку для этого придется периодически поднимать.

Несмотря на наличие недостатков в этой конструкции, многих пользователей привлекает простота сборки и низкие затраты на изготовление.

Зачем нужен дымогенератор
Есть два основных вида приготовления копчёных продуктов:
- Горячее, при температуре дыма 50-130°С. Этот процесс длится от 20 минут до 1 часа.
- Холодное, при температуре до 50°С. Длительность приготовления может достигать нескольких суток. За это время домашние питомцы могут попытаться стащить еду, если коптильня не закрывается плотно. Чтобы этого избежать, используют заборы и ограждения.
Когда-то для копчения продукты подвешивали над очагом, который топился дровами. Главная проблема классического способа копчения — необходимость постоянного контроля и большой расход дров.
На рисунке изображёна схема установки для холодного копчения с очагом и дымоходом в земле
Сейчас вместо очага используется дымогенератор — устройство, вырабатывающее дым и подающее его в коптильную камеру. От его температуры и состава зависит вкус копчёностей.
Главный плюс генератора дыма для коптильни в том, что он способен работать при минимальном контроле и для образования дыма использовать щепу и опилки.
Как пользоваться дымогенератором
Любая коптильня состоит из двух функциональных частей — генератора дыма и камеры для продуктов. В самых простых устройствах для горячего копчения, изготовленных из бочки или большой кастрюли, эти составные находятся в общем корпусе.
В генератор дыма помещаются деревянные опилки или щепки, желательно плодовых пород дерева. Опилки поджигаются или включается внешний нагрев. Выделяющийся при этом дым путём естественной тяги или при помощи компрессора поступает в коптильную камеру.
Путём изменения нагрева, количества поступающего воздуха или другим способом, зависящим от конструкции правильного дымогенератора, добиваются необходимого количества и температуры дыма.
В частном доме или даче есть все необходимые условия для установки устройства — крыльцо и навес, чтобы дождь не мешал процессу, или, на худой конец, крыша и хорошая кровля, где также можно установить коптильный шкаф. Если копчение будет происходить в квартире (чаще всего — на кухне), нужно предусмотреть вывод дыма через трубку в вытяжку и закрыть двери и окна, чтобы дым не распространялся по комнатам.
Устройство и работа дымогенератора
На рисунке изображёна простейшая схема дымогенератора:
На рисунке изображёна простейшая схема дымогенератора
Работа дым-машины заключается в производстве дыма и подаче его к коптящимся продуктам. Для этого на решётку укладывается щепа и поджигается, а компрессор передаёт воздух в коптильню.
Количество дыма зависит от свойств древесины, на которой работает дымогенератор, тяги воздуха через поддувало и показателей давления и производительности компрессора.
Как работает классический дымогенератор
Принцип работы дымогенератора прост:
- перед началом работы внутрь корпуса помещаются и поджигаются опилки;
- для лучшего горения и подачи дыма в камеру горения при помощи компрессора подаётся воздух;
- тлеющие опилки выделяют дым, который проходит по дымоотводящей трубке в коптильню;
- проходя по трубке, дым остывает до необходимой температуры, для контроля за которой в конце трубы или в коптильной камере устанавливается термометр.
Из чего состоит дымогенератор
Один из основных элементов для качественного копчения – это источник дыма. Обычно используют стружки или опилки, медленно сгорающие внутри генератора. При этом вы можете так собрать свой домашний дымогенератор, что одной загрузки дров будет достаточно для работы в автономном режиме на протяжении 24 часов. Для этого достаточно уменьшить поток подачи воздуха и увеличить объем щепы в загрузочной камере.
Комплектующие
Вариантов сборки также очень много, все зависит от технических возможностей и целей создания. Есть три основных элемента, без которых работа ни одного устройства не будет функционировать корректно:
- Контейнер (камера сгорания);
- Эжектор;
- Помпа для подачи воздуха.
Компрессор и вентилятор
При этом в процессе копчения продуктов есть свои тонкости, которые должны быть соблюдены:
- Минимальная температура поступления дыма;
- Длительность процесса;
- Не использовать хвойные опилки;
- Все продукты проходят предварительную очистку перед копчением.
Чтобы соблюсти все эти особенности процесса собирать основные элементы нужно правильно и тщательно. А чтобы продукты в вашей самодельной коптильне получились особенно вкусными, рекомендуется использовать щепки ольхи, вишни, яблони, груши или ивы.
Полезная информация! Когда ваша коптильня готова, попробуйте разные щепки, чтобы подобрать для себя самый лучший вариант, ведь каждая из них дает свой особенный вкус.
Собранная камера (коптильня)
Изготовление и сборка элементов конструкции
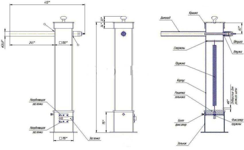
Корпус
Берем квадратную трубу (10х10х3 см, длиной 50 и более сантиметров; можно использовать трубу даже до 1 метра, но увлекаться не стоит, так как со слишком большим устройством труднее управляться, например, чистить его). Такие габариты трубы позволят наполнить дымогенератор опилками для обеспечения его работы в течение не менее 10 часов, именно столько времени можно будет производить холодное копчение на одном наполнении.
Сверлим в трубе соосные отверстия на расстоянии 6 см от верхнего торца, которые понадобятся для эжекторной втулки и дымохода. Подбираем диаметр, учитывая наружные диаметры данных приспособлений.
Отступив от верхнего торца на 10 см с помощью сварки внутрь крепим стальной стержень согласно ширине трубы, он будет выполнять роль верхнего пружинного зацепа.

Привариваем упор, который служит в качестве ограничителя при соединении зольника с корпусом генератора. Для изготовления упора пластина размерами 11,5х11,5 см и толщиной 0,6-0,8 см вырезается с отверстием в форме квадрата по размерам самой корпусной трубы.
Сверлим от нижнего торца на 4-5 см отверстие под розжиг древесины.
Эжектор и дымоход
В отверстиях, которые сделали в корпусе, привариваем на одной стороне эжекторную втулку, на другой трубу 3/4. Размер втулки нужно подбирать по штуцеру. Если используем камазовскую трубу, то предварительно припаиваем ее к штуцеру. Если токарный опыт отсутствует, обратитесь к профессиональному токарю.
Основными размерами данного узла являются диаметр (внутренней и внешней трубок агрегата) и длина захода внутренней трубки в выходную систему устройства.
Параметры выходного отверстия равны диаметру прохода трубы 3/4 дюйма. Для внутренней трубки оптимальным будет диаметр 6-8 мм.
При слабой воздуходувке рекомендуется внутренний диаметр трубки для эжектора 6-10 мм. Оптимальный заход меньшей трубы в большую (3/4) – 2 сантиметра. Перед пробным запуском внутреннюю трубку делайте с запасом. При необходимости ее можно будет укоротить до оптимальных размеров по результатам эксперимента.

Эжектор является важным рабочим элементом генератора дыма. Его устанавливают перед выходом из камеры сгорания. Если же трубка забора располагается внизу камеры, то этот узел устанавливают снаружи – на трубе, которая служит связующим звеном нижнего заборного патрубка и верхней трубы, которая подает дым в камеру копчения.
Пружина и решетка зольника
Подбираем по размерам и нагрузке пружину. Она будет вставляться в корпус генератора, обеспечит хорошую тягу и упростит проход дыма в эжекционную зону. Подойдет любая пружина, в том числе старая дверная – главное, чтобы по длине при килограммовой нагрузке она находилась в генераторном корпусе.
Занимаемся изготовкой решетки зольника. Для этого используем лист с перфорацией (отверстия должны быть не больше топливных щепок, а зола свободно проходить через них). Сгибаем лист П-образно, находим центр, вставляем болт М8х45, контрим с двух сторон. На конце болта проделываем дырку немногим более проволочного диаметра пружины. Можно использовать стандартный болт под шплинт.
Зольник
Сделать зольник несложно. Используем квадратную трубу (11,0х10,0х0,3 см, высотой 10 см) и опорную пластину (15,0х15х0,5 см), привариваем к ней нижнюю плоскость. Размер опорной пластины можно использовать и другой.

Сверлим для фиксации зольника к корпусу генератора отверстие М8, в которое будет вставляться болт. Затем сверлим еще 3 отверстия для самой заслонки (Ø8 мм) и 6 отверстий для крепления направляющих (М4).
Кроме розжига топлива заслонка нужна для того, чтобы регулировать тягу и интенсивность тления.
Крышка
Изготовляется по тому же принципу, что и зольник. Однако на верхней пластине с помощью сварки делаем ручку. Делая верхнюю крышку, не нужно сверлить дополнительные дыры, например, отверстия для вентиляции или те, что применяются для формирования дымохода. А вот приваренные по краю бортики будут кстати, они позволят плотно надевать крышку на корпус дымового генератора.
Сборка
Порядок сборки дымогенератора представлен на этой иллюстрации:

Конструкция собранного прибора представлена на этом чертеже:

Принцип работы коптильни
Чертёж самодельной коптильни
Процесс копчения производится благодаря тлению древесной щепы. Конструкция всех узлов подобного сооружения всячески способствуют процессу тления и выделения дыма. В состав коптильни входят три компонента:
- топка, в которой осуществляется сжигание щепы
- дымоход, выполняющий функцию доставки дыма и нагретого воздуха к месту копчения
- коптильной камеры – специальному пространству, в котором непосредственно и осуществляется процесс копчения
Копчение происходит следующим образом: в топке нагревается древесная щепа и начинает тлеть. Дым от тления по дымоходу поступает в плотно закрытую коптильную камеру, где воздействует на продукт – мясо или рыбу.
Коптильня на даче с основанием из кирпича
Отдельно следует поговорить о таком узле коптильни, как дымоход. Несмотря на кажущуюся простоту, это один из самых важных узлов всей системы. Именно он и выполняет помимо основной (доставки дыма к мясу) ещё четыре важных функции:
- Производит предварительное уменьшение температуры дыма до значений, допустимых при холодном копчении
- Способствует выпадению в осадок вредных веществ (в первую очередь, не окончательно сгоревших сложных углеводородов), что является гарантией хорошего вкуса и аромата получаемых продуктов
- Фильтрует в трубочном конденсате самые неприятные из несгоревших продуктов вещества – канцерогены
- Не позволяет угарному газу добраться до продуктов
Пример организации коптильни из бочки
Последнее обстоятельство очень важно, поскольку с точки зрения химии оксид углерода (он же угарный газ) является одним из самых активных веществ и может вызывать отравление, кроме того, пища, обработанная им, фактически получает химический ожог и её вкус становится не слишком приятным
Дымогенератор – что это такое

Дымогенератор – это специальное устройство, с помощью которого производится необходимое количество дыма, способное на протяжении долгого времени поддерживать процесс копчения и передавать при этом дым в коптильный шкаф.
Чертежи и схемы генераторов для самостоятельного изготовления можно без проблем отыскать в Интернете. На первый взгляд они могут показаться достаточно сложными, но если использовать подручные материалы и следовать советам специалистов, то аппарат можно легко изготовить самостоятельно. Основным преимуществом дымогенератора для холодного копчения есть то, что он работает в автоматическом режиме и за ним не нужно все время наблюдать.
Из чего состоит дымогенератор

Дымогенератор состоит из следующих частей.
- Корпус. Емкость имеет цилиндрическую или квадратную форму. Самый лучший материал для ее изготовления – это нержавеющая сталь. Но иногда можно встретить устройства, изготовленные с других металлов или сплавов. В случае самостоятельного изготовления оборудования может использовать термос или обычная труба, огнетушитель, газовый баллон и прочее.
- Дымоход. Он прикрепляется к корпусу и именно сквозь него дымовая смесь от эжектора попадает в коптильню. Для того, чтобы элемент фиксировался надежно, его нужно приварить или же использовать резьбовое соединение.
- Эжектор. Элемент конструкции, который обеспечивает необходимую тягу.
- Компрессор. Позволяет регулировать подачу воздуха внутрь конструкции.
Принцип работы дымогенератора
Если говорить о том, как работает дымогенератор, то все очень просто. Основным принципом работы устройства является пиролизное разложение древесины при минимальном поступлении кислорода. Если говорить более простым языком, то щепа или другое топливо нагревается внутри корпуса устройства и начинает тлеть практически без доступа воздуха.
Генераторы – это закрытые системы, которые могут отличаться друг от друга по конструкции. В заводских моделях, как правило, предусмотрены специальные переключатели, присутствует механизм дозирования опилок и контроллеры, которые отвечают за поддержание необходимой температуры.
Что собой представляет коптильня, конструкция
Холодильник сейчас – основная составляющая сохранения продуктов питания. Но в те времена, когда не было электричества, копчение продуктов было чуть ли не единственным способом заготовки. В первую очередь, таким образом продлевали срок хранения мяса, рыбы. Копченые, вяленые фрукты, овощи еще в Древнем Риме считались деликатесами. Свои рецепты и технологии копчения есть в каждом государстве. К примеру, знаменитый английский бекон, французский карбонат.
На Руси традиции заготовки способом копчения сохранились в древних времен. Доказательством служат археологические раскопки, сохранившиеся старинные рецепты. В барской усадьбе, поместье была своя стационарная коптильня. Коптить продукты умел каждый охотник. А самым распространенным способом в Древней Руси было подвешивание продуктов, завернутых в тряпки возле печи бани, которые топили «по-черному».
Различают продукты:
- горячего копчения;
- полугорячего копчения (температура 60-70 градусов);
- холодного копчения.
Лучший эффект с точки зрения сохранности пищи дает холодное копчение.
Особенности горячего копчения
Это способ, который предполагает быстрое приготовление продукта при более высоких температурах.
Можно выделить два режима:
- Температурный режим: 35-55 градусов, время от 12 часов до 2 суток.
- Температурный режим: 80-90 градусов, время от 20 минут до несколько часов.
Время приготовления зависит от того, что именно коптят. Срок хранения пищи после горячего копчения не превышает 3 суток.
Принцип устройства достаточно прост. Необходима емкость (коптильная камера), в которой устанавливаются решетки, крючки для укладки, подвешивания припасов. Форма камеры может быть округлой, квадратной. Под емкостью устраивают очаг, в котором должны тлеть опилки. Дым от них поднимается вверх, обволакивая подвешенные, разложенные припасы. Сверху камеру прикрывают влажной мешковиной, крышкой. В походных условиях можно накрыть свежими ветками деревьев. В крышке лучше сделать небольшое отверстие для выхода лишнего дыма.
Изготовить такого рода конструкцию можно из подручных хозяйственных материалов: ведра, бочки, корпуса старого холодильника, газового баллона. Простейшую коптильню делают из деревянной стойки, обтянутой плотной пленкой.
Схема коптильни горячего копчения довольно проста. Для домашнего пользования можно сделать малогабаритную переносную коптильню. Лучше всего из нержавеющего металла, толщиной не менее 2 мм. При определенных навыках такую коптильню можно сделать самостоятельно. В условиях дома или квартиры на сапун (выводное отверстие) надевают трубку и выводят дым в форточку, вытяжку.
Схема мобильной коптилки горячего копчения представлена в интернете.
Особенности конструкции коптильни холодным способом
Устройство дымогенератора, сделанного своими руками для холодного копчения должно осуществляться на участке земли под уклоном для лучшей тяги дыма. Но можно устроить его и на прямолинейном отрезке, главное – обеспечить хорошую тягу.
Холодное копчение – более длительный процесс, но именно он обеспечивает увеличения сроков хранения, придает потрясающий вкус продуктам. Температурный режим, сроки индивидуальны для каждого вида пищевых продуктов. В отдельных хозяйствах есть свои секреты копчения. В старину фирменные рецептуры хранились в тайне.
Температурный режим в среднем составляет 20-25 градусов, иногда его повышают до 30 градусов, но не выше 50. При более высоком температуре процесс ускоряется. Длительность копчения регулируются степенью готовности. Улучшенными вкусовыми качествами отличается пища, приготовленная при низких температурах. Чем длиннее дымоход, который идет от источника тлеющей щепы, тем ниже температура дыма. Еще одним преимуществом такого дымохода является более чистый дым. Канцерогены (полициклические ароматические углеводороды, ПАУ), сажа оседают на стенках дымохода.
Универсальный способ копчения обеспечит дымогенератор.
Дымогенератор для копчения своими руками
Из самодельного дымогенератора для коптилки, вследствие рассеивания и направления воздуха из компрессора и возникающего разряжения в дымоходе, происходит втягивание дыма в камеру, где предварительно заложены продукты. Чтобы правильно наладить процесс выработки газообразной массы (воздуха, дыма) необходимо придерживаться следующим рекомендациям, указывающим как сделать дымогенератор для коптильного аппарата.
Подготовка камеры сгорания
Для заготовки корпуса дымогенератора подойдет труба с внутренним диаметром 90 мм и длиной 50 см. Это оптимальные размеры, позволяющее избежать частой загрузки щепы.
Далее высверливают отверстия для дымохода и бобышки эжектора. Отступают 5-7 см от верха трубы и делают отверстия исходя от подобранных наружных диаметров дымохода и бобышки. Также просверливают отверстие в нижней части корпуса (3-5 см от дна) диаметром 10 мм для разжигания щепы.
К нижней части гайкой-барашкой прикручивается откидное дно, изготовленное по диаметру трубы для того, чтобы убирать золу.
Для отвода золы, внутри корпуса на расстоянии 2–3 см обустраивают решётку, которую прихватывают к корпусу сваркой. Можно решетку зафиксировать старой растянутой пружиной, подцепив другим концом пружины за трубку эжектора.
Крышка изготавливается в виде пробки. Можно взять пластину ∅100 мм и отрезать кольцо высотой 20 мм из трубы Ду 100 и по контуру обварить.
Схематический чертеж
Эжектор
Дымогенератор для коптильни холодного копчения своими руками обязательно оборудуется эжектором. При монтаже используются любые металлические трубки, которые соединяются между собой разными способами: пайкой, сваркой, резьбовым соединением. Различают несколько видов дымогенераторов для коптилки в зависимости от расположения эжектора:
- В нижней части корпуса генератора;
- В верхней части корпуса генератора.
В нашем случае рассмотрим расположение эжектора в верхней части дымогенератора.
Итак, передача для коптильни холодного копчения с дымогенератором, изготовленным своими руками предполагает использование трубки диаметром ¾ дюйма, которая служит дымоходом, бобышки и штуцера подачи воздуха. Дымоход и бобышка привариваются к проделанным отверстиям с помощью сварочного аппарата,
Штуцер с трубкой эжектора вкручивается в бобышку. Длина трубки подбирается из условий, что она заходит на 1 см в дымоход (более наглядно показано на схематическом чертеже). Далее к штуцеру присоединяется гибкий шланг от компрессора.
Компрессор
Насос для подачи воздуха в штуцер приобретается в зоомагазине. Это агрегаты, которые используют для аквариумов. Основной критерий выбора — производительность (литры в час). Данный дымогенератор для копчения своими руками предполагает эксплуатацию небольшого компрессора – до 60 л/час.
Коптильная камера
Перед монтажом генератора своими руками по производству дыма необходимо определиться с объёмом коптильной камеры. Она не должна быть большой и может представлять собой бочку, деревянный или картонный ящик. Главное условие – герметичность стыков, наличие дымаря (для циркуляции дыма и отвода конденсата) и поддержание постоянного температурного режима.
Дымогенератор вставляется в отверстие и крепиться консольно дымоходом к боковой стенке коптильной камеры. Дополнительно устанавливаются фиксаторы дымохода или, как вариант, сделать фланцевое соединение.
Щепа
Сделать дымогенератор для холодного копчения своими силами несложно, но для самого процесса приготовления пищи нужно использовать правильное сырьё. Для этого используют щепу плодовых пород деревьев и ольхи.
Как обращаться с дымогенератором

Как только все элементы собраны, можно приступать к холодному копчению мясных и рыбных продуктов. Процесс введения в эксплуатацию выглядит так:
- В камеру сгорания загружается щепа. Сколько ее потребуется для копчения, определяется в процесс работы аппарата, так как этот показатель зависит от фракции топлива, его влажности и рабочей мощности. Также на расход влияет диаметр установленных труб.
- Нагнетатель включается на полную мощность.
- Щепа подпаливается через специальное отверстие. Удобно пользоваться газовой горелкой.
- Отрегулировать мощность компрессора, установив необходимые параметры.
- Выждать заданное количество времени, по необходимости подсыпая щепу.
- После каждых3-4 сеансов копчения следует производить тщательную очистку аппарата.
Если в результате работы выявлены какие-либо неточности в работе, то лучше довести самодельный генератор до идеала, чтобы результат копчения был удовлетворительным, а приготовленные продукты вкусными и безопасными.





