Двухэтажные дома: фото примеры удачных построек

Современный двухэтажный дом в стиле минимализма с 3 спальнями, балконами и гаражом на две машины, площадь – 190 м²Источник 1okunevo.ru

Небольшой коттедж в современном стиле на три спальни с гаражом, площадь – 205 м²Источник 1okunevo.ru

Современный двухэтажный домИсточник techwood-house.com

Двухэтажный особняк в европейском стиле с комбинированным фасадом, площадь – 140 м²Источник bepeza.ru

Компактный кирпичный домик в два этажа в минималистическом стиле, площадь – 113 м²Источник sip-panelis.ru

Двухэтажный дом в скандинавском стиле с плоской крышей, площадь – 126 м²Источник yandex.ru

Современный дом в футуристическом стиле с гаражом на два авто и двумя гостинымиИсточник belprim.ru

Двухэтажный дом в классическом стиле, площадь – 203 м²Источник podryady.ru

Домик в два этажа для узкого участка энергосберегающей конструкции, площадь – 126 м²Источник assz.ru

Особняк в два этажа в нео-колониальном стиле с панорамным окном, площадь – 174 м²Источник villa.ck.ua

Просторный дом в стиле модерн с гаражом, большой гостиной и кабинетом, площадь – 197 м²Источник pinterest.ru
Сложности конструкции
На сложность возведения и увеличение стоимости могут повлиять следующие факторы:
Больший вес требует усиления фундамента и межэтажных перекрытий. В противном случае дом будет непригоден из-за опасности проживания в нем.

Самый простой проект дома 8 на 8 требует сложной системы водопровода и других коммуникаций, что влечет за собой усложнение схемы проекта, усложнение строительства и большие затраты.

Появляется необходимость в организации системы строительных лесов для работ на верхних этажах.

В таких домах увеличивается нагрузка на человека при перемещении. Необходимость преодолевать лестницы может сильно усложнить жизнь жильцам, особенно пожилым людям.






Требуется большее количество стройматериала, и в особенности утеплителя. Это обуславливается тем, что сопротивление ветру возрастает, и стены быстрее теряют накопленное тепло.

Усложнение расчета схемы и чертежей тоже влечет увеличение цены.

Электричество
Если рядом с вашим домом нет приемлемого варианта обеспечения электроснабжением, вполне возможно сделать такую систему автономной. Электрический генератор переменного тока на 25-50 киловатт обеспечит все потребности в электроэнергии с запасом.

Лучше всего использовать дизельный генератор. Он более надежен и потребляет меньшее количество более дешевого топлива, нежели бензиновый.

Электрогенератор на бензине менее надежен в эксплуатации, требует частого обслуживание и потребляет дорогое топливо. Такие генераторы, как правило, используются для временной эксплуатации в качестве резервной системы электроснабжения.
Особенности проектирования и строительства двухэтажных коттеджей
Существует несколько нюансов, которые следует обязательно учитывать при составлении проекта дома в два этажа.
Планировка. Стандартно на первом этаже размещаются гараж, кухня, гостиная, кладовые, гостевой санузел. На втором этаже находятся спальни, санузлы для семьи. Часто дополнительно оборудуются подвальные и чердачные помещения. В них обычно делают сауны, игровые комнаты или тренажерные залы. Но если типовая планировка вам не подходит, и вы хотите отступить от стандартных решений, готовый проект можно переделать или составить новый.

Пример планировки двухэтажного домаИсточник pinterest.com
Лестницы. По сути, проектирование лестниц тоже входит в предыдущий пункт. Но момент настолько обширный и значимый, что стоит рассмотреть его отдельно. Лестницы – один из основных недостатков двухэтажных домов. Во-первых, они отбирают полезную площадь. Во-вторых, это отдельная графа расходов на проектирование, материалы и строительные работы. В-третьих, лестница небезопасна, если в доме будут проживать маленькие дети, пожилые люди, инвалиды – это нужно учитывать еще на этапе выбора двухэтажного дома. Но и отказаться от лестницы нельзя. При грамотном подходе лестница будет успешно справляться со своими задачами без какой-либо угрозы для жильцов двухэтажного дома. И станет изюминкой интерьера, если ее красиво оформить в соответствии с общим стилем дома.

Удобная и безопасная лестница на второй этажИсточник yandex.ru
Фундамент. С одной стороны, площадь фундамента будет меньше, чем при возведении одноэтажной постройки. Но с другой стороны, он должен быть более прочным и надежным, чтобы выдерживать опорные перекрытия двух этажей
Важно не только правильно подобрать тип фундамента, его конструкцию. Учитывается также вид грунта, рельеф участка, климатические условия и количество осадков, и еще множество на первый взгляд мелких деталей
Однако если их проигнорировать, дом в лучшем случае исправно прослужит не более пяти лет, а в худшем – его эксплуатация завершится катастрофой.

Усиленный фундамент ленточного типа для двухэтажного домаИсточник expertns.ru
Все эти нюансы следует учитывать уже на этапе проектирования будущего дома своей мечты. Конечно же, человек, далекий от инженерии, архитектуры и строительства, самостоятельно с этой задачей не справится – проектированием должны заниматься только профессионалы.

Большой двухэтажный дом с открытой террасойИсточник mebel-go.ru
Из чего строить двухэтажный дом
Строительных материалов для возведения домов существует множество, выбор зависит от целого ряда факторов: финансовых возможностей, особенностей конструкции будущего дома, климатических условий региона, наконец, архитектурного стиля дома. Современные застройщики используют такие виды строительных материалов для двухэтажных домов:
кирпич различных видов;
керамоблоки;
газоблоки;
древесина.
В типовой застройке преобладают недорогие каркасные дома. Но в принципе сложно найти проект, в котором бы использовался только один вид материала. Обычно комбинируется несколько для цокольного этажа, внешних стен, внутренних перекрытий, чердачных и подвальных помещений.

Двухэтажный дом с комбинированным фасадомИсточник bankfs.ru
Подбор планировки двухэтажного дома
Планировка частного двухэтажного дома – довольно сложная и ответственная задача, которую следует доверять только профессиональным строителям с огромным стажем работы в данной сфере. Именно квалифицированные архитекторы и дизайнеры предоставят лучшие варианты готовых или индивидуальных проектов, которые будут отвечать всем требованиям владельцев земельных участков.
Современная планировка небольшого двухэтажного дома основную действующую роль предоставляет грамотному расположению жилых помещений. На первых этажах рекомендуется размещать гостиные помещения, кухни, ванные комнаты, туалет и кладовые. Если предоставленные проект имеет простую структуру, то идеальным вариантом экономии свободного пространства будет соединение кухни и столовой.

План 1 этажа двухэтажного коттеджа
План 2 этажа двухэтажного коттеджа
Планировка двухэтажного дома 10х12 и более крупных габаритов требует не только отдельного расположения основных помещений, но и установку стильных дверей или перегородок с уникальной дизайнерской конструкцией. По мнению большинства дизайнеров и архитекторов именно такой вариант идеально подходит для домов премиум-класса.
План двухэтажного дома с размерами, которые не превышают предыдущий показатель, так же подразумевают наличие стильных прохожих помещений из стеклопакетов и небольших балконов на втором этаже.
Второй этаж выполняется в виде мансарды (специального помещения под кровлей). Здесь имеется множество возможностей для использования данного помещения: небольшая спальня или детская, кладовое помещение, небольшой тренажёрный зал, бильярдная.

План двухэтажного дома 8×10 из бруса
План двухэтажного дома с гаражом – ещё одна категория проектов, которые приносят основную прибыль для большинства строительных компаний. Для возведения домов такого типа лучше всего подходит кирпич и бетонные блоки.

План 1 этажа кирпичного дома с гаражом
План 2 этажа двухэтажного кирпичного дома с гаражом
Если выбор пал на сторону древесины, может потребоваться дополнительная облицовка стеновых панелей для того, чтобы помещение гаража идеально гармонировало с основной постройкой.
Планировка двухэтажного дома 8х10 с отдельным помещением для гаража – более упрощённый вариант, который идеально подойдёт при наличии большой прилегающей территории. Кровля гаража и основного дома должны быть выполнены из одного и того же материала, а так же иметь одинаковую наклонную конструкцию.
Важно помнить, что составление плана двухэтажного дома с гаражом – один из самых сложных проектов, поэтому лучше всего воспользоваться готовым макетом, который может предоставить любая строительная компания. Проект двухэтажного дома с гаражом

Проект двухэтажного дома с гаражом
Ещё один немаловажный параметр, который следует соблюдать при возведении многоэтажных домов – подъёмная лестница. Грамотная планировка двухэтажного дома 10х10 требует обеспечения достаточного свободного пространства, на месте которого будет возводиться лестница. При этом владельцы дома могут воспользоваться небольшим помещением под новой лестницей, используя его в качестве кладового помещения.

Пример планировки двухэтажного дома 10×10
Если основная цель проектировщиков – планировка деревянного двухэтажного дома класса люкс, тогда потребуется уделить внимание дизайнерскому оформлению перил и опор лестницы, которые так же должны быть выполнены из высококачественной древесины
Канализация
Один из самых сложных вопросов загородной жизни. В наше время есть вполне надежные и недорогие варианты решения этой проблемы. Если монтаж сантехнического оборудования в доме, производится по стандартным схемам, то утилизация биологических отходов требует, порой, нестандартных решений. Конечно же канализация, скорее всего, будет автономной.


На первоначальном этапе планировки двухэтажного дома необходимо тщательно проработать вопрос утилизации бытовых отходов. Возможно, придется обратиться за дополнительной консультацией к подрядчикам, которые решают самые сложные задачи в этой области загородного строительства.

При строительстве любой загородной постройки, безусловно, лучше обращаться к профессионалам с надежной репутацией. Идеальный вариант — решить весь комплекс задач у одного подрядчика. Дополнительных специалистов стоит привлекать только в случае возникновения крайне сложных проблем, требующих специальных решений.

Возможные трудности
Основной сложностью при строительстве двухэтажного коттеджа можно считать значительное увеличение вкладываемых в строительство денежных средств, в сравнении с одноэтажными домами.

Это происходит, в первую очередь, из-за удорожания фундамента. Для того, чтобы основание выдерживало вес нескольких уровней, необходимо, чтобы оно было максимально прочным и надежным.

С этой задачей прекрасно справляются ленточные бетонные фундаменты, их характеристики позволяют удерживать вес дома, вместе со всем наполнением. Однако стоимость их строительства достаточно высока.


Также лестничный проем может стать причиной несчастных случаев, по статистике, падения с лестниц в частных домах — явление, встречающееся достаточно часто.

Поэтому тщательно взвесьте все «за» и «против», сделайте данную конструкцию максимально безопасной, обратившись к специалистам, они помогут составить правильный чертеж лестничного пролета, произведут качественную и надежную установку.
Планировка двухэтажного дома также будет усложнена:
- необходимостью установки добавочного усиления перекрытий;
- сложной схемой системы отопления;
- разветвленной и усложненной коммуникационной системой (водопровод, канализация);
- обязательным усилением утепления стен дома в силу возрастающей на них ветровой нагрузки и т.д.

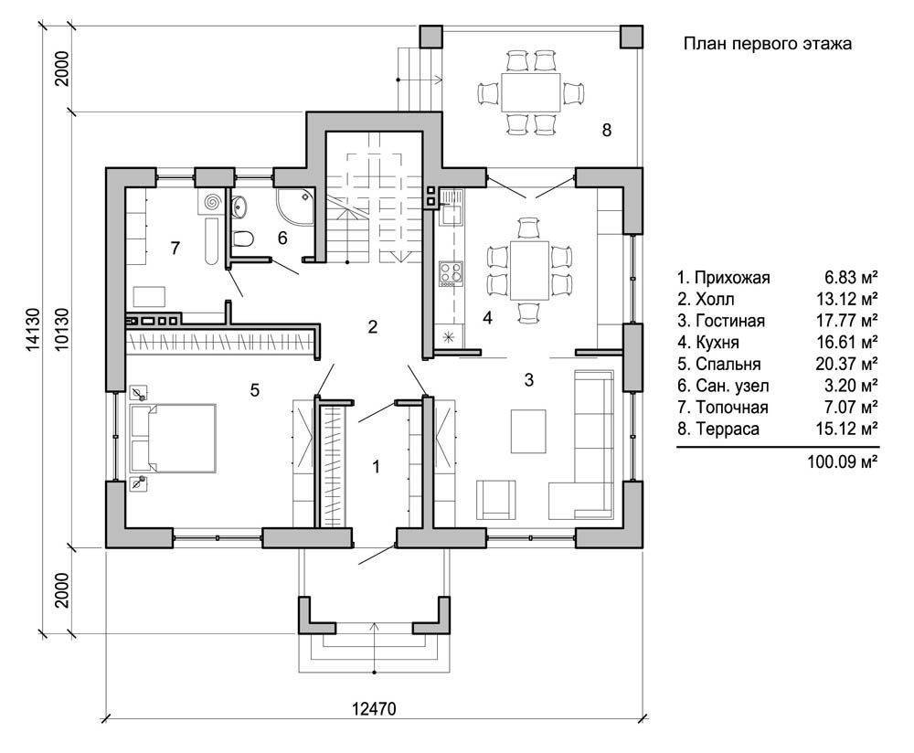
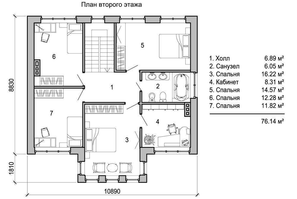
Двухэтажные дома: особенности планировки
Как говорилось выше, несомненное преимущество двухэтажных домов – большое разнообразие планировки и архитектурных приемов. При этом в большинстве случаев все же принято зонировать дом, размещая на первом этаже «общественные» и подсобные помещения – кухня, столовая, кладовка, котельная, гостиная, кабинет, на втором – спальни и детские комнаты. Особенно актуально такое разделение для домов с мансардой, у которых площадь второго этажа оказывается меньше.
На рис. 5,6,7,8 – двухэтажный дом из кирпича с гаражом и балконом, прямоугольной формы с размерами 15,48 м x 8,88 м.

Рис. 5. Вид фасада со стороны входа

Рис. 6. Вид фасада со стороны гаража

Рис. 7. План первого этажа

Рис. 8. План второго этажа
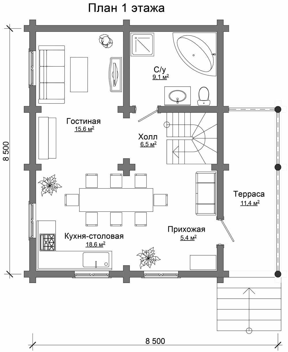
На рис. 9, 10,11 – проект двухэтажного дома с гаражом на две машины, особенность которого – крыша гаража используется как большая терраса с выходом со второго этажа, а в отделке второго этажа и гаража используется имитация бруса.

Рис. 9. Проект двухэтажного дома с гаражом

Рис. 10. План первого этажа
Размеры дома — 14,40 м x 16,00 м, на первом этаже – входной тамбур (1), холл (2), гардероб (9), санузел (8), кухня – 13 м2 (5), котельная (7,10 м2, , с двумя входами – с гаража и с улицы, гостиная (6) и кабинет (3)

Рис. 11. Планировка второго этажа.
На втором этаже – два санузла (18 – для хозяев и 15-гостевой), прачечная (17) и спальни (19, 20, 14), а так же терраса площадью 15,4 м2.
Разнообразные проекты двухэтажных домов, с мансардой, гаражом, из бруса и кирпича, выдержанные в различных стилях фото и видео:
Второй этаж – мансардный или полносветный?
Сложный выбор, но это всего лишь вопрос личных предпочтений и архитектурного стиля. Есть архитектурные стили где второй этаж обязательно должен c мансардой, тогда выбор очевиден. Если вы не ограничены этим, то давайте разберемся в каждом варианте.
Полносветный этаж
– это привычное и понятно всем решение, прямой и ровный потолок, высота потолка на ваше усмотрение. Чердачное помещение обычно холодное. Всегда можно осмотреть состояние кровли изнутри, а подкровельное пространство использовать для хранения вещей не боящихся перепадов температур.Мансардный этаж
– потолок как правило наклонный, зачастую сложной формы, но многим это и нравится. Опустив чуть-чуть кровлю мы сможем уменьшить высоту стен и немного сэкономить. Кровля теплая, чердачное помещение отсутствует. Высота стен в помещениях разновысокая, к периметру дома она уменьшается, к середине дома повышается. Для дополнительного или основного освещения применяются специальные мансардные окна.
Какой дом лучше одноэтажный или с мансардой?
При выборе проекта не стоит опираться на модные тенденции в строительстве коттеджей, важнее принять во внимание свой образ жизни, подсчитать, сколько комнат нужно вашей семье, определить, какой размер будет достаточным и рассчитать бюджет строительства. Если вы не совсем уверены, какой проект лучше всего подходит для ваших нужд, мы обсудим некоторые моменты, которые внесут ясность и помогут выбрать оптимальную планировку
По сути, строительство здания начинается с покупки строительного участка. Где он находится, какая у него форма, какая стоимость — от всего этого зависит, какой проект будет наиболее оптимальным для нас. Помните, что для одноэтажного дома требуется большой участок, а меньший участок, в свою очередь, подходит для коттеджа с мансардой.
Какой дом дешевле построить одноэтажный или с мансардой?
Если участок своими размерами не накладывает никаких ограничений на выбор проекта и все упирается в бюджет, давайте прикинем, что какое здание будет построить дешевле. Чтобы сравнить затраты на строительство дома с мансардой и без нее, мы должны определить некоторые базовые данные проекта. Предположим, оба здания имеют площадь 110 кв.м: в проекте дома с мансардой первый этаж занимает 60 кв.м плюс мансарда 50 кв.м. Оба будут накрыты простой двухскатной крышей.
При подсчете использовались расценки одних и тех же специалистов, и материалов из одной и той же ценовой категории. Расчеты показывают, что строительство одноэтажного коттеджа примерно на 10% дороже, чем коттеджа с мансардой. Это в первую очередь связано с более высокой стоимостью фундамента и крыши.
Рассмотрим детально из чего складывается разница в стоимости реализации этих двух проектов:
- Постройка несущих стен, перегородок и вентиляции для этих зданий одинакова.
- Строительство потолка в здании с мансардой будет на 10% дороже, т.к. требуется более прочный потолок между первым этажом и жилым чердаком.
- Стоимость внешней отделки у обычного одноэтажного дома будет на 10% больше, чем для его собрата с мансардой, за счет большей поверхности внешних стен.
- Стоимость лестницы добавляем в стоимость строительства коттеджа с жилым чердаком .
- Крыша составляет самую существенную разницу в стоимости этих двух проектов. Для дома с мансардой она составила всего 67% от стоимости крыши одноэтажного дома. Из чего складывается эта разница? У одноэтажного здания больше площадь крыши — это большие затраты на каркас, кровельные материалы, водостоки. Изоляция — также составляет существенную часть расходов — в случае одноэтажного здания нам надо изолировать общую площадь потолка 110 кв.м, в случае с жилым чердаком мы изолируем крышу площадью 90 кв.м
- Столярка — окна, двери. Стоимость примерно одинаковая в сравниваемых проектах.
- Полы. В одноэтажном доме поверхность пола составит 100 кв.м., в проекте дома с мансардой пол первого этажа 60 кв. м и 50 кв. м пола в мансарде. За счет экономии на тепло- и влагоизоляции пола мансардного этажа стоимость для коттеджа с жилым чердаком будет дешевле.
- Электрика, водопровод, отопление, штукатурка имеют одинаковую стоимость в этих проектах.
В соответствии с вышеуказанными затратами стоимость дома с мансардой составляет около 90% от строительства одноэтажного дома. Напомним, что общее пространство обоих зданий одинаковое. Однако, стоит помнить, что в в проекте дома с мансардой мы учитываем в общей площади и площадь под лестницу, и пространство со скошенными крышами. Фактическое полезное пространство в этом случае будет немного меньше.
Сравнительный анализ проектов показывает, что строительство коттеджа с мансардой немного дешевле. Экономия в основном обусловлена меньшим фундаментом и относительно небольшой крышей. Компактная форма такого здания делает стоимость строительства кв.м полезного пространства более бюджетной. Однако стоит отметить, что большинство коттеджей с мансардой имеют меньшую площадь, чем их одноэтажные коллеги. Поэтому не удивительно: чем меньше площадь, тем ниже затраты.
Материалы для строительства загородных домов
Для возведения двухэтажных коттеджей используются различные строительные материалы, которые на современном рынке представлены в огромном разнообразии.
Для этих целей применяется:
- брус;
- штучные материалы (пеноблоки, кирпичи, газоблоки);
- бревно.
Каркасная технология строительства сегодня наиболее распространена среди застройщиков, но применяются и другие варианты. Выбор сырья для возведения дома ограничивается исключительно бюджетными возможностями, а также вкусовыми предпочтениями будущего владельца.

Двухэтажный дом с пристроенным навесом и бассейном на заднем дворе
Особенности коттеджей, построенных из древесины
Древесина считается традиционным сырьем, используемым для строительства загородного жилья.
Она обладает несколькими преимуществами:
- надежностью;
- теплотой;
- экологичностью.
Коттеджи из древесины отлично сохраняют тепло. Нагревание здания происходит очень быстро даже после полного остывания. Это преимущество будет особенно выгодным для владельцев домов, используемых для проживания только сезонно.

Внутреннее убранство двухэтажного дома, возведенного из бревен
Что касается внутренней декоративной отделки, то деревянные коттеджи в ней практически не нуждаются, поскольку материал дома сам по себе выглядит красиво и очень естественно. Большая часть застройщиков предпочитает оставлять постройку в первозданном виде, так как на выполнение чистовых ремонтных работ может потребоваться существенная сумма.
В качестве сырья для строительства дома могут быть использованы следующие материалы:
- клееный брус;
- бревно;
- цельный брус.

Деревянное строение отличается экологичностью и естественной красотой
Даже небольшая ширина стен способна достаточно хорошо удерживать тепло внутри дома. К недостаткам зданий подобного типа относится необходимость выдерживать собранную коробку на протяжении 3-12 месяцев. На этот период работа останавливается, так как становится невозможной установка стеклопакетов и дверных конструкций в проемы, которые все еще может повести в сторону под воздействием усадки.
Особенности планировки двухэтажного дома 9 на 9: фото и план здания из газобетона
Строения, возведенные из кирпича, пеноблоков или газобетона, как на планировке двухэтажного дома 9 на 9 м, отличаются надежностью и долговечностью. Но это возможно только при условии строгого соблюдения технологии строительства.
Возведение подобных сооружений предполагает, что готовое здание будет обладать внушительным весом, а это значит, что следует основательно подойти к организации фундамента. Стоит учитывать, что дома из штучных материалов не позволят сэкономить. Основание плохого качества приведет к тому, что коттедж будет«гулять», что в итоге приведет к возникновению трещин и сделает дальнейшую эксплуатацию не только опасной, но и невозможной.

Проект 5. Фасад двухэтажного дома 9х9 м из газобетона
В таком доме хорошо сохраняется температура, однако это может быть возможным только в том случае, если здание не охлаждать. Как и любое другое каменное здание, изображенный на плане двухэтажный дом 9 на 9 м нужно долго прогревать, чтобы обеспечить комфортные температурные условия, поскольку материал на протяжении долгого времени способен поглощать тепло.
Постройки из штучных материалов дают определенную свободу в вопросах проектирования. Каменное сооружение может быть дополнено архитектурными элементами:
- аркой;
- эркером;
- балконом;
- закругленными угловыми зонами.

Проект 5. План первого этажа: 1 – прихожая, 2 – коридор, 3 – кабинет, 4 – гостиная, 5 – кухня, 6 – ванная. План второго этажа: 1 – коридор, 2 – детская, 3 – спальня, 4 – детская, 5 – ванная
Дома из бруса или оцилиндрованного бревна также могут быть построены с применением указанных элементов, но выполнить такую работу будет крайне сложно.
Использование каркасной технологии строительства
Каркасная технология возведения зданий может быть охарактеризована тремя словами: дешево, быстро, просто.

Возведение коттеджей по каркасной технологии обладает множеством преимуществ
Преимущества коттеджей каркасного типа:
- невысокие затраты на строительство;
- облегченный вес конструкции;
- возможность сэкономить денежные средства на этапе организации фундамента;
- высокая скорость возведения;
- отсутствие необходимости выдерживать коробку, давая ей время на усадку;
- практичность и простота эксплуатации;
- практически полное отсутствие ограничений в отношении формы здания, его габаритов.
Если строительство будет сопровождаться применением экологичных материалов, коттедж будет не хуже, чем деревянный.

Двухэтажный коттедж каркасного типа с небольшой площадью
Обзор и чертежи проектов двухэтажных домов
Не всегда удается с первого раза определиться с конструктивными особенностями будущего жилья. В настоящее время можно бесплатно найти чертежи проектов домов и коттеджей. Их можно использовать как идею для последующего воплощения.

Планировка дома 9 на 9 м: возможные варианты
При возведении строений с подобными габаритными размерами следует строго соблюдать технологию строительства. Внушительный вес предъявляет повышенные требования к основанию. Фундамент должен выдержать прикладываемую нагрузку.
Планировка дома 9 на 9 разрабатывается с учетом равенства стен. Спальни на втором этаже выполняются равной площади, если лестничный пролет располагается на другой стороне.

Разрабатывая планировкудвухэтажногодома 9 на 9 метров, следует уделить внимание каждому этажу. После этого можно будет приступить к оформлению фасада.


План двухэтажного дома 10 на 10 м: типовое решение
Если площадь участка позволяет, проектдвухэтажного дома 10 на 10 метров станет лучшим выбором. Такой площади будет достаточно для разработки подходящего решения и выбора оптимального планировки. План двухэтажногодома 10 на 10 м позволяет увеличить квадратуру отдельных помещений.

Проект двухэтажного дома 7 на 7 м
На небольшом участке возвести постройки с большими габаритами сложно. В этом случае целесообразно рассмотреть возможность возведения дома небольшой площади. При небольшой занятой площади приусадебного участка удается предусмотреть все основные помещения: кухню, спальни, гостиную.

Типовой проект двухэтажного дома 7 на 7 м позволяет стать обладателем комфортного жилья без значительных финансовых вложений. Однако не стоит экономить на используемых материалах.
Планировка дома 6 на 8 м: интересное решение
Прямоугольная форма дома предъявляет определенные требований к планировке дома 6 на 8 м. На первом этаже располагаются кухня с гостиной, а на втором по плану – спальни.

Если параметры участка не позволяют разместить двухэтажную постройку 6×8 м, стоит рассмотреть проект дома 8 на 6 м.

Планировка дома 6×10 м
Еще одним примером прямоугольной планировки является проект дома 6 на 10 м. Он предполагает размещение на первом этаже помещений, ориентированных на гостей, а на втором – спален для проживающих в доме людей. Площади достаточно, что предусмотреть гардеробную и даже небольшой спортивный зал.

Планировка дома 9 на 6 м: стандартные решения
Типовая планировка дома 9 на 6 м позволяет предусмотреть рациональное расположение всех основных комнат. Кабинет в этом случае может располагаться не только на первом этаже, но и на втором.

Прорабатывая проект дома 9 на 6 метров, следует добавить дому индивидуальности. Особенно, если в семье есть маленькие дети.

Планировка двухэтажного дома 12 на 12 м
Большая площадь дома позволяет предусмотреть наличие гаража. В двухэтажном доме 12 на 12 м можно запланировать гараж размером 6 на 6 м.

Правила планировки этажей дома
При разработке планировки домов и коттеджей с двумя этажами учитываются потребности всех членов семьи. Это позволяет не только сделать строение удобным для проживания, но учесть эксплуатационную нагрузку на перекрытия и фундамент. Кроме общей концепции прорабатывается план каждого этажа.

План строения прорабатывается заранее
Правильная планировка первого этажа
При разработке проекта небольшого дома правильной планировке уделяется особое внимание. Как правило, на первом этаже располагаются комнаты различного назначения, часть из которых является одинаковой для всех строений
Здесь чаще всего располагают:
- Гостиную, в которой будут принимать гостей;
- Кухню;
- Санузел для гостей;
- Прихожую или холл;
- Котельную или бойлерную.

План первого этажа разрабатывается с учетом потребностей конкретной семьи
Кроме перечисленных комнат при наличии свободной площади на первом этаже можно предусмотреть:
- Кабинет;
- Столовую;
- Гостевую спальню.

Если площадь позволяет, количество комнат можно увеличить
Бесплатно размещенные проекты коттеджей и домов свидетельствуют о возможности включения в план первого этажа гаража. Для него следует предусмотреть отдельный вход и возможность прохода внутрь дома. Чтобы план получился удачным, следует избегать длинных и узких коридоров. Добиться этого можно путем объединения нескольких помещений. Грамотное зонирование поможет отделить одну комнату от другой.

Гараж и терраса располагаются на первом этаже
Правильная планировка второго этажа
В классических проектах домов 2 этаж – зона отдыха всей семьи. Здесь принято размещать:
- Спальни;
- Гардеробную;
- Санузлы, оснащенные ванной или душевой кабиной;
- Детские комнаты.

Второй этаж является зоной отдыха семьи
Если площадь дома позволяет, на втором этаже можно разметить комнату, которая будет использоваться для семейного отдыха. Это своеобразный аналог гостиной, предназначенный исключительно для проживающих в доме людей.

Размер и количество комнат зависят от квадратуры здания

При наличии свободной площади можно предусмотреть дополнительные спальни
Правила совмещения нескольких помещений
Если площадь дома небольшая, можно совместить отдельные помещения, удалив некоторые перегородки. Такая студийная планировка позволяет добиться максимального увеличения свободного пространства. Чаще всего на первом этаже в единое целое объединяются кухня, гостиная и холл, с обязательным выделением соответствующих зон. Для кухни предусматривается островное размещение. Комплектация барной стойкой при таком варианте является обязательной. Ее форма зависит от формы помещения. Наибольшее распространение получили треугольные, полукруглые, П-образные конструкции, однако при желании можно сформировать произвольную систему по индивидуальному эскизу.

Вариант совмещения комнат на первом этаже
Совмещение нескольких помещений позволяет отказаться от коридоров. Из любой точки объединенного пространства можно будет попасть в кабинет или санузел. Если площадь помещений достаточно большая, от идеи объединения нескольких помещений на первом этаже стоит отказаться. В этом случае будет уместной установка внутренних перегородок, исходя из назначения комнаты.

Кухня, столовая и гостиная в одном пространстве
На втором этаже также стоит избегать формирования коридоров. Чаще всего организуются небольшие «пяточки» со свободным пространством, расположенным перед лестничным пролетом и используемым для прохода в комнаты. Иногда спальню совмещают с несколькими помещениями небольшой площади, которые используются в качестве гардеробных.

Для прохода в комнаты на втором этаже используется «пяточек» перед лестницей
Отопление
Современные технологии позволяют применять различные схемы отопления двухэтажного дома. Наиболее распространенная — автономная, когда источник энергии для отопления находится непосредственно в доме.

Как правило, это отопительный котел, работающий на различных энергоносителях:
- природный газ;
- электричество;
- дрова;
- уголь;
- дизельное топливо или мазут.

Самый оптимальный вариант, когда используется оборудование, работающее на различных видах топлива. Переход с одного вида топлива на другое не составляет большого труда. Используется то, что доступно в данный момент.

Если недалеко от дома проходит газовая магистраль, подключитесь к ней. В этом случае вы получите самый дешевый источник тепла для Вашего дома.

В двухэтажном загородном доме возможно использование как полного, так и частичного обогрева дома. Частичный обогрев нужен в том случае, если Вы не планируете жить там постоянно. В нежилой зоне можно использовать только минимальный подогрев для поддержания плюсовой температуры.


Архитектурные особенности
Материал из которого Вы решили строить дом имеет ключевое значение. Кирпичные или постройки из бетона прослужат дольше щитовых легких конструкций. Строения из бруса и бревен смотрятся наиболее изящно, здесь можно не опасаться за экологию.

Дом из бруса или оцилиндрованного бревна — одно из лучших дизайнерских решений. Варианты компоновки практически безграничны, а внутреннюю и внешнюю отделку можно оставить естественной. Правильно обработанное дерево не требует дополнительной декоративной отделки.

Строительство из кирпича повлечет дополнительные затраты из-за конструктивных особенностей, требующих применения ручного труда в больших объемах. Здесь нужен надежный фундамент, а также внутренняя, а, порой, и внешняя отделка.

Выбираем планировку дома
Существует негласное правило постройки дома – комнат должно быть больше на одну, чем количество постоянно проживающих людей.

При наличии маленьких детей, количество комнат можно корректировать, так как следует учитывать, что дети в будущем должны иметь свои собственные комнаты.

Очень часто бывает такое, что в архитектурном бюро вам понравился проект, к примеру двухэтажный дом 10 на 10. Однако вы понимаете, что для вашей семьи он маловат и хотелось бы больше пространства.

Таким образом, на этапе выбора проекта следует учесть все нюансы:
- Размер и площадь дома.
- Какой материал дома. Подходит ли он вам.
- Устраивает ли вас высота потолков, наклон кровли и прочие особенности, касающиеся конструктива дома.

Помните, что все изменения, которые касаются расположения стен, перегородок, можно реализовывать в процессе строительства. В случае, если вы хотите пропорционально увеличить размеры дома – это следует делать еще до закладки фундамента.

Плюсы и минусы проживания
Вторая часть вопросов не касается вашего кошелька, но их значение ничуть не меньше размера финансовых вложений. Сэкономив на стройке, вы можете столкнуться с серьезными неудобствами проживания. Поэтому рассмотрим более подробно, какие преимущества и недостатки есть у сравниваемых зданий.
Планировка помещений, не разделенных по высоте на два уровня, удобнее для жильцов. При грамотно составленном плане одноэтажки отпадает необходимость в коридорах, забирающих немалую часть площади.
В двухуровневом доме главная планировочная проблема – лестница. Если сделать ее удобной (широкой и некрутой), то она займет не менее 15 м2. Желание сэкономить на размерах делает ее неудобной и травмоопасной для пожилых людей и детей. Частично потери полезной площади можно скомпенсировать, разместив под лестницей гардеробное помещение или кладовую.
Второй этаж – желанный уголок тишины и отдыха для семьи. Поэтому здесь, как правило, размещают спальни. Шум хозяйственных и жилых комнат первого этажа сюда практически не доходит.
Если здание будет строиться в живописной местности, то нужно принять во внимание фактор обзорности. Двухэтажный коттедж в этом плане вне конкуренции
Сделав наверху открытую террасу или лоджию, вы сможете каждый день наслаждаться окрестными пейзажами. На первом этаже можно любоваться только красивым участком и забором.
С архитектурной точки зрения высокий фасад выразительнее и перспективнее низкого. На нем есть достаточно места для внешнего декора (колонн, пилястр, карнизов, поясков). Кроме этого, сторонники и противники высоких построек сходятся в одном: внешний вид таких зданий солиднее и богаче, чем у низких.
Если говорить о стоимости обслуживания, то у одноэтажного дома больше плюсов. Любую работу, связанную с восстановлением или заменой отделки, водосточной системы здесь можно сделать с обычной лестницы. Для ремонтных работ на высоком здании нужны строительные леса, самостоятельная сборка или аренда которых «выльется в копеечку».
Решая, какой дом построить, не забудьте соотнести его площадь с размерами участка:
-на 5-6 сотках оптимально размещается жилая постройка площадью 120 м2 (одно- или двухэтажная) для семьи из 4-х человек;
-участки в 10-12 соток лучше всего подходят для коттеджей до 200 м2;
-дом площадью 350 — 400 м2 требует не менее 15 соток свободной территории.
С точки зрения энергоэффективности двухэтажку можно было бы признать лучшим вариантом. Тепло из помещений первого уровня здесь не уходит на холодный чердак, а греет второй этаж. Однако, в двухэтажном доме больше площадь наружных стен и, соответственно, теплопотери через них больше чем в одноэтажном.










































