Декор
Декорирование откатных ворот возможно самыми разнообразными способами. Украшением может служить уже сама обшивка ворот, которую можно сделать из самых разных материалов.
Дополнительная облицовка металлическими лентами делает ворота более строгими и массивными на вид.
Установка запора на автоматические ворота обычно не требуется, так как они приводятся в движение с помощью пульта или кнопки. Открыть такие ворота руками попросту невозможно. Но на механические конструкции запорные элементы и замки нужны в обязательном порядке. Чаще всего устанавливаются простые запоры, которые сложно назвать декоративными.
Особенности расчета ворот
Особенности самостоятельного расчета
Расчет конструкции один из самых важных и первоочередных этапов. Игнорировать этот этап не стоит, так как сооружение откатных намного сложнее распашных.
Процесс расчета включает в себя следующие этапы:
- Определение высоты и ширины проема. В результате можно будет подобрать необходимый тип ворот для свободного передвижения.
- Расчет противовеса.
- Оценка веса сооружаемой конструкции.
- Изготовление эскиза или чертежа.
Расчеты откатных ворот
Более того, понимая, какой вес конструкции будет в конечном счете, подбираются соответствующие механизмы и движущиеся части, которые смогут справляться с нагрузкой.
Хотя самый простой вариант получения расчетов обратиться в специализированную компанию, которая предоставит папку с чертежами и расчетами, сделать это можно самостоятельно. Стоит сразу заметить, что все приведенные расчеты касаются откатных ворот консольного типа. Они сложнее от всех остальных типов, поэтому рассмотрим их подробней.
Данные высоты и ширины проема
Ширина ворот (L) будет равна:
- ширине проема;
- технологическим отступам открытия/закрытия;
- минимальному расстоянию между центрами кареток.
Исходя из этого L будет больше проема.
Расчет противовеса
При движении створки должны быть уравновешены. Этот показатель достигается расчетом противовеса. Благодаря этому удельная масса конструкции будет равномерно распределяться по кареткам. Соответственно, чтобы было как можно меньше нагрузки, противовес должен быть большим.
Но как быть, если для движения створки недостаточно места? В таком случае необходимо понимать, что длина противовеса не должна быть меньшей на 40% от ширины створки. Идеальным показателем является 50%. Как следствие ширина L в своей конструкции имеет противовес.
Расчет веса
Это значение определяется исходя из веса используемого материала:
- Профнастил ~ равен 4 кг/м2.
- Сталь, толщиной 2 мм ~ 17 кг/м2.
Ворота с каркасом 4×2 м в среднем будут иметь вес 200 кг. Имея такие данные, можно определить показатели направляющей балки. В этом случае можно отталкиваться от заведенного стандарта.
Расчет прочности фурнитуры
Для ворот потребуются ролики, улавливатели и поддерживающая шина. Современные изделия такого плана позволяют подобрать необходимую конструкцию. За основу возьмем простейшую оценку ветровой нагрузки, которая равна 12 м/с до 90 кг/м2 и равномерно распределяется по опорным зонам полотна.
Как убедиться в том, что изготовленная вами конструкция даже при сильном ветре будет работать без перебоев? Для этого необходимо достичь того, чтобы прочность фурнитуры была больше расчетной массе ворот. Также учитывается боковой момент в 100 кг/м, умножаемый на 8 кг/м, что равняется 800 кг/м. В принципе это немного ~ на каждый опорный элемент по 150–180 кг/м.
Дополнительные расчеты
Кроме всего перечисленного, стоит уделить внимание и другим аспектам. Обратите внимание на рейку для ворот, опоры под роликовые каретки и на количество анкеров
Также важно правильно рассчитать закладные на опорных столбах. В этом случае необходимо отталкиваться от 60% всей массы ворот, поделенных на количество закладных
Как сделать консольные откатные ворота
Эта конструкция хороша тем, что над проездом нет балок. Но она — самая дорогая в устройстве. Дело не столько в системе роликов, сколько в необходимости устройства фундамента с металлическими закладными, к которым затем будет крепиться консольная балка. Если столбы уже есть, фундамент заливается перед ним и вдоль забора на длину технического выноса, который необходим для компенсации нагрузки, создаваемой полотном.
Комплектация консольных ворот
Даже если делают консольные откатные ворота своими руками, комплект, состоящий из направляющей балки, роликов, концевых роликов и уловителей покупают обычно в фирме. Все запчасти рассчитываются исходя из размеров полотна, материала каркаса и типа обшивки: вес имеет существенное значение. Потому желательно со всеми этими параметрами определиться заранее.
Зная длину несущей балки, вы сможете рассчитать необходимый размер фундамента. По типу — это ленточный фундамент, котлован под него копают ниже глубины промерзания грунта (для каждого региона она своя), в который закладывают армированные опоры под пластины с роликами, а также устанавливают стойки. К этим стойкам затем крепится комплект верхних роликов, удерживающих полотно и не дающих ему раскачиваться.
Как рассчитать фундамент под крепление для консольной балки
Сложного при расчете ничего нет. Фундамент по длине равен почти половине длины пролета. Если пролет 4 метра (ширина проезда или расстоянием между столбами), то фундамент должен быть 1,8-2 м. Ширина его 40-50 см, глубина — ниже глубины промерзания грунта для региона.
Фундамент под консольную балку при строительстве откатных ворот
Котлован выкапывают еще на 10-15 см глубже — под гравийно-песчаную подушку. Этот фундамент армируют (по типу ленточного), в верхней его части к арматуре приваривается швеллер (18 или 20) и все это заливают бетоном. Швеллер выставляется в «нулевой» уровень, то есть он должен стоять на одном уровне с уровнем грунта или материалом, которым отделан двор.
Подготовленное армирование и закладной швеллер
Есть более дешевый и быстрый вариант, но по надежности он уступает описанному выше. В грунт вкручивают три винтовых металлических сваи, к ним приваривают швеллер.
Установка роликовых опор
К закладному швеллеру привариваются шпильки, к ним потом на болтовых соединениях крепятся платформы с роликами. Иногда можно встретить варианты, когда платформы приварены сразу к закладной. Это неправильно. Существует довольно большая вероятность того, что фундамент или столб забора даст усадку. Даже небольшое смещение — и ваши ворота работать не будут. Если ролики со шпилек можно снять, шпильки переварить и все собрать на место, то как корректировать если платформа приварена? Срезать? Сложно, долго, без гарантий. Так что лучше в этом случае делать все по правилам.
Пример крепления роликовых площадок
При покупке обратите внимание на роликовые каретки и на сами ролики. Это обязательно закрытые подшипники качения. Они обычно располагаются в два ряда по 4 штуки в каждом
Смазка в них должна быть морозостойкой — нижний предел температур -60°C. Осмотрите платформу, на которой они крепятся. Она должна быть стальной, литой, хорошего металла с оцинкованной поверхностью, покрыта защитной смазкой
Они обычно располагаются в два ряда по 4 штуки в каждом. Смазка в них должна быть морозостойкой — нижний предел температур -60°C. Осмотрите платформу, на которой они крепятся. Она должна быть стальной, литой, хорошего металла с оцинкованной поверхностью, покрыта защитной смазкой.
На ролики накатывается опорная балка, потому основную нагрузку несут они
Покатайте ролики. Все должны кататься без усилий, и не должны иметь люфта (не должны шататься из стороны в сторону). Тогда можно быть уверенным, что ворота будут ездить легко и откатной механизм будет работать продолжительное время (некоторые фирмы дают гарантию 10 лет). Ведь большая часть нагрузки приходится именно на ролики, потому их качество ключевой момент, как и сбалансированная конструкция полотна.
Остальные этапы монтажа более понятно будут описаны в фото-отчете: ворота собраны самостоятельно, без привлечения специалистов.
Про автоматику распашных ворот читайте тут.
Откатные ворота своими руками: фотоотчет с пояснениями
Эти ворота сделаны на основе готового комплекта, раму делали сами, также самостоятельно монтировали
Ворота ставились в Москве, соответственно цены — столичные. Ставили их в 2010 году, с тех пор комплекты сильно подешевели. Например, «свежая» цена привода для полотна весом не более 400 кг (есть до 1,2 т) — около 100$, но это — бюджетный вариант. Во времена строительства приобретены комплектующие фирмы Rolling Center (лучшие тогда на рынке) с ведущей балкой длиной 6 метров. Были также заказаны отдельно верхний ловитель и кронштейн. Все с доставкой обошлось около 600$.
Также были куплены следующие материалы:
- профильная труба 80*60 мм — 6 м, 60*40 мм — 18 м, 40*20 мм — 36 м;
- швеллер — 180 мм — 3 метра, 200 мм — 2,4 метра;
- арматура 12 мм — 6 м;
- электроды — 2 кг;
- краска — 3 банки, кисти, заклепки;
- цемент М-400 — 5 мешков;
- профнастил покупался при изготовления забора.
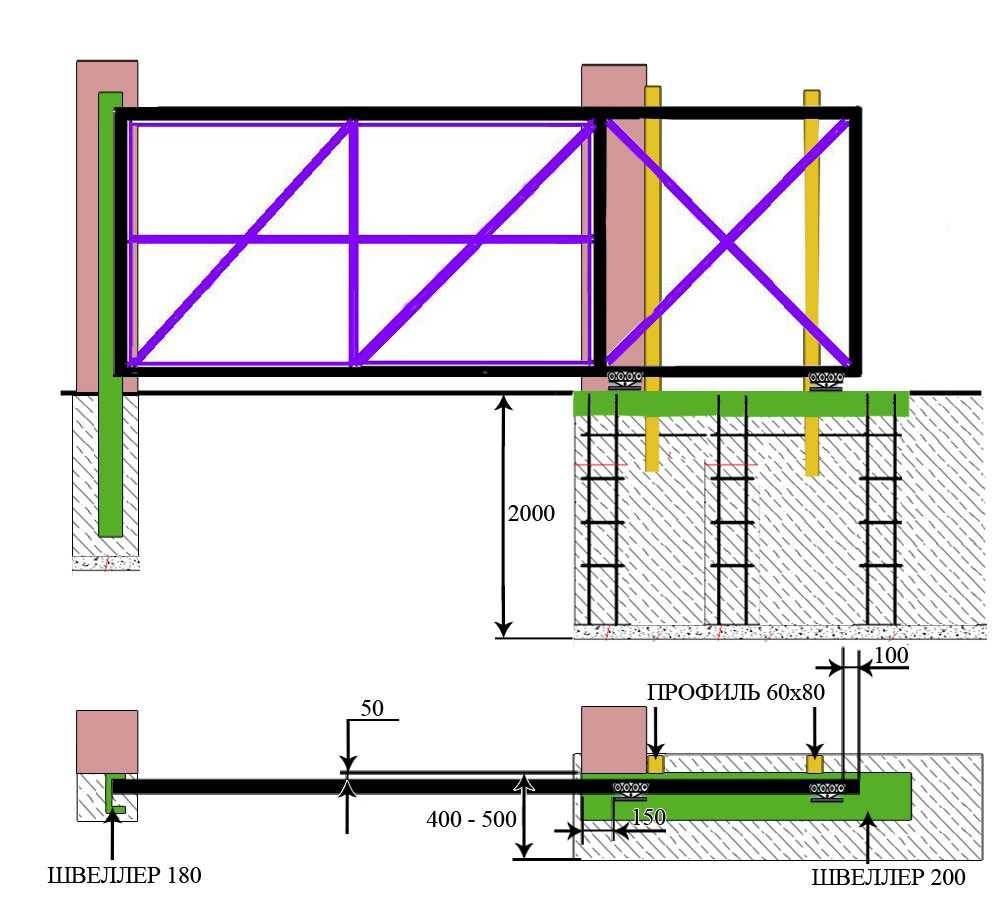
Схема откатных ворот с размерами
Первым делом сварили каркас для ворот с противовесом. Раму (черным цветом) делали из профильной трубы 60*40 мм, перемычки и внутренний каркас (сиреневый) из трубы 40*20 мм. Внизу приварена направляющая балка разрезом вниз.
Как варилалсь рама
Внутренний каркас варили с отступом от края — по 20 мм с каждой стороны. Так удобнее потом крепить профлист, при желании можно и изнутри обшить.
Как приваривать профильную трубу 40*20 мм
Сначала залили фундамент. В него установили арматуру, сверху швеллер спинкой вверх. Вплотную к швеллеру две стойки из профилированной трубы 80*60 мм. Одна стойка примыкает к столбу, вторая выставлена вертикально на расстоянии 120 см. На них потом навешиваются ролики, которые придерживают полотно сверху. С другой стороны, вдоль ответного столба установили швеллер 180 мм.
Швеллер на 180 мм прикрепили к ответному столбу
Примерка на месте
На ответной части к швеллеру вверху и внизу закреплены уловители, которые не дадут воротам болтаться при ветре.
Установленные на приемном столбе упоры
Верхний и нижний уловители
Следующий шаг — установка пластин с роликами. Они крепятся к закладным. В данном случае это швеллер, потому пространство получилось большое. Когда делали фундамент, его сделали слишком высоким, потому пластины приваривались непосредственно к закладной. Это непрактично: если поломается ролик, поменять его будет проблематично. Обычно приваривают площадку, к которой потом на болтах крепят площадку с роликами.
Приварены роликовые площадки и на них «наехали» роликами
Готовый каркас ворот просто накатывают на закрепленные ролики.
Фото створки на роликах с разных ракурсов
После установки на опорную балку с обоих концов надевают заглушки. С дальней стороны устанавливается еще упорное колесо, которое в закрытом положении заезжает в нижний уловитель, приподнимая ворота и снимая нагрузку с роликов.
Установка заглушки и упорного ролика (балка на фото перевернута)
Теперь, чтобы ворота не «гуляли» в верхней части (они сейчас ничем не закреплены), к стойкам (80*60 мм) крепят комплекты верхних роликов — по одному на стойку. Их практически надевают на раму. Теперь имеющиеся внутри ролики будут придерживать ее вверху.
Верхние ролики крепят на стойки, захватывая верхнюю кромку ворот
Так выглядят установленные верхние ролики
Все, откатные ворота своими руками собраны и готовы к эксплуатации.
Как выглядят откатные ворота со двора
Если остались вопросы, посмотрите видео. В нем собирают готовый комплект, весь процесс станет понятнее.
Это интересно: Качели из бруса — особенности, чертежи и изготовление
Эти ворота сделаны на основе готового комплекта, раму делали сами, также самостоятельно монтировали
Ворота ставились в Москве, соответственно цены — столичные. Ставили их в 2010 году, с тех пор комплекты сильно подешевели. Например, «свежая» цена привода для полотна весом не более 400 кг (есть до 1,2 т) — около 100$, но это — бюджетный вариант. Во времена строительства приобретены комплектующие фирмы Rolling Center (лучшие тогда на рынке) с ведущей балкой длиной 6 метров. Были также заказаны отдельно верхний ловитель и кронштейн. Все с доставкой обошлось около 600$.
Также были куплены следующие материалы:
- профильная труба 80*60 мм — 6 м, 60*40 мм — 18 м, 40*20 мм — 36 м;
- швеллер — 180 мм — 3 метра, 200 мм — 2,4 метра;
- арматура 12 мм — 6 м;
- электроды — 2 кг;
- краска — 3 банки, кисти, заклепки;
- цемент М-400 — 5 мешков;
- профнастил покупался при изготовления забора.

Автоматические ворота

Можно ли превратить раздвижные ворота на роликах, своими руками изготовленные, в автоматические? Когда-то это считалось роскошью, но в наше время подобное усовершенствование не вызывает удивления. Намного удобнее открывать ворота из салона автомобиля, когда на улице идет дождь или снег. Далее рассмотрим, как воплотить в жизнь это техническое новшество.
Приводы автоматического открывания для всех типов откатных ворот практически одинаковы. Это электрический двигатель с редуктором, приводящий в движение полотно ворот посредством шестеренчатой передачи. Для этого на воротах устанавливается зубчатая рейка. На современных приводах обязательно фиксируется устройство, позволяющее открыть ворота вручную, например, при отсутствии напряжения, и запирающееся на ключ. Кроме того, автоматические раздвижные ворота можно оснастить массой электронных систем: дистанционным управлением, кодовым замком, видеокамерой, сигнализацией.

Дистанционное управление представляет собой аналог автомобильного центрального замка с таким же пультом-брелоком. Пульт для кодового замка устанавливается на наружной стороне забора. Все эти устройства требуют предварительной прокладки кабелей как силовых, так и слаботочных. Поэтому схему следует продумать заранее, а лучше всего проложить провода с запасом. В землю кабель укладывается в полиэтиленовых трубах так, чтобы осталось место для затяжки дополнительного провода.
В продаже имеются самые различные комплекты для автоматических ворот, вопрос только в их стоимости. К сожалению, самостоятельно сделать такие вещи сложно, кроме знаний и практических навыков потребуются специфические детали. Но, как показывает опыт, подобные самодельные устройства не будут отличаться надежностью.
И все же вкратце опишем, как сделать своими руками раздвижные ворота, открывающиеся автоматически. Для начала нужен редуктор – его можно подобрать от какой-нибудь кран-балки или лебедки. Двигатель обычный, асинхронный, мощностью до 1,1 кВт. С зубчатой передачей придется повозиться, но и этот вопрос решаемый. Можно вместо нее применить цепную. Дистанционное управление нетрудно получить, состыковав китайскую GSM-сигнализацию с цепями управления приводом.
Из вышесказанного можно сделать вывод, что не стоит изобретать велосипед. Можно сделать своими руками раздвижные ворота, а блок управления лучше использовать заводского изготовления.
Откатные ворота своими руками: фотоотчет с пояснениями
Эти ворота сделаны на основе готового комплекта, раму делали сами, также самостоятельно монтировали
Ворота ставились в Москве, соответственно цены — столичные. Ставили их в 2010 году, с тех пор комплекты сильно подешевели. Например, «свежая» цена привода для полотна весом не более 400 кг (есть до 1,2 т) — около 100$, но это — бюджетный вариант. Во времена строительства приобретены комплектующие фирмы Rolling Center (лучшие тогда на рынке) с ведущей балкой длиной 6 метров. Были также заказаны отдельно верхний ловитель и кронштейн. Все с доставкой обошлось около 600$.
Также были куплены следующие материалы:
- профильная труба 80*60 мм — 6 м, 60*40 мм — 18 м, 40*20 мм — 36 м;
- швеллер — 180 мм — 3 метра, 200 мм — 2,4 метра;
- арматура 12 мм — 6 м;
- электроды — 2 кг;
- краска — 3 банки, кисти, заклепки;
- цемент М-400 — 5 мешков;
- профнастил покупался при изготовления забора.
Схема откатных ворот с размерами
Первым делом сварили каркас для ворот с противовесом. Раму (черным цветом) делали из профильной трубы 60*40 мм, перемычки и внутренний каркас (сиреневый) из трубы 40*20 мм. Внизу приварена направляющая балка разрезом вниз.
Как варилалсь рама
Внутренний каркас варили с отступом от края — по 20 мм с каждой стороны. Так удобнее потом крепить профлист, при желании можно и изнутри обшить.
Как приваривать профильную трубу 40*20 мм
Сначала залили фундамент. В него установили арматуру, сверху швеллер спинкой вверх. Вплотную к швеллеру две стойки из профилированной трубы 80*60 мм. Одна стойка примыкает к столбу, вторая выставлена вертикально на расстоянии 120 см. На них потом навешиваются ролики, которые придерживают полотно сверху. С другой стороны, вдоль ответного столба установили швеллер 180 мм.
Швеллер на 180 мм прикрепили к ответному столбу
Примерка на месте
На ответной части к швеллеру вверху и внизу закреплены уловители, которые не дадут воротам болтаться при ветре.
Установленные на приемном столбе упоры
Верхний и нижний уловители
Следующий шаг — установка пластин с роликами. Они крепятся к закладным. В данном случае это швеллер, потому пространство получилось большое. Когда делали фундамент, его сделали слишком высоким, потому пластины приваривались непосредственно к закладной. Это непрактично: если поломается ролик, поменять его будет проблематично. Обычно приваривают площадку, к которой потом на болтах крепят площадку с роликами.
Приварены роликовые площадки и на них «наехали» роликами
Готовый каркас ворот просто накатывают на закрепленные ролики.
Фото створки на роликах с разных ракурсов
После установки на опорную балку с обоих концов надевают заглушки. С дальней стороны устанавливается еще упорное колесо, которое в закрытом положении заезжает в нижний уловитель, приподнимая ворота и снимая нагрузку с роликов.
Установка заглушки и упорного ролика (балка на фото перевернута)
Теперь, чтобы ворота не «гуляли» в верхней части (они сейчас ничем не закреплены), к стойкам (80*60 мм) крепят комплекты верхних роликов — по одному на стойку. Их практически надевают на раму. Теперь имеющиеся внутри ролики будут придерживать ее вверху.
Верхние ролики крепят на стойки, захватывая верхнюю кромку ворот
Так выглядят установленные верхние ролики
Все, откатные ворота своими руками собраны и готовы к эксплуатации.
Как выглядят откатные ворота со двора
Если остались вопросы, посмотрите видео. В нем собирают готовый комплект, весь процесс станет понятнее.
Это интересно: Автоматические ворота своими руками: разбираем вопрос
Определяемся с размерами и проектируем чертеж
Чтобы правильно составить чертеж можно воспользоваться готовой схемой, взятой в интернете. Сначала нужно определиться с шириной проема, так как от этого зависят остальные размеры. При перпендикулярном въезде легковому автомобилю хватит 2,5 — 3 м. Грузовику или трактору потребуется не меньше 3,5 м. Если въезд возможен только под углом, ширина увеличивается в полтора раза. По условиям безопасности расстояние от наиболее выступающих элементов автомобиля до опорных столбов выбирается не менее 30 — 50 см. Оптимальной шириной проема, достаточной для удобного проезда всех видов транспорта, будет 4,5 м.
Ширина створки делается на 20 см больше размера проема, чтобы при закрытии по бокам не оставались щели. При установке нижний край створки приподнимается на 10 см от земли. Составляя чертежи, также необходимо учитывать толщину опорной балки, чтобы высота ворот была вровень с забором.
Чтобы створка при движении не проваливалась вниз, к ней приваривается откос, используемый как противовес. Его длину делают равной 0,5 ширины полотна. Всю нагрузку воспринимают опорные тележки, поэтому они крепятся к швеллеру, установленному на прочном бетонном фундаменте. Его также используют для монтажа электропривода дистанционного открытия ворот.
Чтобы правильно составить чертеж можно воспользоваться готовой схемой, взятой в интернете
Как правильно сделать своими руками?
Ворота изготавливаются поэтапно. Процесс делится на два шага:
- монтаж стоек для навешивания полотна;
- создание распашных ворот.
Монтаж опор
Опоры можно изготовить из:
- профильной трубы;
- столбов из бетона. Можно купить готовое изделие или произвести заливку самому;
- кирпича или натурального камня.
- деревянного бруса.
Монтаж опор может осуществляться при помощи следующих способов:
- забивка. Глубина забивки должна составлять около 1,5 метров. Данный метод считается самым быстрым и экономичным. При выборе такого метода следует внимательно следить за уровнем, чтобы ворота не перекосились;
- бетонирование с армированием. Вам потребуется произвести укрепление столба при помощи бетона.
Пошаговая инструкция по установке опор:
- если вы решили делать бетонирование, вам потребуется пробурить котлован с минимальной глубиной в 1 метр. Делать бурение необходимо буром, диаметр которого более 200 мм.
- глубина котлована будет зависеть от степени промерзания почвы в вашем регионе. Ширину сторон можно определить с помощью качества почвы и размеров самой опоры.
- создайте подушку для бетона высотой в 150-200 мм. Она должна состоять из песка и щебня. Подушка используется для исключения углубления стоек;
- затем потребуется монтировать столб и выровнять его с помощью строительного уровня. После выравнивания опоры можно приступать к заливке;
- забетонированная конструкция должна выстоять в течение недели. Это минимальный срок, который необходим для застывания бетона. Не забывайте периодически смачивать бетон водой, чтобы исключить появление трещин;
- чтобы повысить надежность опор, потребуется произвести армирование и вывести пару арматурных закладных под петли.
Создание створок
Перед тем, как начать строительство конструкции, следует определиться с местоположением и внешним видом ворот. Место, где производится монтаж изделий, может влиять на облик всех элементов.
Если вы планируете установить ворота на территории заднего двора, при въезде в садовую зону или создать ограждение для будущей площадки под строительство, вам потребуется выбирать простые материалы. Для парадных ворот следует выбирать более дорогие и презентабельные изделия.
Универсальное руководство для изготовления ворот своими руками:
- подготовьте чертеж будущей конструкции. С помощью схемы вы сможете произвести точный расчет необходимых материалов;
- рама для ворот должна соответствовать габаритам финишной отделки. Соблюдая данное условие, вы сможете упростить весь процесс работы и не столкнетесь с соединительными швами на лицевой части полотна;
- при произведении расчетов следует пользоваться показателями рабочей ширины отделочных материалов;
- чтобы создать компоненты для рамы, потребуется произвести отрез трубы нужной длины и отшлифовать ее;
- шлифовка требуется для очищения изделий от ржавчины. Если на металле присутствует масляная смазка, ее можно удалить с помощью растворителей.
Сварка
При взаимодействии со сваркой не стоит забывать о мерах предосторожности. Если у вас недостаточно опыта, обратитесь к специалистам. С помощью такого способа вы сможете повысить качество работы и получить конструкцию привлекательного вида
С помощью такого способа вы сможете повысить качество работы и получить конструкцию привлекательного вида.
Стыки следует осуществлять таким образом, чтобы в трубу не затекала вода. Если сварить стыки неправильно, в трубу будет попадать снег или вода, которые в теплую погоду начнут увеличиваться в объеме. Это приведет к расширению стенок изделия и деформации всей конструкции.
Ребра жесткости оказывают влияние на устойчивость к ветровым нагрузкам. Если вы производите зашивку забора с помощью отделочного материала, производите приварку трубы в средней части наружного шва. Таким способом вы обозначите место прикрепления обшивочного материала.
Приваривание петлей следует производить к столбам и к каркасу. Если вы использовали для изготовления столбов кирпичи, а отвод арматуры не производился, потребуется закрепить на кирпиче швеллер, после чего приступить к сварке петель.
Грунтовка
Независимо от того, какой материал вы используете для создания каркаса, для него потребуется грунтование. Грунтовка продлевает срок службы краски и делает процесс ее нанесения более комфортным. Места сварки следует грунтовать более тщательно.
Окрашивание каркаса
Перед покраской следует удалить с каркаса всю пыль. Чтобы покрасить деталь, можно использовать любой тип краски. Большинство людей пользуется краскопультом, так как он гарантирует более ровное наложение слоя. Использование кисточки затягивает процесс, но понижает расход краски.
О том, как установить ворота своими руками, смотрите в следующем видео.
Конструкция
Рассмотрим подробнее конструктивные особенности данного вида ворот.

Основой полотна консольных сдвижных ворот является несущая балка. Она представляет собой прокатный П-образный профиль, толщиной от 3 мм. Нижние грани должны быть параллельны земле для большей защиты, но между ними необходим зазор.

На эту балку монтируется все полотно ворот, включая противовес, поэтому подбирать габариты и толщину металла следует внимательно.

На фундамент устанавливается основание, обычно состоящее из швеллера с приваренными к нему болтами. На эти болты, впоследствии, становятся роликовые опоры, имеющие регулировку по высоте.

Размер роликовых опор должен соотноситься с размером используемой балки, а шаг между опорами выбирается исходя из ширины перекрываемого проема. Ролики откатных ворот необходимо периодически чистить от загрязнений и смазывать для плавной работы и отсутствия скрипов.

На торцы балки устанавливается крышка (на заднюю сторону) и поддерживающий ролик (спереди). Они служат для предотвращения съезда балки с роликовых опор, а поддерживающий ролик позволяет плавно заводить полотно в нижний ловитель, избегая ударов и повреждений.


Откатные ворота. Чертеж и схема откатных ворот.
Откатные ворота имеют настолько простую конструкцию, что никакой чертеж ворот Вам не потребуется. Ниже мы поясним Вам схему работы откатных ворот, после чего Вы без труда поймете их конструкцию, что от чего в ней зависит, что и как в ней можно менять на своё усмотрение. Итак, основой всей конструкции сдвижных откатных ворот являются 2 ролика и движующаяся по ним направляющая балка (иногда её называют «направляющим рельсом»). Посмотрите на фото ниже.
Направляющая, двигающаяся по роликам и есть основа всей конструкции. Направляющая приваривается снизу к каркасу ворот и вот уже весь каркас двигается по роликам. Так как ролики не должны находиться в проеме ворот, чтобы не мешаться под ногами, — их выносят в сторону, за пределы проема ворот, а откатные ворота соответственно удлиняют так называемым «противовесом». Общепринятой конструкцией является такая, при которой длина «противовес» равна половине длины проема ворот. Другими словами, для проема ворот в 5 метров, общая длина каркаса будет равна 5 + 5/2 = 7,5 метров. При этом 2,5 метра в этом каркасе будет тот самый «противовес», который является вылетом за пределы проема ворот и опирается на ролики.
Именно поэтому основой установки ворот является установка роликов. Именно ролики держат всю конструкцию и испытывают наибольшие нагрузки в сравнении со всеми остальными элементами конструкции сдвижных откатных ворот. Эти два ролика держат навису всё полотно ворот, поэтому их устанавливают на массивный железобетонный фундамент, в который, для удобства заливают закладную деталь, выполненную из швеллера. Это делается для упрощения последующего монтажа роликов и именно к ней впоследствии привариваются основания двух роликов, а ещё позже — основание для крепления двигателя механизма отката. (смотрите фотографию выше).
Все остальные комплектующие для откатных ворот практически не несут силовых нагрузок и служат для удерживания полотна ворот от раскачиваний. Все эти комплектующие для откатных ворот изображены ниже. Из них, поддерживающая шина (кронштейн квадратный с двумя резиновыми роликами), улавливатель нижний и улавливатель верхний — монтируются на столбы.
Давайте разберем поэлементно весь набор комплектующих, необходимых для установки откатных ворот. Посмотрите на схему ниже, на которой мы пронумеровали все элементы. Итак поэлементно согласно нумерации на схеме:
- Торцевая заглушка для задней части направляющей. Её предназначение отчасти декоративное, отчасти чтобы предотвратить набивание снега внутрь направляющей при откате ворот в зимний период если они откатываются, разгребая снег;
- Поддерживающая шина с двумя регулируемыми роликами (кронштейн квадратный с двумя резиновыми роликами). Она устанавливается в верхней части столба (ближайшего к закладной с несущими роликами) и просто удерживает полотно ворот в вертикальном положении от раскачивания и опрокидывания;
- Улавливатель верхний. Он устанавливается на «принимающем» столбе. Роль уловителя — удерживать полотно ворот от раскачивания когда откатные ворота закрыты;
- Улавливатель нижний. Практически то же самое, что и в предыдущем пункте, но с опорной площадкой, на которую закатывается опорный ролик когда откатные ворота полностью закрываются. Смысл в том, чтобы не только удержать откатные ворота от раскачивания, но и разгрузить ведущие ролики и направляющую, испытывающую сильные изгибающие нагрузки при полностью выдвинутых воротах;
- Опорный ролик. Данный ролик является одновременно и демпфером и заглушкой для переднего края направляющей. При закрытии ворот он закатывается в «нижний улавливатель» (см. предыдущий пункт № 4), демпфирует удар полотна закрывающихся ворот, опирается своим роликом на опорную площадку «нижнего улавливателя», снимая изгибающие нагрузки с направляющей и всего полотна ворот;
- Собственно сама направляющая (или «направляющий рельс»), благодаря которому откатные ворота и движутся вперед-назад по роликам (ролики на схеме откатных ворот под № 7). Как мы уже написали выше, направляющая заглушена с тыльной стороны элементом №1, с передней стороны элементом № 5.
- Опорные ролики с регулировочными подставками — элементы, несущие на себе основную нагрузку и обеспечивающие перекатывание откатных ворот. По сути это самые силовые элементы конструкции, требующие закрепления на прочном основании в виде закладной, обычно монтируемой на железобетонный фундамент.
Выбор материала для откатных ворот
Чтобы изготовить качественные и красивые откатные ворота необходимы хорошие материалы.
Лучше всего покупать материалы комплектом в специализированных магазинах либо через интернет.
Итак, разберемся, что же должно быть в монтажном комплекте для откатных ворот:
- 1. Каретки роликовые – 2 шт. (для движения направляющей).
- 2. Уловитель для створки нижний и верхний – 2 шт. (для дополнительной прочности в запертом состоянии).
- 3. Планка с поддерживающими роликами – 1 шт. (удерживает верхнюю часть створки при движении).
- 4. Ролик накатной или концевой – 1 шт.
- 5. Заглушки на направляющую – 2шт. (для закрытия направляющей от лишнего мусора).
- 6. Направляющая.
- 7. Электродвигатель с наличием зубчатой рейки, проводки и системы автоматики.
Для изготовления каркаса откатных ворот лучше всего подойдет металлический профиль 50х50 или 60х40 для наружного каркаса и 20х40 для внутреннего.
Для обшивки каркаса подойдет любой подходящий для вас материал будь это дерево, профлист или что-то еще. При выборе следует исходить из дизайна ограждения.
Источник фото: www.svoivorota.ru





