Турники в дверной проем
Распространенные конструкции турников для дверей показаны на рис. Для самостоятельного изготовления они мало пригодны: на изогнутые штанги-«рога» приходятся, из-за большого отношения плеч рычага, высокие нагрузки, поэтому делать их нужно из спецстали
И, обратите внимание – сборка только на болтах. Сварочные швы под такими нагрузками ненадежны

Турники в дверные проемы промышленного производства
Еще хуже обстоят дела с нагрузками на узел крепления к стене. Там отношение плеч доходит до (10-15):1 и нагрузки возникают колоссальные, а стена в этом месте, как правило, ослаблена. Если же главный в доме атлет, уходя, забудет снять турник, а слабой половине понадобится закрыть дверь, то недолго и до травмы: в процессе установки/снятия железина под 20 кг весом неизбежно оказывается над головой. В общем, домашние турники такого типа скорее маркетинговый ход.

Неудачные способы крепления турника к стенам и потолку
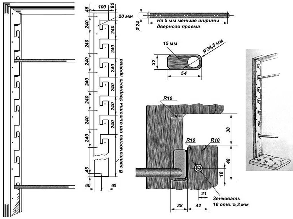
Полезнее и уж точно надежнее будет самодельный турник, устанавливаемый в дверной проем или коридор в распор или на боковых держателях. Тут есть определенные тонкости. Во-первых, съемная перекладина (гриф), вкладываемая в U-образные карманы (слева на рис.) неизбежно даст люфт. Заниматься, когда планка ходит в руках, неудобно и не весьма полезно, но, что хуже – резкие мгновенные нагрузки передаются строительным конструкциям. Которые на них ну никак не рассчитаны. Жесткое крепление к потолку (в центре) немногим лучше; человек-атлет – не люстра. И уж совсем недопустимо мягкое крепление с сосредоточением нагрузок, справа.

Надежные крепления домашних турников в проемах
Любительская конструкция турника в проеме приведена на поз. 1 рис. Подпятники установочных узлов – стальной лист 5 мм. Возможность съема грифа обеспечена удлиненной прорезью в нем с одного конца; сама перекладина короче ширины проема. Продольные прорези в обоймах установочных узлов обеспечивают плотный зажим грифа при стяжке болтами. Условия надежности такой конструкции таковы:
- От конца удлиненной прорези до края грифа – от 30 мм;
- Прорези в обоймах должны заходить за задние края отверстий под болты, но не более чем на 3-4 мм;
- Цельные края установленного грифа должны выступать за внутренний край прорезей в обоймах не менее чем на 30-40 мм.
Недостаток этой конструкции – «патроны», торчащие из стен прим. на 120 мм. Конструкция с зажимом перекладины гайками (поз. 2) позволяет уменьшить вылет узлов крепления до 50-60 мм, но все равно торчит, и резьбовые штыри травмоопаснее обойм из отрезков труб.
Оптимальная по механике и эргономике конструкция турника в проеме – с креплением грифа на бонках, поз. 3. «Саморез» там показан условно, на самом деле это болт от М12 в анкере, заглубленном в бетон не менее чем на 130 мм. Преимущество такого крепления также в том, что для установки/снятия грифа не нужен инструмент: резьба винтовых распоров в одного конца правая, а с другого – левая. Для установки гриф ставят по месту, распоры вывинчивают, пока те не упрутся слегка в бонки, и поворачивают перекладину руками. Только не переусердствуйте: фиксация «мертвая» и при небольшом провороте; если своими «клешнями» приложится здоровый дядя, то, неровен час, снимать турник придется болгаркой. Недостаток системы на бонках – требуются довольно сложные токарные работы.
И детям!
Вообще, турник для взрослых в проеме это, как говорится, паллиатив. Другое дело – начинающие крепыши. Статические нагрузки от них меньше взрослых соответственно весу, а динамические – на порядок, т.к. здесь действует квадрат мгновенной скорости перемещения частей тела. Поэтому детский турник в дверном проеме допустимо прикреплять непосредственно к раме двери, а его несущую конструкцию выполнять из прочного мелкослойного дерева лиственных пород.

Детский турник – шведская стенка в проеме двери
Схема и чертежи детского турника такого типа, совмещенного со шведской стенкой, приведены на рис. Трубы – сталь 20х1,5; деревянные детали – дубовая доска от 20 мм. Достаточная прочность и надежность обеспечены большим количеством точек крепления. Конструкция и соотношения размеров деталей установочных узлов позволяют выполнять и некоторые гимнастические упражнения.
О рукоятках
Крепко сидящие на местах и ухватистые рукоятки самодельных турников получаются из термоусаживаемых трубок (ТУТ) диаметром на 20-30% больше наружного диаметра трубы. Продаются ТУТ в радио- и электротехнических магазинах; усаживаются прогревом бытовым феном на полной мощности. Один слой усаженной ТУТ имеет толщину ок. 1,5 мм; слоев может быть несколько. Рифленые рукояти можно получить с помощью узких колец из тех же ТУТ. В общем, дешево и сердито.
Виды турников
В зависимости от конструкции и способа крепления, выделяют следующие разновидности турников:
Настенный турник
Конструкция турника предполагает вертикальное крепление к стене анкерными болтами (в двух, иногда в четырех местах). Надежный вариант для домашнего турника. Крепление к стене придает конструкции устойчивости.
Настенный турник можно монтировать только на надежную стену из бетона или кирпича. На тонкие деревянные или гипсокартонные перегородки такой турник устанавливать нельзя.
Угловой настенный турник
Вариант настенного исполнения, при котором крепление турника осуществляется в углу, между двумя перпендикулярно расположенными стенами. Угловое расположение позволяет создать дополнительное пространство для тренирующегося, задействовав угол.
Наддверный турник
Турник монтируется над дверным проемом. Таким образом, во время выполнения различных упражнений, корпус и ноги тренирующегося могут уходить в дверной проем.
Турник в дверном проеме
Самый популярный вариант домашних турников. Для тренировок задействуется дверной проем, благодаря чему тренирующийся имеет достаточное пространство и спереди, и сзади. Однако такие турники часто бывают ненадежны. Хотя турник в дверном проеме способен выдерживать 130 – 150 кг, на них не рекомендуется выполнять сложные упражнения, в частности упражнения в положении вниз головой. Из-за того, что оба конца турника углубляются в дверную коробку, порой бывает сложно оценить реальную надежность турника. Со временем дерево может деформироваться, а надежность конструкции снизится. Крепление непосредственно к бетонной или кирпичной стене является более надежным, чем в дверную коробку.
Выделяют два вида турников в дверном проеме:
Распорный турник
Крепится за счет внутренней распорной пружины. Такие турники обычно делают съемными. Обычно он выдерживает вес взрослого человека, однако из-за неправильного монтажа, раскачки при выполнении упражнений, или чрезмерной нагрузке может оборваться.
Раздвижной турник
Фиксируется посредством выдвижных телескопических труб. Крепится анкерными болтами, поэтому считается более надежным, чем распорный.
Турник в проеме между двумя стенами
Аналог турника в дверном проеме, но турник крепится не в дверную коробку, а непосредственно к стенам.
Далеко не во всех помещениях есть возможность для такой установки, но если такая возможность имеется, то это отличное место для турника.
Потолочный турник
Турники, крепящиеся к потолку во многом похожи на турники с настенным расположением.
Потолочные турники бывают самой различной конструкции, от самых простых, до более сложных, подразумевающих возможность подтягивания разным хватом.
Эффективный комплексный снаряд, позволяющий существенно расширить возможности для тренировок, добавив к подтягиваниям еще и отжимания на брусьях.
Инструменты и материалы
Первый вопрос, который возникает при выборе материалов – что лучше дерево или металл? Опытные матера рекомендуют использовать металлические детали, так как они отличаются более высокой прочностью и устойчивы к износу. Минусом металлического спортивного сооружения является высокая стоимость. Рассмотрим, какие материалы необходимо приобрести перед тем, как приступить к установке стандартного турника:
Чертеж турника
- труба 2,7 м на 25 мм;
- труба 10 м на 120 мм;
- уголок 20 на 20 на 4000 мм;
- электроды (для сварочного агрегата);
- краска.
Для укрепления вертикальных стоек турника потребуется выполнить бетонный раствор. Он изготавливается из следующих составляющих: щебень, песок, цемент. Для такой работы подойдет цемент марки M200. Также стоит заранее приобрести битумную мастику.

Важно! Расчет пропорций бетонного раствора проще всего реализовать, воспользовавшись специальным онлайн-калькулятором.

Перед началом сборки спортивного снаряда, стоит обратить внимание на фото готовых турников. Это позволит оценить преимущества той или иной конструкции, а также подобрать необходимое решение
После закупки всех необходимых материалов нужно подготовить следующий инструментарий:
- УШМ (болгарка);
- сварочный агрегат;
- электродрель, оснащенная коронкой на 31 мм;
- измерительная рулетка;
- уровень;
- молоток;
- мел;
- наждачная бумага (для затирки швов).

Кроме этого, для замешивания раствора понадобится металлическое ведро и лопата. Чтобы покрасить готовую конструкцию, нужно приобрести кисточку. На этом подготовка к установке турника заканчивается и можно приступить к основной работе.
Виды
Всего существует три вида турников, которые различаются по техническим характеристикам и способам крепления в дверной проём (съёмные и несъёмные). При выборе нужно учесть индивидуальные особенности каждого из турников: для распорного турника не понадобятся дополнительные болты, а вот с раздвижным лучше докупить пару запасных креплений.
Раздвижной
Один из наиболее простых вариантов спортивного снаряжения. Представляет собой 2 телескопические трубы, которые соединяются и имеют общую площадь. Крепится болтами по бокам дверного проёма. После монтажа снять подобную конструкцию не представляется возможным вариантом.
В сравнении с более быстрой установкой распорной перекладины, которая не крепится болтами, данный снаряд хоть и уступает по времени установки, однако и безопасность гарантирует гораздо больше. А также раздвижной механизм готов выдержать больше веса, нежели другие аналоги, что говорит положительно о нём, как о спортивном инвентаре.


Распорный
Монтаж этой модели напоминает раздвижной турник, однако у распорного есть преимущество: он крепится без использования болтов, а удерживается мощными пружинными механизмами. В любой момент подобный турник можно снять и переставить в другое место.
Некоторые распорные механизмы оснащаются дополнительной системой креплений, куда входят соединения посредством болтов. Это увеличивает допустимый вес, который перекладина способна выдерживать
Главное условие использования такого турника – осторожность и правильная установка. Если не соблюдать инструкцию, вероятность срыва конструкции велика
Важная особенность: материал стен, на которые будет опираться труба с пружинами, должен быть очень крепким и износостойким к деформации. Подойдут твёрдые породы дерева, такие как дуб.


Наддверный
Это конструкция, предполагающая использование свободного пространства над дверным проёмом, а не в нём. Крепится анкерными болтами, не мешает ходить через дверь, потому что висит гораздо выше проёма. Изо всех видов отличается усовершенствованиями: в наддверном турнике часто присутствуют ручки для разных хватов и упражнений.
Благодаря свободному пространству, которое не будет ограничено дверным косяком, появляется больше свободы перемещений. Именно наддверный турник позволяет делать полное подтягивание, не задумываясь о безопасности головы.

Как сделать дома?
Спортивное оборудование можно изготовить самому. Главное — подобрать необходимые чертежи турника для дома, и размеры деталей скорректировать согласно своим параметрам.
Вот примерная схема изготовления турника из стальной трубы и пары деревянных брусков. В деревянных опорах по центру высверливаются отверстия с диаметром, соответствующим диаметру трубы. На концах самой трубы потребуется сделать два крестовых распила, глубиной порядка 5-7 сантиметров. По сторонам срезаются два противоположных лепестка (расположение оставшихся лепестков должно быть одинаковым). А дальше поступают таким образом:
- На трубу нанизываются деревянные бруски.
- Лепестки разгибаются и плотно примыкаются к деревянному основанию.
- В проеме отмечается место монтажа элементов.
- Просверливаются отверстия в стене, на деревянных заготовках и металлических лепестках.
- По заготовленным отверстиям проводится фиксация труб с помощью деревянных брусков.
С данным турниками в общем-то все. ㅤ
А если заняться изготовлением турника для рук, то понадобятся водопроводные уголки и стальные фланцы. ㅤ
Изготовление происходит по следующей схеме: ㅤ
- К обрезкам стальной трубы, длиной примерно 15-20 см, приваривается воротниковый фланец.
- С другой стороны на обрезок устанавливается водопроводный уголок (заранее нужно подготовить резьбу).
- Длинный кусок стальной трубы, который будет основой турника, прикручивается к обрезкам с уже установленными уголками.
- Готовая конструкция фиксируется на стене при помощи дюбелей.
Более сложная конструкция — это настенный турник 3 в 1.
Процесс сборки выглядит примерно так: ㅤ
- Из квадратных профилей необходимо сварить конструкцию в форме буквы «Н»: боковины в среднем по 65 см каждая, перекладина – 55 см;
- К верхней части перпендикулярно вышеуказанной заготовке приваривается пара профилей по 55 см.;
- Между расходящимися профилями приваривается поперечная круглая труба, длиной 75 см, к ее концам приваривается еще пара обрезков по 20 см с ㅤнезначительным уклоном вниз.
- Отступив от верха примерно 15-20 см, между расходящимися профилями, параллельно верхней трубе с ручками, приваривается квадратный профиль, длиной 70 см.
- Между параллельным профилем и трубой закрепляется пара поперечных кусков профиля по 15 см, служащих для укрепления всей конструкции.
- Между концами квадратных профилей, от верхнего к нижнему, привариваются обрезки трубы, длиной 40 см каждый.
- К основанию конструкции в форме буквы «Н» привариваются ручки-продолжения и перпендикулярные ручки.
- К поперечине в форме буквы «Н» и на ее боковины привариваются куски металлических листов. После того, как конструкция будет окрашена, туда будут установлены специальные подушки. ㅤ
- Крепить такую конструкцию желательно к стене на стальные крючки. Этот тренажер должен быть съемным. Это довольно практичный вариант и подходит для использования даже в небольших по площади помещениях.ㅤ
Конечно, размеры турника приведены с учетом параметров среднестатистических пользователей. Их можно изменить, взяв за основу собственные объемы.

Эти советы и чертеж послужат подсказками при изготовлении этого довольно сложного турника.
Пошаговый алгоритм установки
Сборка турника, который будет располагаться на улице, включает в себя несколько последовательных этапов. Их точное соблюдение является залогом эффективного результата. Первое, что нужно сделать при сборке данного спортивного снаряда – выкопать ямы под вертикальные опорные трубы.

Интересно: Детские качели для дачи из металла
Для металлических стоек достаточная глубина составляет 60 см. Дистанция между ними должна быть не менее 1 м и не более 2 м. На дно каждого углубления необходимо насыпать 10 см песка, после чего утрамбовать данный слой.
Следующий этап – фиксация металлической перекладины к стойкам. Эта работа выполняется с помощью сварки. Во время сварочных работ необходимо выполнить ровный шов, который впоследствии обрабатывается наждачной бумагой. Далее, с помощью грунтовки, которая предохраняет металл от коррозии, обрабатываются нижние части стоек.

Сборка турника своими руками на улице выполняется в соответствии с чертежом и размерами, которые в нем указываются. Вертикальные металлические опоры устанавливаются в углубления и заливаются раствором
Во время заливки очень важно проконтролировать расположение стоек. Выравниваются они с помощью строительного уровня
Для сохранения устойчивости вертикальные опоры подпирают специальными деревянными кольями.
Турник из дерева
После застывания цемента турник готов к использованию. Чаще всего конструкции такого типа дополняются брусьями, которые очень просто организовать с помощью сварочного оборудования.

Сделать уличный турник для занятий спортом и брусья своими руками может любой желающий человек, не обладающий строительными знаниями и умениями. Однако необходимо провести грамотную подготовку и выбрать соответствующий вариант конструкции для сборки, подходящий под конкретные условия.
А какие советы по установке турника на даче знаете вы?
Как сделать П-образный турник с опорами из бруса
В этом случае потребуется массивный брус, бревно или доска для стоек и планка круглого сечения для перекладины. В качестве последней лучше использовать не только что срезанные и оструганные ветки подходящего размера, а качественное покупное дерево, прошедшее камерную сушку, причем твердых пород – дуб, бук, вяз, орех. Заменить такую перекладину можно металлической трубой.
Необходимые материалы для турника с приведенной выше схемы:
- брус 100х100 мм или кругляк диаметром 100…120 мм;
- кругляк или труба диаметром 30…35 мм с длиной 1,2 м и более;
- цементный раствор с добавлением шлака или щебня для бетонирования опор;
- скобы или фиксаторы для крепления перекладины.
Дополнительно можно выполнить раскосы для усиления конструкции.
Важно: если расстояние между опорами перекладины составляет более 1,2 м, использовать деревянную планку не стоит, слишком велик риск ее повреждения при неравномерных нагрузках!
Выполнение работ:
подготовить ямы для установки столбов. Заглубление должно быть не менее 0,5 м, при увеличении веса/роста пользователя необходимо увеличивать и заглубление. Так, для турника с высотой перекладины 2,2 м и выше лучше заглубить столбы на 0,7…0,8 м
Обратите внимание, глубина скважины под стойку должна быть на 10…15 см больше, чем планируемое заглубление;
на дне ямы устроить подушку из смеси песка и щебня, чистого песка или щебня, бутового камня и других подобных материалов толщиной 10…15 см. Желательно выполнить трамбовку;
стойки, обрезанные до нужной высоты, обернуть в нижней части гидроизолирующим материалом (рубероид) по битумной обмазке и установить по уровню в ямы
Чтобы столбы не покосились, подпереть их временными укосинами;
забетонировать стойки и дождаться набора бетоном прочности не менее 50% (3…7 дней в зависимости от погоды);
установить горизонтально перекладину. Способ крепления может быть любым – от укладки кругляка в вырубленные пазы с последующей обвязкой канатом до скоб. Если в качестве стоек использовались стволы деревьев, логично подобрать участки с естественной развилкой.
При наличии деревьев, которые не жаль портить креплением скоб, можно использовать вариант с одной стойкой или креплением перекладины на двух расположенных рядом стволах. В последнем случае обязательное условие – расстояние между стволами 1,2…1,8 м.
П-образная конструкция может оказаться недостаточно устойчивой, поэтому некоторые мастера предпочитают А-образные опоры.
Данная конструкция – основа для качелей, поэтому в перекрестье А-образных стоек уложен брус. Но с тем же успехом можно уложить круглую перекладину, закрепив ее обвязкой, скобами или саморезами.
Еще один способ увеличить устойчивость – добавить к турнику брусья или второй турник с большей или меньшей высотой перекладины.
В представленном варианте стойки сделаны из сдвоенной доски 100х25 мм, для перекладин использованы металлические трубы, а их крепление выполнено путем прорезания отверстий в стойках.
Размеры турника из нескольких частей можно найти на одном из представленных ниже чертежей.












































