Как расположить дом по фен-шуй?
Для того чтобы строение правильно сориентировать на участке по законам фен-шуй, необходимо проанализировать многие тонкости и воспользоваться советами профессионала, услуги которого стоят дорого и имеют смысл только в том случае, если человек действительно планирует организовать жизнь по предложенным законам.
Расположение дома согласно фен-шую
Если такого желания нет, но хочется просто ориентироваться на общие знания восточной науки, при расположении дома соблюдайте следующие рекомендации:
Выбирая планировку, располагайте общие комнаты на западе.
Рекомендуемое расположение окон
- При определении места под постройку дома выделяйте часть участка ближе к центру.
- Если участок имеет вытянутую форму, дом расположите у длинной стороны.
Расположение комнат в доме вытянутой формы
Дом лучше располагать в глубине участка, но при этом площадь за домом должна оставаться большей по величине.
Располагать дом лучше в глубине участка
По фен-шуй благоприятным для спален считается направление к солнцу, юго-восточное. К нежелательным положениям относится ориентация на запад.
Расположение комнат загородного дома по фен-шую
Проекты домов от 100 до 150 кв.м – проект “Панна” 139 кв.м

Описание конструкции.Несущая способность грунта – 1,5 кг/см2.Фундаменты – ленточные монолитные железобетонные.Стены – газобетонный блок 375 мм + 120 мм кирпич.Кровельные покрытия – битумная черепица.Количество этажей – 2.Конфигурация второго этажа – полный.Пол первого этажа – по грунту.Высота первого этажа – 2.7 м.Высота второго этажа – 2.7 м.Перекрытие первого этажа – железобетонные панели.Перекрытие второго этажа – деревянные балки.
План первого этажа

| 1 | Тамбур | 2.0 |
| 2 | Коридор | 8.1 |
| 3 | Санузел | 5.2 |
| 4 | Кухня-столовая | 27.8 |
| 5 | Котельная | 4.3 |
| 6 | Лестница | 5.4 |
| 7 | Кладовая | 3.0 |
| 8 | Гараж | 16.7 |
| общая площадь этажа | 72.5 |
План второго этажа

Экспликация помещений второго этажа
| 1 | Коридор | 11.8 |
| 2 | Санузел | 5.8 |
| 3 | Спальня | 12.8 |
| 4 | Спальня | 14.6 |
| 5 | Спальня | 15.3 |
| 6 | Гардероб | 5.8 |
| общая площадь этажа | 66.1 |
Чем разграничить зоны?
Визуальное разграничение может проводиться:
1. Арками.

Зонирование участка арками
2. Оградами.

Выделение зоны отдыха при помощи ограды
3. Ширмами.

Зонирование двора ширмами
4. Зелеными насаждениями.

Зонирование участка растениями
Спортивную площадку или место отдыха можно оформить невысоким штакетником
Его нужно избавить от массивности, чтобы заборчик не доминировал в пространстве сада, не отвлекал на себя внимание и не тормозил взгляд. Очень естественным дополнением к такому ограждению станет арка или возвышающаяся над дорожкой, идущей к функциональной зоне, пергола
Наиболее эстетично выглядят подобные конструкции в обрамлении плетистых роз, клематиса, ипомей.

Зонирование зоны отдыха невысоким забором
Всегда востребован в обустройстве двора частного дома тенистый уголок, под сенью которого так хорошо отдыхать, укрывшись от соседских глаз. Создают его с помощью шпалер и садовых трельяжей, задекорированных под зеленую стену.

Выделение зоны отдыха кустами и шпалерой с вющимися растениями
В дизайне открытых площадок двора частного дома великолепно смотрятся садовые экраны. Они не только создают тень, но и защищают от гуляющих по саду сквозняков. Стильно смотрятся ширмы из ротанга, лозы, бамбука.

Ширма из бамбука добавит уединенности зоне отдыха
Дорожки и ступеньки
У дорожек на участке множество функций. Прежде всего, они обеспечивают безопасность передвижения. Ещё их задействуют в процессах зонирования и используют как элементы декора ландшафта.

Зонирование участка дорожками
Выложить садовую дорожку можно из любого материала:
1. Бетонных плит.
2. Плоских камней.
3. Кирпича.
4. Мелкого гравия.
5. Булыжника.
6. Гальки.
Отлично смотрятся комбинированные дорожки. Для большей эстетичности между плитами мощения оставляют грунтовые участки, которые засыпают песком, гранулами цветного стекла или засаживают «карманы» неприхотливыми низкорослыми скальными гвоздичками, каменеломкой, чабрецом.

Комбинированная дорожка во дворе частного дома
На территории неформального двора дорожки мостят древесными спилами, в щели между которыми засыпают кору или опилки. Такие максимально приближенные к естественной среде решения будут актуальны в дизайне и обустройстве тенистых уголков двора частного дома.

Оригинальная дорожка из спилов на даче
Зазоры между спилами также допустимо заполнить песком, гравием или щебнем. Это добавит дорожкам элегантности и сдержанности. В таком исполнении они могут появиться в миксбордерах, центральных клумбах, перед входом в дом.
Геометрия участка и дизайн должны сосуществовать сбалансированно и гармонично, поэтому при некоторой неровности облагораживаемой территории не стоит бороться с природными решениями, усердно выравнивая скосы и насыпая холмы. Лучше соорудите в местах явных низин и возвышенностей оригинальные ступени, которые при необходимости можно сделать фокусным центром зоны.

Ступени могут выполнять роль фокусного центра
Набросайте план расположения дорожной сетки. Это потребуется для выбора материала мощения аллеек. Чем ближе они будут подходить к дому, тем строже должен быть их вид. Беспорядочность расположения и неправильность форм допустима в зоне импровизированного водоема, в альпинарии или специфически стилизованных миксбордерах.

План расположения дорожек на участке
Значение воды при выборе участка
Наличие водных источников, расположенных за пределами участка
Наличие такой природной стихии как вода положительно влияет на все процессы развития.
Движущая вода является источником позитивной энергии и приносит успех и удачу, если соблюдены важные правила.
Гармония всегда находится где — то посередине.
Это значит, что крайне нежелательно наличие стоячего болота и бурной горной речки.
Стоячая вода ведет к жизненному застою в делах и мыслях, а бьющаяся вода о камни к неуправляемой энергии.
Если неподалеку от дома течет река, то направление течения должно происходить слева направо.
Необходимо учитывать то, что в ней не должно быть стоков канализации и прочего мусора, а также тины и ряски.
Фасад дома желательно направлять в сторону реки
Водоем на участке

Когда в окрестностях участка и дома нет природных источников воды: озера или реки, то искусственный водоем устанавливают на самом участке.
Бассейн или пруд строят слева от входа а дом.
Расположение на востоке, юго — востоке или севере.
Внутреннее благоустройство дома
Невозможно все распланировать и предусмотреть по научному и учению , пришедшему из Китая..
Все живут в разных климатических условиях и при различных обстоятельствах. Рассмотрим основные моменты фэн -шуй внутри дома.
Входная дверь не должна выходить на север, иначе холодный воздух будет проникать внутрь и зимой в таком доме станет некомфортно.
Центр дома является самой значимой частью. Поэтому в этом месте лучше всего располагать гостинную или большую столовую.
Часто посередине находится лестница, ведущая на второй этаж. Этого делать нельзя!
Кухня и туалет не должны быть соседями из -за общего стояка, так как имеют совершенно разное назначение. Расположение рядом друг с другом недопустимо по фэн -шуй. и противоречит экологичному сочетанию разного рода энергий.
Ванную комнату и туалет не располагают в юго- западной и северо — западной части дома. Площади у них небольшие и всегда закрываются, поэтому наличие вытяжки обязательно.
Кухню для приготовления еды планируют в глубине дома на севере или северо — восточной части..
Спальню располагают в северо — восточном направлении, но здесь не может быть все однозначно, поскольку для тех, кто рано или поздно встает используют индивидуальный подход.
Хорошего самочувствия и здоровой позитивной энергетики!
Отопление одноэтажного дома
Способ отопления зависит от наличия инженерных сетей в месте строительства. Это обстоятельство также влияет на планировку.

Отлично, если можно подключиться к центральному отоплению, в этом случае не требуется дополнительного помещения.

Хороший вариант – подключение к газовой сети. Для газового котла необходима котельная с выходом непосредственно наружу и окном.

Возможна установка электрокотла, при этом возрастают расходы на электроэнергию.

Планировка одноэтажного дома с печкой на твердом топливе имеет свои особенности. Печь устанавливают в центральной части, чтобы равномерно обогревать все помещения.

Возможно совместить ее с водяным котлом и смонтировать систему отопления на весь контур. В этом случае печь располагают в котельной с отдельным входом, а рядом устраивают кладовую с запасом топлива.

Растения во дворе
«Некоторыми приемами «живого» дизайна можно добавить и приватности территории двора частного дома»
Озеленять придомовой участок, конечно же, нужно, но делать это надо с умом.
- Хвойные экземпляры растений не стоит высаживать возле террас и площадок, если не хотите каждый день начинать с выметания опавших иголок.
- Деревья, предрасположенные к активному сбросу листвы, не должны быть приближены к водоемам. Это избавит резервуары от засорения, воду – от гниения, а вас, снова-таки, от лишней работы.
- Высокорослые кусты и низкорослые деревья нужно отправлять на дальние границы участка. Там они, в качестве зеленой изгороди, будут вполне уместны.

Зонирование участка живой изгородью
Некоторыми приемами «живого» дизайна можно добавить и приватности территории двора частного дома. Например, установив на низкий забор контейнеры с пышно цветущими цветами или карликовыми кустами.

Цветы в контейнерах – отличный декоративный элемент
- Для борьбы с нежелательной растительностью под настилом террасы, на детской площадке и т.д., используйте для обработки почвы геотекстиль.
- Во дворах ограниченной площади практикуйте вертикальный способ озеленения.

Вертикальное озеленение на участке
Как правильно расположить постройки
Не стоит загромождать участок всевозможными мелкими постройками по всему периметру. Они не улучшат эстетическое восприятие участка и, кроме того, будут оставлять тень и мешать произрастать зеленым насаждениям, которых на загородных площадях много не бывает.

Правила расположения построек на участке частного дома
При возведении построек придерживайтесь следующих рекомендаций:
1. Те постройки, нормальная работа которых возможна только при наличии коммуникаций, располагайте поближе к дому.
2. При планировании на участке тепличного комплекса, выделите ему наиболее освещаемое место на солнечной стороне.

Не рекомендуемые места установки теплицы
3. Места летнего отдыха, приема и приготовления пищи, такие как мангал и летняя кухня, уберите подальше от чужих взглядов и выделите им самые красивые и уютные пространства.

Расположение зоны барбекю в уединенном месте участка
4. Под место расположения будки для четвероного сторожа выделите участок поближе к фасаду или, наоборот, самую отдаленную часть. Это зависит от предположительного места нежелательного визита.

Будка для домашних животных на участке
5. При желании использовать участок для разведения птицы и животных уберите места их обитания подальше от жилых построек и выделенных для приема пищи участков. Это избавит проживающих в доме от посторонних запахов и нежелательных эмоций. Рекомендуется выдержать расстояние не менее чем в 15 метров.

Птичник рекомендуется располагать на расстоянии не менее 15 м.
Приведенные советы помогут разобраться, как правильно расположить частный дом на участке, чтобы при этом были выдержаны все строительные нормативы, все постройки гармонично вписывались в окружающий ландшафт, не мешали друг другу. В этом случае ничто и никто не будет нарушать покой загородной жизни, мешать отдыхать и расслабляться среди зеленых насаждений.
Обустройство и дизайн заднего двора частного дома
Ситуация, когда пространство перед домом занято гаражом или стоянкой для многих владельцев загородных участков не является чем-то диковинным. В этом случае зона комфорта автоматически телепортируется на задний двор. Поскольку его площадь обычно ограничена, возникает необходимость в ограничении количества «нужных» уголков или их компоновке.

Задний двор с обеденной зоной
Основой обустройства патио должен стать деревянный помост. Окружите его насыпными клумбами или спрячьте за живой изгородью. Получится красиво и одновременно практично. Сменой мебель, уголок послеобеденного отдыха может быть легко превращен в зону барбекю или столовую. Элементы обстановки в этом случае должны быть портативными. Фаворитом должна стать складная мебель, которую не проблематично хранить в кладовой или на чердаке. Если места в распоряжении предостаточно, то в дизайне патио на заднем дворе частного дома может быть использована стационарная мебель, сложенная из камня или сделанная из древесного массива.

Стационарная мебель сложенная из камня

Кованная садовая мебель всегда выглядит респектабельно
Какой тип обстановки удовлетворит вас определяйте по своим финансовым возможностям и готовностью ухаживать за ней. Если пластиковые столы, стулья, кушетки можно просто окатить водой из шланга, чтобы избавить от грязи, и они снова приобретут сияющий вид, то с металлической и деревянной мебелью придется повозиться, восстанавливая слой лака на ней и проводя профилактические обработки от порчи коррозией и грибком.

Деревянная мебель нуждается в регулярной профилактической обработке
Привнести нотку позитива в обстановку заднего дворика можно необычным декором забора. Вам останется лишь подобрать в цвет к нему текстиль и подушки на мебель, чтобы патио стало привлекать гармоничностью внешнего вида.
Площадку под место отдыха можно выложить каменными плитами, засыпать гравием или декорировать галькой, оформив границы невысоким бордюрчиком.

Площадка для зоны отдыха, вымощенная камнем
Можно использовать декоре такой площадки акцентные элементы яркой окраски. Это подарит заряд бодрости, настроит на оптимистичный лад и приятное времяпрепровождение.
Дизайну при обустройстве заднего двора частного дома не будет претить и зона барбекю, тем более что организовать ее будет совсем не сложно. Достаточно просто выделить место для стационарного очага и перенести поближе к нему нужную мебель с патио.

Зона барбекю во дворе частного дома
Почему именно стационарного? Это условие диктует близость к дому. Дым от переносного мангала может пойти в окна. У стационарных де конструкций на этот случай предусмотрен дымосборник, так что проблем с задымленностью комнат не возникнет.
Если позволяет место стоит создать и небольшую площадку для детских игр. Песочница, несколько качелей, спортивная зона с горкой сделают чудеса. Дети не будут скучать, сидя возле взрослых и внимая их скучным разговорам, но в то же время останутся на ваших глазах, что избавит от необходимости оставлять уютное кресло и бежать смотреть, чем они заняты.

Детская площадка – неотъемлемая часть двора частного дома
Правила обустройства на участке
Ограждения

Чтобы счастье не утекало за забор, а было всегда рядом, любой вид ограждения следует сооружать одинаковой высоты по всей длине.
Зеленые насаждения вдоль забора не только украсят его вид, но и защитят от негативной энергетики.
По фэн — шуй нежелательно прокладывать дорожки снаружи и внутри участка прямолинейными, а газоны сажать с острыми углами. Формы должны быть максимально обтекаемыми, а тропинки извилистыми.
Фен — шуй рекомендует использовать натуральные природные материалы при облагораживании земельного участка.
Насаждения

Углы самого участка целесообразно украсить лужайками неправильной формы или сделать цветники, клумбы округлыми.
Наличие зеленых островков с цветами и растительностью создаст благостную энергию и будет способствовать очищению ауры человека.
Цветы придают участку неповторимое очарование и нейтрализуют отрицательную энергию, оказывающую вредное воздействие на самочувствие.
На восточной стороне располагают множество зеленых насаждений для исполнения желаний и планов с чистыми помыслами.
На юге сажают красные цветы для создания дружелюбных отношений, а на западе белые для романтических и свободных.
Карьерный рост, продвижение по службе, успех в бизнесе принесут посаженные белые цветы на севере участка.
Рядом с входом сажают душистый горошек, жимолость, ландыши, розы, сирень. Эти цветы сохраняют душевное здоровье и равновесие.
Освещение

Участок должен быть хорошо освещен для беспрепятственного движения энергетических потоков.
Для везения и удачных обстоятельств в жизни, пристальное внимание уделяют освещению южной части участка, а для укрепления семьи и брака юго — западной. Необязательно покупать дорогостоящие массивные светильники
Будет достаточно приобрести декоративные фонарики на солнечных батарейках и установить их вдоль дорожек и по краям участка
Необязательно покупать дорогостоящие массивные светильники. Будет достаточно приобрести декоративные фонарики на солнечных батарейках и установить их вдоль дорожек и по краям участка.
Как определить геопатогенные зоны

Такие зоны относятся к местам повышенной опасности и существенно влияют на состояние здоровья и психики.
Воздействие на человека оказывают хаотичные течения энергетических потоков, которые приводят к дисбалансу в организме и нарушению психических процессов.
Животные в геопатогенных местах ведут себя непредсказуемо и часто агрессивно. У кошек появляется бешеная активность, а у собак наоборот: вялость и отказ от еды.
Нельзя строить дом, если есть большие и малые разломы земной коры и в излучине реки. На таких участках можно заметить:
- плоское травянисто место с редкими крупными валунами и разбросанными камнями
- искривленные деревья
- неприглядные кустарники
- раздвоенные корявые стволы с многочисленными наростами

Нежелательно выбирать места с участками, где множество комаров, лягушек и слизней.А также на которых растет:
- аир
- дуб
- кипрей
- осина
- осока
- ива
- ясень
Месторасположение и форма участка.

Идеальным местом считается возвышенность, исключая самые высокие точки и подножия горы.
Участок должен быть защищен от ветра. Хорошо, если он будет располагаться примерно посередине холма.
Желательная форма участка квадрат или прямоугольник, но идеальным вариантом служит трапеция.
Вход в узком месте трапеции будет собирать и направлять входящую энергию к дому, накапливая финансовое и материальное благополучие.
Сопутствующая документация к проекту и строительным чертежам
Строительный проект – не только набор эскизов, чертежей и таблиц, здесь содержится подробная информация о каждом из этапов строительства и об отдельных участках работы. Это позволяет в итоге получить комплексную капитальную постройку.
На заметку! Принципиально важно расположение детской комнаты рядом с родительской, чтобы при малейшей потребности ребенка родители оказались рядом. Если на момент постройки детей еще нет в семье или они пока маленькие, нужно заранее продумать наличие специальной игровой комнаты или зоны. Если позволяет площадь, то для детских игр можно отвести сразу несколько помещений.
Если позволяет площадь, то для детских игр можно отвести сразу несколько помещений.
Каждый проект, кроме уже перечисленных чертежей, в обязательном порядке включает такие документы:
- архитектурно-конструкционную характеристику;
- описание функциональности здания;
- технические и экономические данные, такие как площадь, кубатура, высота;
- описание инженерных решений;
- виды, перечень и количество строительных и отделочных материалов.
Руководствуясь проектом, можно организовать строительный процесс, установить последовательность работ и определить финансовые затраты.
Архитектурный паспорт содержит копию лицензии проектировщика, пояснительную записку, расцветку фасадов, поэтажные планы, осевые разрезы и план кровли.
Планировка одноэтажного дома с сауной
Для обустройства сауны в каком-либо одноэтажном доме нужно подобрать такое помещение, в котором возможно установить отличную вентиляцию и подвести необходимые коммуникации.
По конфигурации сауны подразделяются на:
- встроенные. Выполняются по индивидуальному заказу, могут строиться заранее либо переделывается все помещение;
- сборные. Помещение частично отгораживается специальной перегородкой;
- кабинки инфракрасные. Готовое, компактное решение, которое подходит для всех помещений. Бывают комбинированные кабинки с душевой.
Сауна представляет собой санузел, парилку и моечную. Оборудование предбанника в доме не нужно. Площадь парной должна составлять около 3,8-6 кв.м.
Расположение дома во дворе по фэн — шуй

Место положения дома
Дом должен стоять в центре участка.
Территория, прилегающая к дому, перед входом в него, должна быть открытой и легкодоступной.
Любые пристройки в виде гаража, сарая, или бани неблагоприятно отражаются на климате дома.
А тамбуры, коридоры и «предбанники» препятствуют свежему энергетическому потоку.
Окна в доме

Размер окон зависит от того, на какую часть света они выходят.
Идеально, когда снаружи дома не видно ног проживающих,а в случае больших просторных окон, нижнюю часть заставляют цветами, полками или другими аналогичными предметами.
Хорошо, если окна будут открываться наружу, а не вовнутрь дома.
Коммуникации и как к ним подключиться?Ориентация дома относительно солнца: как лучше
Ниже приведенные рекомендации выработаны на основании жизненного опыта для средней полосы России.
Расположение спальни
При строительстве необязательно, но желательно учесть следующие советы по расположению спальни:
1. Окна спальни лучше располагать таким образом, чтобы они выходили на восток или юго-восток. В этом случае первые солнечные лучи будут будить членов семьи, что соответствует полезному для здоровья, ближе к природному ритму жизни.

2. При расположении окон спальни с ориентацией на запад, к концу дня ваше спальное пространство будет душным и не способствовать отдыху.
3. Ориентация окон спальни на север не позволит солнцу проникать в комнаты, от этого помещение становится хмурым и нерадостным.

Размещение окон в загородном доме
Обратите внимание еще на одну особенность размещения спальни. Если окна будут выходить на шумную улицу или местность, вам не удастся отдохнуть ни днем, ни ночью
Кухня
Кухонное пространство относится к помещениям, наиболее подверженным действию влаги, жары. Исходя из условий пользования, желательно размещать его с северной стороны. Здравый смысл подсказывает ориентироваться на жизненный опыт. В этом помещении большую часть времени проводит мама, желательно из кухонного помещения иметь возможность просматривать пространство, где гуляют дети.

Рекомендуемое расположение кухни относительно сторон света
Если ваша кухня совмещена со столовой и гостиной и большую часть вечернего времени предполагается проводить на этой площади в мечтаниях и размышлениях, побеспокойтесь, чтобы окна выходила на красивую местность: цветник или лужайку и радовали открывающимися для обзора красотами.

Расположение окон на кухне частного дома
Гараж: особенности размещения
Выбирая, как правильно расположить частный дом на участке, особое внимание уделяют гаражу. Существует несколько схем его размещения:. 1
отдельно стоящим зданием
1. отдельно стоящим зданием

Пример расположения на участке отдельно стоящего гаража
2. зданием, примыкающим к дому, практически объединенным с ним одним фундаментом и единой стеной,

Гараж, примыкающий к дому
3. совмещенная с домом постройка, чаще всего на первом или цокольном этаже.

Гараж, совмещенный с домом
В зависимости от выбора проекта размещения гаража необходимо определиться с местом под его расположение. Сразу предусмотреть, будет ли возможность свободного проезда или необходимо выделять пространство под разворот.

Подъезд к отдельно стоящему гаражу
Нужно учесть, что большие подъездные дороги для автомобиля, покрытые бетоном или асфальтом – это практически отнятые у природы пространства, не представляющие ценность с эстетической точки зрения, и уделять под них много места не стоит.
Стороны света: как правильно расположить частный дом на участке
До начала работ по размещению дома на участке необходимо учитывать, что в наиболее невыигрышном положении находятся северная и подветренная стороны здания. Именно они, ввиду отсутствия согревающего воздействия солнечных лучей и постоянно охлаждаясь под действием ветра, будут самыми холодными.

Расположение дома по сторонам света
Поэтому на северной и подветренной стенах стоит уменьшить количество окон, если это не нарушает красоту и эстетическое восприятие здания. Хорошее утепление достигается за счет расположения с холодной стороны не портящих внешний вид хозяйственных построек, размещения не требующих особого теплового режима помещений. Если предполагается организовать гараж в прилегающем к дому здании, то северная сторона будет идеальным вариантом.

Расположение частного дома по сторонам света
Чаще всего для входа в дом используют северо-восточную часть дома. В этом направлении располагается крыльцо, устанавливается козырек, за дверью начинается коридор и прихожая.
Планировка проектов домов для узких участков
Схема здания на длинный участок обладает индивидуальными особенностями:
- на одной из стен отсутствуют окна, что позволяет расположить здание в предельной близости к границе земельного участка;
- хозяйственно-технические помещения часто имеют продольное расположение, благодаря чему гостиная и спальня располагаются в торце здания с достаточным освещением.
Каталоги строительных компаний содержат индивидуальные и типовые архитектурные проекты домов для узких участков. В домах отсутствуют окна по длинным сторонам постройки, но в жилых комнатах присутствует хорошее освещение.
У проектов узких домов для узких участков вход располагается с фронтальной или с боковой стороны, поэтому дом размещают при ограничениях в ширине и глубине участка.
Чтобы наиболее эффективно использовать удлиненную территорию, оптимально будет разместить дом впритык к границе участка теневой стороны, предельно освободив территорию перед домом. Если возле участка проходит дорога с оживленным движением, то, постройку располагают в глубине территории, огородив свой дом от проезжей части с помощью зелёных насаждений.
Гараж тогда стараются расположить на фронтальной границе территории, чтобы проезд к нему не занимал много места на участке.

Архитектурный проект узкого дома – гараж вынесен впередИсточник www.remontbp.com
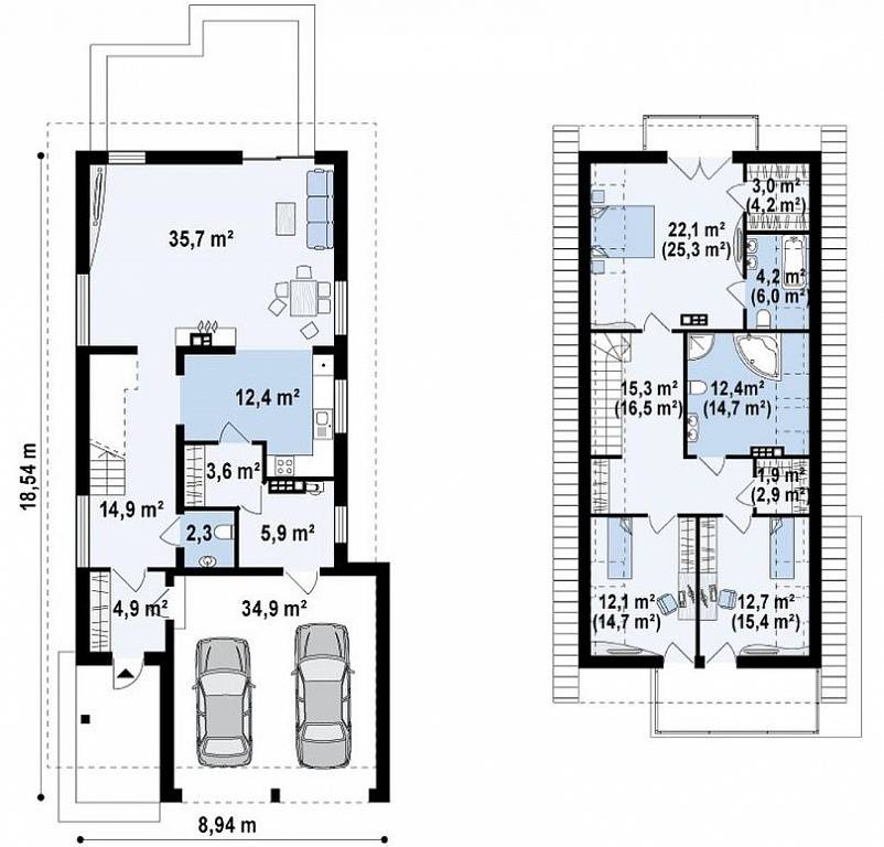
Планировка узкого дома, первый этаж и мансардаИсточник rekoweb.ru
Задний дворИсточник www.domamo.ru
Предварительно продумывают планировку дома на вытянутом участке, расположение дополнительных построек, а также проведение инженерных коммуникаций (оросительные системы, скважины, септики, освещение участка), для обеспечения их удобной эксплуатации. Доработка при строительстве повысит денежные затраты.
Коммуникации и как к ним подключиться?
Выбирая место для дома, не стоит пренебрегать информацией, где проходят необходимые для нормальной жизни дома коммуникации, как к ним будет удобнее подключиться. В противном случае весь участок под загородное строительство будет перерыт траншеями под трубопроводы, а газопровод и электрические кабели нарушат всю красоту местности.

Расположение коммуникаций на загородном участке
При строительстве дома и выборе под него места стоит ориентироваться на наличие подземных коммуникаций и возможность подключения:
1. Электрическая энергия подается через провода, закрепленные на столбах. Размещая дом в глубине участка, предусмотрите способ подачи электроэнергии и размещения опор при необходимости.

Установка опор на участке частного дома
2. Водоснабжение и водоотведение выполняется по трубопроводам. Необходимо это учитывать и проложить трубы таким образом, чтобы не допустить их повреждения во время работ на участке.

Водоотвод на загородном участке
3. В случае отсутствия централизованной канализации предусматривается устройство сливной ямы, которая должна быть максимально далека от домовладения и доступна для обслуживания техникой при необходимости.

Организация сливной ямы на участке
4. Дом расположите максимально близко к газопроводу.

Допустимое расстояние для установки газгольдера





