Пиролизный котел из бочки
Нам потребуется 200 литровая металлическая бочка. Можно взять готовую, а можно изогнуть и сварить лист стали толщиной 3-4 мм. Срезаем у нее верхний торец и делаем из него крышку, приварив по окружности полоску металла. По центру высверливаем отверстие под воздуховодную трубу. Сбоку в верхней части бочки сверлим отверстие под дымоход и ввариваем в него дымоходный патрубок.
Следующим делаем поршень. Он представляет собой круг, по диаметру несколько меньший крышки бочки, чтобы он мог в нее поместиться. По центру сверлиться отверстие и к нему приваривается воздуховодная труба, по которой кислород будет поступать в топку.
Пиролизный котел из бочки
В верхней части делаем заслонку, которая будет регулировать количество поступающего внутрь воздуха. Для этого сверлим сквозное отверстие, вставляем в него плотный штырь и привариваем внутри к нему небольшую пластину. Вращая его, мы меняем площадь отверстия.
Снизу стальной лист необходимо утяжелить, чтобы при сгорании поршень под своей тяжестью опускался и измельчал сгоревшее топливо
Важно, чтобы все сварочные швы были герметичны. Если этого не будет, котел не сможет работать достаточно эффективно. Пользоваться таким самодельным котлом просто
На дно засыпается топливо и поджигается. Когда оно достаточно разгорится, сверху устанавливается поршень и закрывается крышка. По мере горения, поршень постепенно будет опускаться
Пользоваться таким самодельным котлом просто. На дно засыпается топливо и поджигается. Когда оно достаточно разгорится, сверху устанавливается поршень и закрывается крышка. По мере горения, поршень постепенно будет опускаться.
Под ним будет происходить процесс тления, а сверху него будут сгорать выделяемые газы. Такая конструкция еще называется пиролизной головкой и может работать на дровах или смежных видах топлива из древесных отходов.
Изготовление пиролизного котла своими руками
Чаще домашние мастера используют популярную схему Беляева, доступную для реализации. Ее мощность 25 кВт. Следует подготовить стальные листы, разложив их на столе. Берут чертеж и наносят размеры на металл, делая это очень тщательно, чтобы не было малейшего отклонения от параметров. Затем болгаркой нарезают заготовки.

Работу начинают с топок. Их основа – боковые стенки, одинаковые слева и справа, которые соединяются спереди листом металла. В нем предварительно прорезают прямоугольные отверстия, в которые будут установлены дверцы. Нижняя предназначена для обслуживания камеры сгорания газа, а верхняя – для загрузки топлива. Размеры конструкции представлены на чертеже:
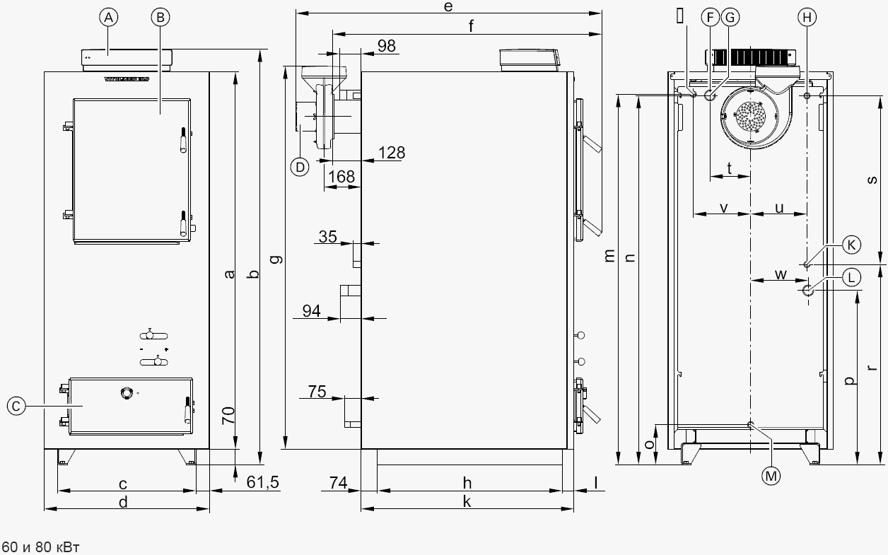
A – приборы контроля; B – загрузочная дверца; C – зольниковая крышка; D – дымосос; E – муфта для подсоединения температурного датчика ½ дюйма; F – патрубок аварийной линии (устанавливается предохранительный клапан); G – подача теплоносителя; H – подвод холодной воды, R ¾; K – подвод горячей воды; L – обратная магистраль; M – расширитель.
Со всех сторон камеры закрываются листами, которые соответствуют внешним габаритам топок. До окончания монтажа внутренних частей их не приваривают. Для руководства дальнейшим процессом предлагается пошаговая инструкция.
Двухкамерную топку дополняют воздуховодами. Применяют профильную трубу 60×30 или для удобства металлический швеллер. Внутри по всей площади высверливают небольшие отверстия.

Ниже в топочной камере на поперечной стенке приваривают патрубок для вторичной подачи кислорода. Дальше приступают к теплообменнику в такой последовательности:
- на листе металла делается разметка для двух заготовок;
- в них сверлятся отверстия 60 мм;
- нарезаются трубы диаметром 57 мм необходимой длины;
- их концы вставляют в дыры на одном листе и обваривают;
- аналогично поступают с другой стороной.

По верхнему уровню теплообменника рядом устанавливается заслонка дымохода. Она оснащается рукояткой с возможностью фиксации в любом положении. В торец корпуса ввариваются куски листового металла для подсоединения дымовой трубы.

Внутреннее пространство камер сгорания футеруют шамотным кирпичом. Его разрезают алмазным кругом по размерам, часть – под углом, плотно подгоняют по месту. Внутренние работы закончены, можно приваривать заднюю стенку, верхнюю и нижнюю.

Основной этап сборки пиролизного котла завершен. При желании устанавливают вентилятор. Конструкцию обрабатывают – убирают окалину от сварки, подчищают швы, подправляют неровности. Из более тонкого металла (3 или 4 миллиметра) делается внешний кожух. Для монтажа рекомендуется применять уголки. Они соединяются сваркой через отверстия в листах, которые предварительно сделаны по краям. Перед пуском проверяют герметичность водяной рубашки. Ее наполняют водой и накачивают воздух с избыточным давлением. Некачественные швы протекут.
Как сделать пиролизный котёл своими руками
Технологический процесс изготовления котла пиролизного принципа действия включает выполнение слесарных и сварочных работ.
Необходимые материалы и инструмент
Для изготовления качественного агрегата необходим опыт в работе со следующими инструментами:
- аппарат электросварочный;
- дрель электрическая;
- угловая шлифмашина;
- набор слесарных инструментов — угольник, уровень.
Потребуются материалы и комплектующие:
- металл:
- листовой, толщина 4 мм, 7,5 м²;
- труба — 8 м (диаметр 57 мм, толщина стенки 3,5 мм);
- полоса сталь (толщина 4 мм, ширина 20 мм) — 7,5 мп;
- полоса сталь (толщина 4 мм, ширина 30 мм) — 1,5 мп;
- полоса сталь (толщина 5 мм, ширина 80 мм) — 1 мп;
- шамотный (огнеупорный) кирпич — 15 шт;
- профтруба 60×30 (толщина стенки 2 мм) — 1,5 мп;
- профтруба 80×40 (толщина стенки 2 мм) — 1 мп;
- круг отрезной d 230 — 10 шт.;
- круг шлифовальный d 125 — 5 шт.;
- электроды — 5 пачек;
- датчик температуры.
Им автоматически выполняются манипуляции с заслонкой: открытие (для увеличения температуры горения) и закрытие (при достижении температурой максимального значения)
Температурный датчик — это механическое устройство контроля количества воздуха, проходящего в камеру сгорания.
Продуктивность работы котла зависит от функционирования дымоотводящей трубы. Для обеспечения хорошей тяги дымоотвод должен соответствовать требованиям качества:
- высота не меньше 5 метров;
- хорошее утепление;
- отсутствие резких изгибов;
- отвод конденсата;
- простой доступ для чистки.
Чертежи и схемы устройства
Пиролизный котёл без принудительной вентиляции имеет наиболее простую схему. Энергонезависимость конструкции удешевляет эксплуатацию агрегата.
Схема пиролизного котла с естественным дымоотводом имеет вид:
Для повышения высокого КПД некоторые конструкции имеют двойные стенки основания
Котёл состоит из трёх основных камер:
- загрузочная, служащая для заброса топлива;
- камера дожига, куда подаётся вторичный воздух;
- теплообменник, выходящий в трубу.
Горение сырья направляет поток газа сверху вниз. При подаче воздуха под колосники в массив шамотного кирпича происходит дожиг горючих газов. Продукты распада уходят через теплообменник в дымоотвод. Регулировка тяги выполняется термодатчиком на выходе из котла с помощью цепочки, связанной с заслонкой подачи вторичного воздуха.
Подробную деталировку с размерами и допусками можно взять в стандартном чертеже:
A — контроллер контура котла; B — дверца загрузки; C — крышка зольника; D — дымоотвод; E — муфта для датчика температурного предохранителя; F — патрубок предохранительного клапана; G — подающая магистраль контура; H — подвод холодной воды в теплообменник; L — обратная магистраль контура котла; M — расширительный бак
Пошаговая инструкция изготовления агрегата
Изготовления пиролизного котла своими руками разделяется на этапы:
- Согласно чертежу выполняется разметка и нарезка деталей для корпуса. После «прихватывания» элементов производится контрольный замер, затем делаются сварочные швы. Установленные на свои места задняя панель и боковые стенки свариваются с двух сторон, зачищаются, обрабатываются сварочным герметиком.
- Производится монтаж труб теплообменника.
- После наваривания внешней стенки и обечаек дверок устанавливается механический регулятор контроля теплоносителя.
- Дымоход собирается наращиванием трубы Последующую часть нужно вставлять внутрь предыдущей, чтобы конденсат не попадал на внешнюю сторону. Готовая конструкция окрашивается огнеупорной краской.
Режимы работы пиролизного котла
Розжиг
На этом этапе нужно, чтобы шибер находился в открытом состоянии. Продукты горения движутся непосредственно в дымоход
Рабочий режим
Устройство работает при закрытой заслонке, обеспечивая, таким образом, протекание процесс пиролиза. Создание тяги в газоходе достигается принудительным образом или естественным путем.
Догрузка топлива
В этот момент шибер закрыт, но тяга в газоходе еще присутствует на протяжении некоторого времени. Процесс пиролиза не заканчивается. Догрузка топлива должна осуществляться как можно быстро, так как в противном случае оно может просто сгореть.
Принцип работы
Эксплуатация пиролизного котла длительного горения своими руками
Настройка правильного функционирования котла после установки также имеет свои особенности. В норме котел не дымит. Перед первым включением котел подсоединяется к дымоходу и наполняется водой. На котле размещается терморегулятор для контроля показателей температуры жидкости. Чтобы смонтировать термометр в котлах предусмотрены специальные отверстия.

Последовательность включения котла:
- Вентилятор подключается к электросети и проверяется на работоспособность. Воздушные заслонки должны быть на среднем положении.
- В загрузочный бункер необходимо положить небольшое количество бумаги и щепок. Дверцы камеры потребуется закрыть.
- Открывается дроссельная заслонка дымохода, включается вентилятор и поджигается бумага.
- После разгорания дров форсунка перекрывается.
- Через нижний отсек сжигания выполняется контроль горения.
- После закипания жидкости потребуется отключить вентилятор. Пламя погаснет, а вода начнет остывать.
Установка котла предусматривает соблюдения правил безопасности. Монтировать прибор лучше в отдельно котельной. Оборудуют прибор на основе из кирпича или бетона. Предусматривается интервал между котлом и стенами – от 20 см.
Руководство по изготовлению котла длительного горения

Пиролизный котел RMNT
Первый этап – подготовка необходимых приспособлений. Лучше собрать все материалы и инструменты заранее, чтобы не отвлекаться на это в будущем.
Набор для изготовления самодельного пиролизного котла
- Бочка. Подойдет металлическая емкость объемом в 200 л.
- Швеллер.
- Стальная труба. Сразу же разделите ее на 2 отрезка.
- Молоток.
- Отвес.
- Уровень.
- Измерительная рулетка.
- Ножовка.
- Топор.
- Сварочный аппарат с набором электродов.
- Листы стали.
- Киянка.
- Красный кирпич.
- Смесь для укладки кирпича.
- Отражатель. Не является обязательным элементом, но его наличие очень желательно.
Второй этап – подготовка емкости. Вооружитесь режущим инструментом, к примеру, болгаркой, и срежьте верхушку бочки.Делайте это аккуратно, отрезанная часть еще пригодится в будущем.При отсутствии бочки корпус котла можно изготовить из отрезка трубы. Только необходимо подобрать изделие соответствующего диаметра.

Второй этап – подготовка емкости
Если вы будете использовать именно трубу, приварите к ней круглое днище, предварительно вырезанное из стального листа. При желании днище можно сделать квадратным. Это даже более предпочтительный вариант, т.к. квадратная пластина обеспечит большую устойчивость котла.
Третий этап – подготовка основных внутренних элементов. Возьмите стальной лист и вырежьте из него круг, диаметр которого был бы немного меньше внутреннего диаметра трубы или бочки. В подготовленном круге нужно вырезать еще один круг диаметром порядка 100 мм. В это отверстие будет входить труба, поэтому ориентируйтесь на размеры имеющегося у вас изделия. На практике установлено, что именно 10-сантиметровая труба является самым оптимальным вариантом.
Приварите отрезок трубы к подготовленному вами ранее стальному «блину». На этом этапе вам понадобится сварочный аппарат.
Приварите к низу стального «блина» отрезки швеллера. Они должны проходить в корпус будущего котла безо всяких усилий. Эти швеллеры будут придавливать топливо во время работы оборудования. Длину трубы (той, которая имеет диаметр 10 см), подбирайте так, чтобы она была длиннее, чем бочка или основная труба примерно на 20 см.

Схема котла
Четвертый этап – подготовка крышки. Сделайте крышку котла из отрезанной в самом начале верхушки бочки. Крышку можно закрепить на петли либо же оставить без крепления.
Пятый этап – устройство топливника. Сделайте в корпусе отверстие для загрузки топлива. К подготовленному люку нужно приварить самодельную либо же предварительно купленную дверцу. Ниже отверстия топливника сделайте еще одно отверстие, через которое вы сможете удалять отходы горения. Разместите в емкости колосниковую решетку так, чтобы она делила бочку либо трубу на две вертикальные секции.

Делаем пиролизный котел
Инструкция по изготовлению пиролизного котла
Наиболее оптимальным для сборки является пиролизный котел мощностью от 25кват. Он способен отапливать большие помещения площадью от 180 м2.
Для его изготовления необходимы следующие материалы:
- металлические листы толщиной не менее 0,8 мм;
- 15−20 штук шамотного (огнеупорного кирпича);
- система датчиков температуры;
- колосниковая решетка;
- 3 трубы диаметром 5,7 см, 3,2 см и 16 см (для подвода холодной и горячей воды, а также для подающей магистрали контура котла);
- 2 профтрубы (для патрубков аварийной линии и выхода);
- дутьевой вентилятор;
- датчик температуры;
- чертеж и таблица размеров для сборки котла;
- 2 дверцы для топки и зольника;
- крепления из пережжённой проволоки для дверок;
- шлифовальные круги -10 штук.
Необходимые инструменты:
- аппарат для сварки электрический;
- болгарка;
- углошлифовальная машинка.
Процесс изготовления
- Из стальных листов необходимо вырезать 4 стенки для котла. В передней стенке сделать отверстия для топки и расположенного под ним зольника.
- Вырезать отверстия для дымососа и под трубников. Соединить все металлические стенки (кроме задней) при помощи сварочного аппарата, а стыки между сторонами будущего котла необходимо отшлифовать.
- Далее собирается теплообменник, как показано на рисунке. Трубы свариваются при помощи сварочного аппарата. Перед сваркой на сами трубы необходимо «одеть» шлифовальные круги для удаления стыков и швов между ними.
- Затем необходимо вмонтировать теплообменник в будущий котел как на рисунке. Прежде чем, закрывать устройство задней стенкой, необходимо проверить его на наличие течей компрессором. Если таковых нет, заднюю часть котла сваривают.
- Далее необходимо установить колосниковую решетку, которая будет отделять место газификации и сжигания топлива. Нижний отдел, где будет сжигаться топливо, оснащают воздуховодом и обкладывают шамотным (огнеупорным) кирпичом со всех сторон, в том числе и снизу.
- Затем необходимо прикрепить дверцы в соответствующие отделения для подачи топлива и для зольника. Они должны плотно прилегать к стенкам котла.
- В конце готовый котел устанавливают на кирпичную поверхность и присоединяют к трубе, утепленную негорючим утеплителем (например, фольгированной минватой). Без этого на стенках трубы будет оседать деготь, который значительно укоротит срок службы котла. К устройству подключают водяной контур и дымовой насос.
- Для того чтобы котел работал автоматически, так же как и производственный, необходимо установить систему контроля температуры. Он нужен для того, чтобы регулировать работу дымососа, а также подачу воздуха.
- Установка котла на этом не заканчивается. Необходимо проверить его КПД. Если, включив котел, вы не обнаружили запаха угарного газа от выходящего дыма, значит его КПД достаточно высок и оборудование является безопасным для использования.
Таким образом, если у вас есть первоначальные навыки работы с болгаркой и шлифовальным аппаратом, если вы разбирайтесь в элементарных чертежах, вы без труда соберете пиролизный котел самостоятельно. А это не только уют и тепло в своем доме, но и очень выгодная экономия финансовых средств.
Таблица размеров пиролизного котла
- А-контроллер котлового контура
- B -загрузочная дверца
- С-дверца зольника
- D -дымосос
- E -муфта
- F -патрубок аварийной линии
- G — подающая магистраль котлового контура
- H — подвод холодной воды
- K — Подвод горячей воды
- L -Обратная магистраль теплового контура
- M -Патрубок опорожнения и расширительный бак
Таблица размеров (зависимость мощности будущего котла от размеров деталей).
Что нужно для изготовления устройства своими руками?
Для самостоятельного изготовления устройства необходимо выбрать подходящий под конкретные условия и принцип работы проект. Конечно, можно пойти и купить прибор в магазине, но сделать его самому своими руками дешевле и эффективнее.
Перед тем как приступить к изготовлению, необходимо оценить требуемую мощность. Для этого нужно учесть площадь помещения, которое предстоит отапливать.
Затем необходимо определить, будет ли установлена на котле дополнительная автоматика или нет.
Автоматический блок позволяет отслеживать температуру помещения и в зависимости от этого регулировать работу котла, а также отключать его функции в случае опасности. Но без него тоже можно обойтись.
Оценив необходимый эффект от котла и выбрав проект, приступают к изготовлению агрегата. Наиболее распространённым проектом для самостоятельной сборки считается схема Беляева.
Чтобы её реализовать, нужны соответствующие материалы и инструменты. Большое значение для материалов играет их устойчивость к высоким температурам. Чтобы не ошибиться в выборе, можно обратиться к консультанту на металлобазе или в магазине.
Необходимые инструменты
Обычно к необходимым для изготовления котла материалам относятся:
- металлическая и профильная труба разного диаметра;
- шамотный кирпич;
- листы из металла;
- насос для воздуха или вентилятор;
- датчик температуры;
- жаростойкая фурнитура.
В список инструментов, необходимых для работы над агрегатом, входят:
- инвертор и электроды;
- болгарка с кругами;
- дрель и свёрла по металлу;
- электролобзик.
К этим инструментам в процессе сборки могут добавиться и другие. Главное, чтобы они позволили резать и соединять детали котла, добиться его прочности и герметичности, а также смонтировать на корпусе требуемые элементы.
Этапы постройки пиролизного котла длительного горения
После того, как выбран подходящий чертёж, на его основе выполняется рабочий вариант.
Размеры отсеков, топочных камер и других элементов агрегата устанавливаются в соответствии с проведёнными расчётами.
Например, объем загрузочной камеры вычисляется по принципу 2 литра на один килограмм топлива, которое планируется использовать, плюс 30%.
Это связано с тем, что дрова могут иметь неровные края и не укладываются впритык друг к другу, увеличивая занимаемую площадь.
Габариты также стоит прикидывать в расчёте на мощность 20–25 кВт. На неё ещё можно найти материалы при ручной сборке. При большей мощности нужна более толстая сталь, сварку которой проводить дома крайне затруднительно по причине необходимости мощного оборудования.
В список действий для изготовления пиролизного котла, входят:
- Резка труб и листов болгаркой.
- Сверление отверстий.
- Сварка топочной камеры.
- Установка перегородки для дымооборота.
- Установка колосника между топочной камерой и секцией дожига.
- Присоединение трубы с заслонкой вверху.
- Выполнение отверстий из остатков металла для топочной и зольной камер.
- Установка вертикальных стальных перемычек между внутренней и внешней сторонами теплообменника.
- Монтаж соединений для подачи воды.
- Монтаж дверей агрегата с асбестовой прослойкой для теплоизоляции.
- Укладка шамотного кирпича в зоне дожига.
- Монтаж регулируемых ножек для балансировки котла.
- Шлифовка поверхности агрегата.
- Покрытие жаропрочной краской.
- Установка дымососа или насоса для воздуха.
- Монтаж температурного датчика или автоматики.
Количество операций может уменьшаться или увеличиваться в зависимости от предъявляемых требований.
Подключение к системе отопления
Пиролизный котёл длительного горения может подсоединяться к естественной и принудительной системам отопления. В первом случае требуется тщательно выверять наклон труб. Во втором — определить мощность насоса для нагнетания водяного потока.
Важно! Наладьте подмес горячей воды с выхода на вход, так, чтобы при поступлении в теплообменник температура жидкости не опускалась ниже 60 °C. В противном случае возникает риск коррозии устройства. Порядок подсоединения котла к системе отопления включает:
Порядок подсоединения котла к системе отопления включает:
- Заполнение системы теплоносителем.
- Подключение к сети насоса для воздуха.
- Загрузку топлива в камеру и розжиг.
- Регулирование подачи воздуха в секцию дожига.
В зависимости от объёма подаваемого воздуха меняется интенсивность сгорания газов и температура нагрева теплоносителя.
Поэтому необходимо отрегулировать работу котла так, чтобы топливо сгорало полностью.
Продукты, получаемые на выходе
После термической обработки полимерных материалов остаются зола полукокса, пиролизная жидкость и газ.
Часть газов конденсируется и переходит в жидкое состояние. Жидкость очищают, чтобы превратить её в синтетическую нефть. Она используется как замена природному топливу.
Сухой метод пиролиза
Газ, не прошедший конденсацию, отправляют на дожиг или продают сторонним потребителям. Его можно применять в качестве топлива при выработке электроэнергии на ТЭС.
После переработки покрышек остаётся несгораемый металлокорд, его отправляют на склад для дальнейшей переработки в металлические изделия. Обуглероженный (превратившийся в кокс) остаток используется в промышленности:
- в производстве новых шин и резиновых изделий;
- в качестве красителя при изготовлении лакокрасочных покрытий;
- применяется в качестве сорбента вместо активированного угля;
- служит компонентом жидкого топлива или сам используётся как твёрдое горючее.
Изготовление котла
Пиролизный котёл изготавливается в такой последовательности:
- Если для изготовления прибора будет использоваться газовый баллон, бывший в употреблении, то необходимо стравить остатки газа, открутить болты, которые удерживают горловину баллона, и слить газолин. После этого газовый баллон необходимо заполнить водой и выдержать несколько дней.
- Затем болгаркой баллон распиливается поперёк немного выше сварочного шва. Таким образом, получится идеально ровный металлический цилиндр длиной более 130 см. Внутри этого цилиндра будет происходить пиролизное горение древесины, но тепло выделяемое во время этого процесса должно быть передано теплоносителю. Теплоноситель будет находиться в рубашке, которая будет “одета” на цилиндрическую камеру сгорания.
- Для изготовления рубашки необходимо вырезать из листовой стали 6 пластин: 2 прямоугольные пластины размером 60 * 60 см, и 4 пластины 120 * 60 см. В пластинах размером 60 * 60 см следует вырезать круглые отверстия ровно посередине квадрата. Диаметр этих отверстий должен равняться внешнему диаметру цилиндра, изготовленного из газового баллона.
- Чтобы отверстия идеально подходили для размещения в них пропанового баллона, следует установить на пластину обрезанную крайнюю часть баллона ровно посередине и обвести её маркером. Затем, уже по намеченному рисунку, вырезать отверстие с помощью газового резака.
- Когда изготовление отверстий в нижней и верхней грани будет закончено, из всех приготовленных ранее пластин сваривается ёмкость высотой 120 см и шириной 60 см. Грани с прорезями будут располагаться соответственно в верхней и нижней части резервуара.
- Когда рубашка для баллона будет готова, его помещают внутрь прямоугольного резервуара таким образом, чтобы был отступ от плоскости рубашки сверху около 5 см.
- Затем цилиндр тщательно приваривается к плоскости рубашки. К водяной рубашке привариваются два патрубка.
- Один в нижней части резервуара, он будет использоваться для входа охлаждённого теплоносителя, другой в верхней части рубашки, через него будет осуществляться забор нагретой жидкости. Оба патрубка имеют диаметр трубы 28 мм.
- Когда водяная рубашка будет полностью изготовлена, из металлического “блина”, который образовался при вырезании отверстий для баллона, изготавливается разграничительная пластина. Эта пластина позволит оградить горящий пиролизный газ от топлива, расположенного внутри топочной цилиндрической камеры. С одной стороны к “блину” приваривается уголок 50*50 мм.
- Уголок необходимо установить крест накрест. Таким образом, будет поддерживаться постоянный зазор между заградительной перегородкой и тлеющим топливом.
- Из верхней части баллона, которая была отпилена, изготавливается крышка, для загрузки топлива внутрь пиролизного котла, а также для отвода продуктов горения древесины в специально смонтированный для такой печи дымоход.
- Для того чтобы крышка закрывала топочный цилиндр сверху достаточно плотно необходимо к отпиленной крышке по окружности приварить полосу металла толщиной 1 мм и шириной 50 мм. В верхней части крышки делается отверстие с помощью резака и приваривается отрезок трубы диаметром 112 мм и длиной 0,5 метров.
- В нижней части баллона делается отверстие под размер дверцы зольника, которая затем приваривается электросваркой. Дверца должна иметь в своей конструкции надёжное запорное устройство, исключающее самопроизвольное открытие во время работы отопительного прибора.
- Для регулировки интенсивности горения топлива рядом с дверцей зольника приваривается патрубок диаметром 28 мм, на котором нарезается резьба и устанавливается водопроводный кран с червячным запорным механизмом. Таким образом, можно будет полностью перекрыть поступление воздуха в камеру сгорания, что приведёт к уменьшению интенсивности горения дров, и этот процесс будет продолжаться не менее 8 часов.
Принцип работы пиролизных котлов и их особенности
Создавая пиролизные котлы своими руками, люди стремятся сэкономить денежные средства в своем кошельке. Если газовое оборудование стоит довольно дешево, то твердотопливные агрегаты просто поражают своей ценой. Более-менее приличная модель мощностью 10 кВт обойдется в 50-60 тысяч рублей – дешевле провести газ, если рядом проходила бы газовая магистрально. Но если ее нет, то выходов два – приобретать заводское оборудование или делать его самостоятельно.
Изготовить пиролизный котел длительного горения своими руками можно, но сложно. Давайте для начала разберемся, для чего вообще нужен пиролиз. В обычных котлах и печах дрова сгорают традиционным способом – при высокой температуре, с выбросом продуктов сгорания в атмосферу. Температура в камере сгорания составляет порядка +800-1100 градусов, а в дымоходе – до +150-200 градусов. Таким образом, солидная часть тепла просто улетает наружу.
Прямое сгорание дров применяется во многих отопительных агрегатах:
Твердотопливные пиролизные котлы могут использовать несколько видов топлива, в том числе отходы деревообрабатывающего производства и сельскохозяйственной переработки.
- Твердотопливные котлы;
- Печи-камины;
- Камины с водяными контурами.
Главным преимуществом данной методики является то, что она отличается простотой – достаточно создать камеру сгорания и организовать отвод продуктов сгорания за пределы оборудования. Единственным регулятором здесь становится дверка поддувала – регулируя просвет, мы можем отрегулировать интенсивность горения, тем самым воздействуя на температуру.
В пиролизном котле, собранном своими руками или купленном в магазине, процесс сгорания топлива идет несколько по-другому. Дрова здесь сгорают при низкой температуре. Можно сказать, что это даже не горение, а медленное тление. Древесина при этом превращается в подобие кокса, одновременно выделяя горючие пиролизные газы. Эти газы отправляются в камеру дожигания, где сгорают с выделением большого количества тепла.
Если вам кажется, что данная реакция не даст особого эффекта, то вы глубоко заблуждаетесь – если заглянуть в камеру дожигания, то здесь будет видно ревущее пламя ярко-желтого, почти белого, цвета. Температура сгорания – чуть выше +1000 градусов, а тепла в этом процессе выделяется больше, чем при стандартном горении древесины.
Для того собранный своими руками пиролизный котел смог показать максимальную эффективность, необходимы дрова с низким содержанием влаги. Влажная древесина не даст оборудованию выйти на полную мощность.
Реакция пиролиза знакома нам еще со школьного курса физики. В учебнике (а может и в лабораторном кабинете) многие из нас видели интересную реакцию – древесина помещалась в стеклянную запечатанную колбу с трубкой, после чего колба нагревалась над горелкой. Через несколько минут древесина начинала темнеть, а из трубки начинали выходить продукты пиролиза – это горючие газы, которые можно было поджечь и понаблюдать за желто-оранжевым пламенем.
Аналогичным образом работает и пиролизный котел, собранный своими руками:
На одной загрузке топлива пиролизные котлы работают около 4-6 часов. Так что большим и стабильно пополняемым запасом дров стоит озаботиться заранее.
- В топке разжигаются дрова до появления устойчивого пламени;
- После этого доступ кислорода перекрывается, пламя гаснет почти полностью;
- Запускается дутьевой вентилятор – в камере дожигания появляется высокотемпературное пламя.
Устройство пиролизного котла довольно простое. Основными элементами здесь являются: камера сгорания, в которой складированы дрова, и камера дожигания, в которой сгорают продукты пиролиза. Передача тепла в отопительную систему осуществляется через теплообменник
В схеме пиролизного котла ему уделяется особое внимание
Все дело в том, что теплообменники в пиролизных котлах, собранных своими руками, устроены не так, как в газовом оборудовании. Продукты сгорания с воздухом проходят здесь через множество металлических труб, омываемых водой. Для увеличения эффективности котловая вода омывает не только сам теплообменник, но и все другие узлы – здесь создается своего рода водяная рубашка, которая отбирает излишки тепла от раскаленных элементов котельного агрегата.
Заключение
Пиролизные установки, сделанные своими руками, приобретают все большую востребованность. Причина – высокая стоимость котлов заводского изготовления, самодельные агрегаты часто оказываются единственной альтернативой. Единственный недостаток — топливо для пиролизных котлов должно иметь влажность не выше 25%, иначе процесс пиролиза будет слабым, что влияет на производительность установки.
Всем привет, с Вами снова Складий ! На днях установил систему длительного горения фирмы В Polster c-11
Любителям наглядности и моих видео сюда :
Итак, предлагаю сразу разъяснить как оно работает на собственном примере. Включаю систему, разжигаю ведро дров. После того как прогорели дрова, на раскаленные угли, я закладываю полную топку угля (4 ведра). Благодаря вентилятору котел не потухнет, вентилятор продует угли и тяга будет 100%. Далее выставляю температуру и иду по своим делам. Систему настроил так: вентилятор 75 ватт, 120мм работает на 30% оборотов (этого хватает для плавной работы, на 85% чуть не спалил дверцы и колосники).
Вентилятор раздувает топливо, на 30-ти градусах включается насос, дует до тех пор, пока температура в трубах не начнет приближаться к заданной на контролере (допустим 60), при 57 обороты плавно уменьшаться, пока она не станет 60 (что бы не было эффекта инерции это все настраивается). При достижении заданной температуры вентилятор отключится, и воздушная заслонка в нем практически перекроет подачу воздуха в котел. Нет дыма без огня, а огня без кислорода =) Поэтому котел перейдет в режим тления, после чего насос, гонящий воду, поможет радиатором отдать тепло в помещение, температура системы упадет, включится вентилятор, система перейдет в активное горение и станет снова раздувать его. И так по кругу. После того, как с включенным вентилятором температура упадет ниже 30 градусов (настраивается), система поймет что закончилось топливо, даст звуковой сигнал и отключит насос и вентилятор.
Контроллер с вентилятором выглядят вот так :
Также присутствует датчик температуры воды в системе, и выход на циркуляционный насос. О насосе я писал в прошлом посте, если собираетесь ставить — го читать https://pikabu.ru/story/ustanovka_tsirkulyatsionnogo_nasosa_…
У системы много функций и регулировок, более подробную информацию о данной системе легко найти в интернете.
Собственно, некоторые важные моменты опишу тут, остальное — в видео .
—О выборе вентилятора: выход на вентилятор 220вольт, то есть можно установить более дешевый вентилятор, например для вентиляции:
Жаль только заслонка там не стоит, но есть заслонки для вентиляции. Короче, кто хочет экономить и есть голова, сам придумает как (можно еще вентилятор от автомобильной печки поставить)
—Не прожгите котел! Настройте обороты вентилятора, ибо он разгоняет угли до температуры, которая может привести в негодность ваш котел. Лучше пусть будет плавнее, но безопаснее, согласны ?
—Проверьте систему на закипание. Порой свет отключают. Котел перейдет в режим тления, но не закипит ли он без насоса? Испытайте систему в таком режиме, под бдительным контролем.
Вот, собственно, и все. Возможно забыл о чем то в видео, ищите в комментах ) И пишите что думаете об этом)
Друзья, еще не зима, но результаты уже такие :
— 2,5 ведра антрацита (10л ведро) горят более 13-ти часов, при температуре системы 55град, и среднесуточной температуре за окном в +8 градусов;
— 4 ведра антрацита горели более 24-х часов.
В процессе горения закладка топлива дает усадку, что дает возможность загрузить еще топлива. Также можно раз в сутки вычищать золу, чтобы в топочной камере стало больше места. Таким образом, можно поддерживать горение фактически неограниченное время. У меня получалось более 2-х суток. Возможно было бы и больше, но я там просто не живу.
Спасибо за внимание, подписывайтесь на меня, я погнал делать что то новое ! Удачи в ваших делах, пока !
220
Ранее для обогрева домов чаще всего использовались печи. Но из–за своей затратности и малой продуктивности спрос на них упал. Им на замену пришел котел. Топливо, которое используется для работы котла – дрова, потому что они более экономичны.
На сегодняшний день производитель предлагает большой выбор для покупки. Есть и разные виды котлов. Например, газогенераторные котлы в Украине очень популярны и востребованы.
Выводы
Рассмотрев как сделать разные виды пиролизных печей, можно подытожить, что реально сделать только конструкцию из газового баллона. Кирпичную печь самостоятельно построить не получится, слишком сложно. Походный вариант из консервных банок также имеет право на существование, но изготовить его можно только дома, в полевых условиях этого сделать не выйдет. И наконец, печь на отработке – простая, но опасная, требует очень внимательной и аккуратной эксплуатации. Риск достаточно велик, поэтому рекомендовать ее для обогрева гаража мы не беремся.
При наступлении зимних холодов добавляется забот у хозяев частных домовладений, которые несут всю полноту ответственности за обогрев своего жилища. В тех помещениях, где мощность основного отопления слабая или оно отсутствует вовсе (сараи, гаражи), приходится подыскивать недорогие альтернативные способы.






