Какой выбрать козырек на балкон
Главный недостаток козырька на балкон из более толстого поликарбоната — цена, которая возрастает по мере увеличения толщины. Оптимальным вариантом считается использование материала с плотностью в 5 мм для монолитного типа и 10-15 мм для сотового. Ячеистый вид более доступен по стоимости.
Этот полимер дает огромные возможности в выборе дизайна кровли. Чтобы спроектировать из поликарбоната такой навес на балкон, который будет наиболее удачно гармонировать с экстерьером дома, рекомендуется просмотреть как можно больше фото. Примеры выполненных работ можете посмотретьна сайте .
Наиболее распространены следующие формы навесов:
- полукруглый;
- арочный;
- прямой наклонный;
- двускатный.
Любая из форм образует наклон, требуемый для схода снежных масс. В частном коттедже с большим балконом или верандой можно сделать комбинированный козырек из поликарбоната. Сочетая арки и наклонные листы, различающиеся по размерам, можно сделать необычный купол, защищающий от дождя, снега и прямых лучей солнца.
Навес повышает комфорт пребывания на балконе даже без полного остекления. Трудозатраты такого решения намного ниже, чем попытка застеклить балкон полностью. Как и при полной обшивке поликарбонатом, потребуется каркас. Однако в данном случае изготовить его можно не из алюминиевого профиля, а из труб малого диаметра.
Трубы нарезаются на куски нужных габаритов и свариваются воедино угловыми и диагональными соединениями
Важно соблюдать ровность. Образованный каркас зачищается наждачкой, грунтуется, а затем красится
Для монтажа к стене применяются анкерные болты или распорные дюбели. Перед тем, как повесить козырек, к нему саморезами прикручивается поликарбонат с применением термошайб. Между конструкцией и стеной щель замазывается герметиком.
Несмотря на видимую простоту работы, монтаж имеет массу нюансов. Специалисты «ЭлитБалкон» учтут все.
В чем же преимущество материала?
Поликарбонат – это материал, который отличается от других материалов своей прочностью и легкостью, что делает его более популярным, чем обычное стекло. Также сотовый поликарбонат имеет высокий показатель тепло- и звукоизоляционных свойств. И, даже если снова сравнивать со стеклом, то поликарбонат удерживает тепло намного эффективнее, поэтому его применение для остекления балкона можно считать лучшим вариантом. К плюсам поликарбоната можно также отнести хорошую прозрачность и не пропускание ультрафиолетового излучения. Многообразие цветовой гаммы позволяет сделать балкон более привлекательным. Ну и самое основное – это легкость монтажа данного материала.

Как правильно выбрать материал для остекления балкона
Поликарбонат выбирается исходя из целей помещения, в данном случае, от целевого назначения балкона. Если, к примеру, балкон будет использоваться только в теплое время года, а зимой там будут храниться запасы, то тут можно использовать поликарбонат меньшей толщины. А вот если же балкон будет устроен в качестве домашнего сада, кабинета, зоны для отдыха, то тут потребуется остекление сотовым поликарбонатом толщиной не менее 1,5 см, а то и вовсе до 3 см. После определения с назначением этого помещения и выбора самого материала, можно начинать остекление балкона поликарбонатом своими руками.
С чего начинается остекление балкона – конечно, с подготовки.
Самое первое, что следует сделать – это освободить балконное пространство, чтобы ничего не мешало, и произвести демонтаж старого остекления. После приступаем к самому монтажу. Перед установкой поликарбоната требуется создание специального алюминиевого каркаса, который необходим для закрепления листов. Данный этап требует особой внимательности, так как именно от него будет зависеть окончательный результат.
Каркас делается с учетом толщины листов поликарбоната. Таким образом, для тонкого листа поликарбоната (от 0,6 до 1,6 см) необходим каркас с расстоянием между продольными опорами не менее 70 см, а вот для листа с толщиной в 2,5 см расстояние должно составлять около 105 см.

Монтаж поликарбоната можно осуществлять двух вариантов: из цельных пластов или из разрезанных частей. К примеру, балкон из поликарбоната в хрущевке можно остеклить при помощи частей. Таким образом, цельный лист поликарбоната предварительно разрезается на куски. При этом ширина их должна быть равна ширине между каркасными профилями. Фиксирование производится к крайним направляющим. Для того чтобы разрезать лист поликарбоната можно использовать строительный нож, он легко разрежет лист с толщиной 4-6 мм, для более толстого поликарбоната лучше всего использовать пилу с упором (зубья должны быть маленькими неразведенными).
Если же делать остекление с использованием цельных листов поликарбоната, то крепление производится к каждой поперечной направляющей каркаса. Расстояние между саморезами должно быть не менее 30 см. Стоит обязательно сделать отверстия заранее, при этом нужно учитывать то, что их диаметр должен быть наполовину больше диаметра самого самореза.

Стыки листов поликарбоната и места крепления необходимо замазать. Герметизация осуществляется для того чтобы воздух с улицы не попадал в балконное помещение и внутрь поликарбоната не попадала влага. Произвести герметизацию можно с использованием силиконового наполнителя, он подойдет для случая с монтажом частей поликарбоната. А при применении цельного листа можно использовать специальные термошайбы, которые устанавливаются под саморезы (их диаметр может быть от 2 см).
Нюансы
Обязательно стоит знать, что отделка балкона поликарбонатом своими руками имеет свои нюансы. Следует учитывать то, что поликарбонат сотовый необходимо монтировать той стороной, где имеется защитный слой. При этом пленку защитную нужно снять до разрезания листа перед монтажом.

Когда производится нарезка листа поликарбоната, то устанавливая их торцами друг другу, нужно проклеивать шов самоклеящейся лентой, а после уже закрывать торцевым профилем. Это делается для предотвращения попадания внутрь сот грязи и влаги.
Если балкон предусматривает отделку крыши поликарбонатом, то тут можно сделать ее в виде классического навеса или же в качестве наклонного козырька, также можно создать своеобразную конструкцию крыши по индивидуальной задумке. Поликарбонатная крыша создаст на балконе очень светлую и комфортную атмосферу.
Хотите использовать надежные емкости для торговли или в хозяйстве? Тогда читайте в нашей статье о преимуществах гастроемкостей из полимера , вы узнаете, чем хорош этот материал.
Обшивка балкона поликарбонатом
Фиксация поликарбонатных листов производится саморезами либо шурупами. Чтобы снизить риск появления микротрещин, необходимо пользоваться специальными фиксаторами с утолщенной прижимной головкой.
Лучший выбор – это саморезы с термошайбами. Именно эти крепежные элементы подходят лучше всего. Толщина ножки термошайбы должна соответствовать толщине плиты поликарбоната (1,5-2 мм).
Вначале монтируется крыша, она может быть выполнена навесом либо полукруглым козырьком. Особо креативные хозяева создают собственные проекты и изготавливают конструкции необычной формы.
Крепятся листы на металлическую конструкцию, притом они могут принимать любую форму, так как обладают хорошей гибкостью. Лучше брать плиты потолще, чтобы они смогли выдержать большой объем снега.
Раму можно изготовить собственноручно из подручных материалов. Например, труб подходящего диаметра, их следует нарезать, сварить угловыми и диагональными соединениями. На этом этапе следует контролировать процесс. Конструкция должна быть смонтирована ровно.
Готовый каркас необходимо зачистить наждачной бумагой, а после загрунтовать и покрасить молотковым красителем. Выровнять края можно электрическим лобзиком, электроприбор обеспечивает тот же эффект, но времени на процедуру уходит гораздо меньше.
Закрепляется рама к стене анкерными болтами, для этого также подойдут распорные дюбели. После монтируется плита термошайбами.
Остекление балкона поликарбонатом проводится по следующей технологии:
- монтируется рама из металлических уголков, поперечные стойки закрепляются шагом в 0,7 см;
- просверливаются отверстия, закрепляется материал на каркасе;
- плиты выравниваются по линии верхнего края каркаса.
- после произведенных работ заделываются образовавшиеся стыки, для этого используют силиконовый герметик;
- в конце конструкция закрывается соединительной планкой;
- с листов снимается защитный слой.
Поликарбонатная обшивка экологически безвредная, при условии, что материал производится по технологии. Ему не страшны дожди, солнце, снег, он не теряет свои эстетичные качества.
Отделка балкона поликарбонатом подойдет тем владельцам квартир, кто хочет получить комфортную и красивую зону отдыха с минимальным вложением средств.
Ремонт козырька
Ремонт козырька выполняется при необходимости его герметизации. Работы на высоте опасные и сложные, поэтому лучше пригласить специалистов строительной компании.О ремонте козырька балкона смотрите в этом видео:
Этапы ремонта:
- Подготавливаем поверхность, очищаем от грязи, пыли.
- Снимаем старое покрытие;
- Герметизируем поверхность, стыки битумной мастикой. Наносим мастику в два слоя. Первый слой наносим горизонтальными полосами, второй – вертикальными. Второй слой наносим через 2-3 часа после нанесения первого.
- После высыхания мастики, укладываем рубероид методом наплавления. Для этого понадобится газовая горелка. В месте примыкания рубероида к стене установить козырек, предварительно обработав все стыки мастикой.
Выполнять ремонтные работы на высоте нужно с осторожностью, при этом необходимо пользоваться страховочными ремнями
Самые лучшие посты
- Как сделать короб из гипсокартона в ванной – пошаговая инструкция
- Покраска гипсокартона – пошаговая инструкция
- Фигуры из гипсокартона или как сделать интерьер стильным и модным
- Как стыковать гипсокартон в углах и процесс постройки декоративной ниши
- Подрозетники для гипсокартона: правильный выбор и установка
- Установка точечных светильников в гипсокартон: советы от опытных специалистов
- Затирка швов гипсокартона: материалы и техника выполнения работ
- Изготавливаем красивый коврик из старых вещей своими руками
Особенности кованых козырьков для балкона
Возможности ковки позволяют создавать воздушные конструкции со множеством витых форм. Это очень привлекательно с точки зрения эстетики и позволяет создавать действительно оригинальные каркасы для балконных козырьков.
Фото:

Ковка подразумевает работу со сплошным металлическим прутом. В сравнении с полыми профильными трубами, такой материал способен выдерживать равные нагрузки при гораздо меньшем сечении.

Кованые каркасы внешне выглядят намного ажурнее.
В плане надежности кованые конструкции также превосходят изделия, выполненные сваркой или на винтовых соединениях. Их долговечность обеспечивается качественным покрытием оцинковкой или краской.

Кованый козырек на балконе частного дома
Обратите внимание! Однако кованый козырек может обладать значительной массой. Поэтому перед выбором такого варианта стоит убедиться, что конструкция балкона позволяет надежно закрепить на нем столь массивное сооружение
Вернуться к содержанию
Балкон из поликарбоната: долговечно и светло
Чтобы экономно и качественно оформить свой балкон, можно воспользоваться таким универсальным материалом, как поликарбонат.

Как остеклить монолитными листами поликарбоната?
Перед тем, как остеклить балкон, потребуется смастерить алюминиевую раму. При наличии опыта в монтаже таких конструкций можно выполнить ее и своими руками.
Монолитные листы идут со стандартными размерами 3,05х2,05 м. Правильно рассчитав расход материала, можно сократить объем отходов и даже израсходовать его полностью. Также это уменьшит стоимость самой алюминиевой рамы.

Балкон из поликарбоната
Разрезать полотна можно, используя дисковую пилу с маленькими зубьями (как на фото). Не нужно соединять листовое покрытие впритык, так как этот материал при повышении температуры имеет свойство расширяться. Поэтому лист может немного увеличиться, что приведет к искривлению поверхности. Если величина рамы предполагается 1,5х1 м, то от среза листа поликарбоната и до уголка из алюминия делают отступ в 3-4 мм.

Чтобы с балкона в помещение подпадало больше дневного света, материал лучше всего приобретать прозрачный. Впрочем, довольно часто используют сочетание различных цветов и оттенков – такая отделка значительно улучшает внешний вид сооружения.
Варианты козырьков
Для козырька из поликарбоната на последних этажах советуют использовать такие материалы:
- разноцветное покрытие;
- сотовый поликарбонат с окраской.
Во втором варианте такой козырек обойдется несколько дешевле, чем в первом. Чем толще материал, тем он более надежный. Но применять очень толстое покрытие не рекомендуется, так как оно дороже стоит. Оптимальный вариант для монолитного полотна – это лист с толщиной 0,4-0,6 см, а для сотового – 1-1,4 см.

Чтобы на балкон не попадала пыль, а зимой – снег и не было сквозняков, используют специальный герметик, желательно прозрачного цвета, чтобы не нарушать общую эстетику. Это средство не дорогостоящее, но благодаря ему конструкция приобретет дополнительную надежность и будет иметь наиболее привлекательный внешний вид.
Отделка крыши
- Перед началом работы должен быть осуществлен демонтаж старого балкона и выполнены все подготовительные работы.
- Далее с поликарбонатных листов снимается защитная пленка, но это следует сделать непосредственно перед самим монтажом.
- Сотовые блоки должны устанавливаться таким образом, чтобы лучи солнечного света попадали на сторону, на которой имеется защитное ультрафиолетовое покрытие.
- Листы можно разрезать простым инструментом, который используется в работе с деревянными изделиями.
- С внешней стороны плиты снимается пленка, и блоки нарезаются размерами, которые нужны для монтажа.
- После этого на торцы плиты наносится защитная лента и закрывается специальным торцевым профилем, как на фото. Это нужно для того, чтобы пыль или конденсат не попали внутрь.

Крышу обычно делают козырьком либо в виде навеса, как видно на фото. Но если имеются дизайнерские способности, можно воплотить любую идею. Тогда навес, сделанный своими руками, будет оригинальным и непохожим на все остальные.
Если по проекту крыша балкона будет изогнутой, то должен учитываться радиус допустимого изгиба листов, поскольку на каждый тип сотового поликарбоната имеются индивидуальные свойства при изгибании. Ввиду того, что на таких арочных сооружениях радиус изгиба плиты меньше, чем у соединительных профилей, поэтому профили должны быть больше, чем длина плиты. После окончательной установки арочного сооружения соединительные профили нужно выровнять. Сделать это можно электрическим лобзиком.

Навес может принимать любую форму, все зависит от проектировки каркаса. Ячеистая структура используется для звуко- и теплоизоляции, благодаря чему балкон будет иметь эстетичный вид, дарить уют и безопасность. Количество света, который попадет внутрь, будет составлять от 20% до 70 %. Все будет зависеть от цвета поликарбоната.

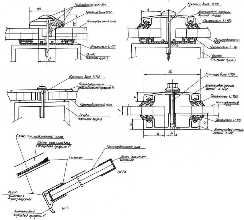
Профили, которые используются при установке
Во время установки поликарбоната старайтесь выравнивать плиты по верхней линии края сооружения. Профиль, который находится у основания, должен хорошо крепиться к каркасу специальными саморезами или болтами, которые надо расположить на оси линии профиля. Диаметр отверстия в плите под саморезы, которые крепят материал к нижней части каркаса, должен быть больше, чем у болтов. Это делается для того, чтобы при расширениях от высокой температуры, не нарушалась целостность листа.

После монтажа основного профиля устанавливают прижимную крышку. Выполняйте такие манипуляции с последующими блоками до окончательного завершения установки конструкции. После этого с наружной стороны каждого листа снимите полиэтиленовую пленку.
Ссылки на полезные видео.
Как закрыть балкон поликарбонатом, крышу видео:
Профилированный поликарбонат не так давно начал масштабно использоваться в строительстве. Его применяют для возведения беседок,…
Любое гаражное помещение создается с целью защиты автомобиля от дождя, ветра, снега и других атмосферных…
От того, насколько верно будут подобраны комплектующие для поликарбоната, непосредственно зависит прочность, долговечность и влагостойкость…
В декабре 2018г. завода «Полигаль Восток» прошел все испытания на подтверждение соответствия требованиям Техрегламента “О…
Навес для автомобиля из поликарбоната подходит для дачи или территории возле дома. Для строительства гаража…
Все больше владельцев коттеджей и загородных домов при обустройстве территории выбирают современные качественные материалы. Например, для возведения беседок…
Поликарбонат представляет собой прочный, легкий и прозрачный материал из твердого полимерного пластика. Пластичность, морозостойкость, долговечность и другие качества ячеистого поликарбоната…
Еще не так давно теплицы на дачных участках использовались по прямому назначению – для выращивания…
Сегодня на дачном участке часто делают навесы. Крепление поликарбоната к металлическому каркасу должно быть надежным.…
Существует немало способов организации на загородном участке искусственного водоёма: начиная от бюджетных надувных моделей и…
Изготовление козырька из поликарбоната

Если вы решили изготовить козырек из поликарбоната на балкон, то прежде нужно ознакомиться с плюсами и минусами этого материала и особенностям его монтажа. Существует несколько разновидностей поликарбоната. Отлив на балкон можно делать только из определенных разновидностей этого материала.
Преимущества и недостатки поликарбоната
Сотовый поликарбонат активно используется при сооружении различных навесов, беседок, козырьков, павильонов и теплиц.
Из преимуществ этого материала стоит назвать следующее:
- Он экологически чистый и безвредный.
- Поликарбонат не поддерживает горение, а от высоких температур плавится.
- Благодаря гибкости и прочности лист можно гнуть в поперечном и продольном направлении. Допустимый радиус изгиба в каждом направлении указывается отдельно для листа определенной толщины.
- Сотовый поликарбонат имеет специальный защитный слой, не пропускающий ультрафиолет, но при этом он не препятствует прохождению дневного света.
- С легкостью выдерживает любые температурные перепады.
- На протяжении всего внушительного срока службы материала сохраняет свои технические и эстетические характеристики.
- Листы легко и просто монтируются.
- Малый вес материала позволяет использовать облегченный каркас.
Недостатки поликарбоната заключаются в его хрупкости. При падении сосулек с крыши или сильном граде покрытие легко повреждается. Причем восстановить его или отремонтировать не получится, нужно полностью менять поликарбонатное покрытие козырька.
Какой поликарбонат выбрать для козырька?
Для устройства навеса над балконом подойдет сотовый поликарбонат с толщиной от 10 мм и выше. Каркас можно сделать из стальных или алюминиевых профильных труб. Лучше использовать алюминиевые трубы, потому что они менее подвержены коррозии, чем сталь. Не рекомендуется делать деревянный каркас, поскольку древесина даже после соответствующей обработки быстро портится при эксплуатации на открытом воздухе.
Изготовление козырька своими руками

На предварительном этапе выполняем необходимые замеры. После этого, ориентируясь на проведенные измерения, делаем чертеж будущей конструкции. На бумаге указываем все размеры каркаса и его составляющих деталей.
После этого можно переходить к изготовлению козырька.
Работу ведем в следующем порядке:
- Для начала подготовьте все требующиеся для работы материалы и инструменты.
- На фасаде выше балконного блока сделайте разметку будущих мест крепления каркаса.
- Сварите конструкцию из стали или алюминия, ориентируясь на чертежи, или закажите ее изготовление у профессионального мастера. Для самостоятельного изготовления нарежьте трубы на куски нужной длины. При необходимости согните отдельные элементы. После этого сварите все детали в единую конструкцию. Места сварки хорошо зачистите. Просверлите отверстия под крепежные элементы для фиксации поликарбонатного покрытия. Затем покройте каркас грунтовкой по металлу.
- Разметьте лист поликарбоната, согласно габаритам навеса. Вырежьте все детали из поликарбоната и закрепите на раме. Для этого высверлите в деталях отверстия, а потом прикрутите плиты шурупами. Под крепежные элементы подкладывайте резиновые термошайбы, чтобы при затягивании кровельного самореза не повредить поликарбонат.
Если для изготовления каркасной конструкции используются бруски, то их обязательно обрабатывают антисептиками и антипиренами. После сборки выполняется установка козырьков на балкон.
Установка конструкции
После изготовления навеса из поликарбоната рассмотрим подробно технологию установки отлива на открытый балкон. По разметке на стене высверливаем отверстия под крепежные приспособления. Конструкцию из металлической или алюминиевой рамы закрепляем на стене при помощи анкеров и распорных дюбелей. Они вбиваются в заранее подготовленные отверстия.
После этого место стыка навеса со стеной заполняется герметиком. Для более надежной изоляции из оцинкованной кровельной стали делают защитный фартук. Это длинная стальная полоса с продольным изгибом по центральной продольной оси и небольшим загибом сверху. Защитный фартук крепится герметиком на стык козырька и стены, а его верхний загиб заводится в штробу в стеновой поверхности. Это место также хорошо герметизируется.
После установки козырька рама окрашивается в два слоя эмалевой краской. На торцы поликарбонатных листов устанавливаются специальные заглушки, которые исключают вероятность попадания влаги внутрь ячеек.
Подготовка к обшивке балкона поликарбонатом
Перед тем как застеклить балкон поликарбонатом своими силами, потребуется осуществить некоторые подготовительные работы. Необходимо предварительно установить на балконе каркас, к которому в дальнейшем будут закреплены поликарбонатные листы. Именно поэтому обязательно должны быть установлены рамы, выполненные из алюминия.

В том случае, если отсутствуют определенные умения и навыки работы в сфере строительства, закрыть балкон поликарбонатом самостоятельно не получится, в результате чего потребуется обратиться за помощью к квалифицированным специалистам. Только так можно получить балкон из поликарбоната высокого качества
Важно понимать, что от качества проводимых монтажных работ полностью зависит конечный результат, уровень прочности и эксплуатационный срок возведенной конструкции
Если планируется использовать для отделки балкона сотовый поликарбонат, то потребуется предварительно разрезать строительный материал согласно размерам балкона. Как известно, полимерный строительный материал имеет стандартные размеры, которые составляют 3050х2150 мм. Для того чтобы разрезать листы на куски нужного размера, можно воспользоваться дисковой пилой с зубьями самого мелкого размера.

Между поликарбонатным листом и алюминиевой рамой обязательно должен быть оставлен небольшой зазор, равный 4 мм – данный размер считается многими специалистами в сфере строительства оптимальным.
Так как в большинстве случае листы отделочного материала могут препятствовать проникновению в помещение прямых солнечных лучей, то рекомендуется отдавать предпочтение прозрачным изделиям, а именно монолитной продукции. Несомненно, если воспользоваться цветными моделями, то внешний вид балкона будет намного лучше.

Совет! Не рекомендуется осуществлять обрезку листов впритык
Важно учитывать тот факт, что размер изделий может изменяться в зависимости от колебания температурных режимов. Если пренебречь данным моментом, то первоначальный внешний вид может быть безнадежно потерян










