Главный вопрос строительства пристройки
Строительство любой пристройки на основе деревянного каркаса начинается с выбора места под установку пристроенного помещения и выполняется черновая разметка будущего фундамента. Правильный подбор схемы фундамента гарантирует долговечность конструкции, простое копирование устройства основы подобно каркасу сарая или деревянной беседки чаще всего заканчивается обрывом несущих стоек и даже опрокидыванием пристройки.
На каком основании ставить каркас пристройки
Перед тем как пристроить каркасную пристройку к дому необходимо снять дерн и хотя бы приблизительно определить характер грунта. Чем больше глины, тем жестче и тяжелее должен быть фундаментное основание каркаса пристройки.
Деревянные постройки с несущим каркасом устанавливают на следующих типах фундамента:
- Свайно-ростверковый;
- Столбчатый;
- Ленточный малозаглубленный.
Наиболее подходящий вариант фундамента определяют по степени пучения грунта в зимний период и жесткости стен дома. Для каркасной пристройки к деревянному дому небольшого размера можно использовать столбчатый фундамент.
В идеальном варианте деревянный каркас маленькой пристройки устанавливают на одном фундаменте с домом, это позволяет избежать проблем с усадкой и температурными колебаниями. Небольшой вес пристройки практически не оказывает влияния на деревянные стены основного дома.
Другое дело, если пристроенное к дому помещение имеет два этажа, а размеры каркаса лишь немногим меньше каркасной основы самого дома. В этом случае пристройку устанавливают на ленточный фундамент из кирпича или бетона, так как каркас из бруса, даже усиленный подкосами, получается недостаточно жестким.
Свайные опоры под каркас пристройки
Ленточный фундамент хорошо сочетается с деревянным каркасом пристройки на относительно стабильных песчаных и каменистых грунтах, если необходимо установить пристроенное помещение на глинистых или обводненных грунтах, то единственным вариантом основанием будет свайно-ростверковый фундамент.
Благодаря использованию свай удается решить две серьезные проблемы:
- Избежать деформации каркаса, разрушения балок перекрытия и обвязки стоек из-за пучения грунта;
- Снизить перетекание пи поглощение грунтовой влаги деревянными конструкциями каркаса. Ленточный фундамент всегда считался самым «мокрым» и холодным.
Использование винтовых свай позволяет собрать пристройку любого размера, практически к любому дому, будь то кирпичное, блочное или деревянное строение. При этом каркасный пристрой к деревянному дому получается сбалансированным по горизонтальным нагрузкам, то есть при сильном ветре или давлении грунта, жесткости фундамента хватает, чтобы не нагружать основное здание.
Сваи можно ввернуть или залить в непосредственной близости к фундаменту здания, так как нет глубоких траншей, а опоры «мягко» вворачиваются в грунт, то риск повредить основание дома сводится к минимуму.
Для небольших помещений каркасную конструкцию можно установить на более дешевых асбестоцементных трубах, чтобы надежно привязать скелет будущих стен и пола к опорам в оголовки труб замуровывают проволоку или анкерные болты.
Ленточный фундамент пристройки
Схема постройки ленточного основания для пристроенного к дому помещения практически ничем не отличается от стандартного МЗЛ–фундамента. С той только разницей, что ширину ленты делают достаточно тонкой, не более ширины обвязочного бруса. Шире делать не имеет смысла, так как бетонная лента имеет запас прочности на порядок больше, чем требуется для удержания каркаса пристройки. Фундамент для каркасной пристройка к дому строится своими руками, фото, за два полных рабочих дня
Цоколь фундамента обязательно оклеивается рулонной гидроизоляцией и настилается обвязочным брусом, к которому будут крепиться вертикальные стойки, подкосы или СИП панели.
Далее идет черед набивки досками чернового пола, утепление и гидроизоляцию пристроенного помещения выполняют на завершающем этапе, а пока укладывают щит из досок для удобства сборки каркаса пристройки. После сборки каркасной конструкции на обвязочный брус будут уложены лаги и потом принимается решение о том как зашивать пол- досками или плитами ОСБ.
Пристройка к дому из каркаса
Если требуется построить дополнительное помещение к деревянному дому за максимально короткий срок времени, лучше всего сделать пристройку в виде каркасно-щитовой конструкции. На первый взгляд, каркасная схема выглядит очень сложно: множество деревянных стоек и перемычек, обшитых плитами ОСБ, фанерой и шпунтованной доской. На самом деле сделать каркас пристройки к деревянному дому не представляет особого труда даже для начинающего плотника.
У каркасной схемы есть свои преимущества:
- Небольшой вес пристройки дает возможность сделать простой и недорогой свайный фундамент вместо традиционного ленточного. Время, необходимое для того, чтобы построить дополнительное помещение, сокращается с двух-трех недель до нескольких дней;
- Стоимость возведения каркасной пристройки составляет примерно половину от расходов на аналогичную конструкцию из бруса или газобетона;
- Каркасная пристройка при небольшом весе обладает высокой жесткостью за счет использования большого числа подкосов и распорок;
- Благодаря применению ажурной силовой схемы каркаса пристроенное помещение может быть достаточно большим, даже в два этажа;
- Даже если деревянный дом оборудован сложной ломаной крышей, построить для пристройки полноценную крышу и соединить ее со стропильной системой здания намного проще, чем в случае, если пристроенная коробка сложена из кирпича или пеноблока.
В виде каркасной пристройки можно сделать утепленную веранду, баню и даже комнату отдыха. Если деревянный дом поставлен на бетонный ленточный фундамент, в пристроенном помещении можно сделать огромные оконные проемы, превратить ее в студию или столовую комнату.
Каркасная схема пристройки идеально подходит для строительства мансардного помещения на втором этаже деревянного дома. Даже если здание построено из бревна, современные утеплительные материалы обеспечивают комфортные условия для проживания в зимнее время.
В идеальном случае каркасную пристройку нужно строить на ленточном бетонном фундаменте. Возможно, это не самый дешевый способ построить дополнительное помещение, но использование МЗЛФ дает несколько ощутимых преимуществ:
- Во-первых, бетонная лента существенно усиливает жесткость каркасной пристройки. Исключением могут быть варианты, когда деревянный дом по ряду причин пришлось сделать на свайном фундаменте;
- Во-вторых, жесткое основание исключит проявление таких неприятных явлений, как перекос стен или осадка дверных и оконных проемов, даже если окна в пристройке сделать на полстены.
Если правильно привязать бетонную ленту под пристройкой к основанию деревянного дома, то независимо от протекания усадочных процессов, между стенами дома и пристроенного помещения никогда не образуется щелей или зазоров, характерных для тяжелых конструкций из кирпича и камня.
Но есть одно ограничение, специалисты не рекомендуют строить каркасные помещения на бетонных ленточных фундаментах в условиях сильно обводненных грунтов. Помимо сил морозного пучения, деформирующих основание пристроенного помещения, деревянная каркасная пристройка даже при использовании гидроизоляции оказывается достаточно чувствительной к грунтовой влаге.
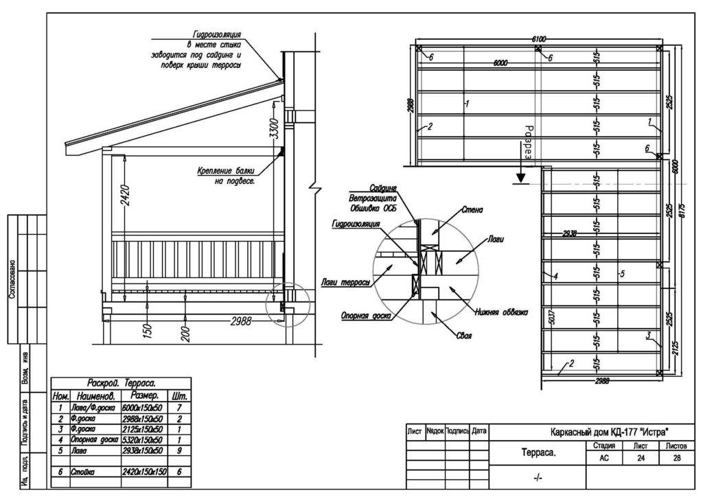
Одним из примеров решения подобной проблемы в строительстве каркасных пристроек является совместное строительство пристройки и открытой террасы на фундаменте ростверкового или свайного типа.
Огромная щитовая терраса из лиственницы или полимерной доски устанавливается на фундаменте из винтовых свай, фото. Прочности и жесткости свайного фундаментного поля достаточно для того, чтобы построить на террасе огромную каркасную конструкцию с просто огромными окнами. Деревянные стены дома и пристроенного помещения закрывают вентилируемым сайдингом с отделкой под натуральный камень.
Перекрытие пристройки и кровля
Крыша пристройки тоже должна гармонировать с основным зданием. Подберите качественный кровельный материал и проведите строительные расчеты размеров и углов наклона. Для шифера и металлочерепицы оптимальный угол наклона от 30-40º, для металлопрофиля – от 20º, для профнастила – от 12º.
Технология кровельного процесса включает такие этапы:
- На стены установите потолочные перекрытия в виде деревянных брусьев. Закрепите их уголками на расстоянии 50-70 см друг от друга. Если стены из кирпича – вмуровывайте брусья в бетон. После обшейте их досками и утеплите.
- Уложите по периметру боковых стен мауэрлат. Он будет служить опорой для стропил, которые возводятся на расстоянии не больше 70 см друг от друга. Между стропилами и балками перекрытия должен получиться одинаковый шаг. Чтобы обезопасить стены от воды, стропила должны выходить за границы стен на 30 см.
- На стропила уложите специальную гидроизоляционную пленку и установите обрешетку в виде горизонтальных досок.
- Выбранный кровельный материал уложите на обрешетку.
Наиболее простым и доступным вариантом для самостоятельной кровли считается однаскатная крыша
Утепление стен и пола
Идеальный утепляющий материал – минеральная вата. Она утрамбована в небольшие маты, которые остается только укрепить на стенах
Важно защитить вату от влаги, поэтому со стороны улицы и помещения обязательно укладывается слой материалов, останавливающих влагу и не дающих ветру продувать стену насквозь. Такая подушка надежно предохраняет дом от промерзания и намокания
Чтобы усилить эффект, можно положить несколько слоев минеральной ваты, при этом важно следить, чтобы стыки между матами разных слоев не совпадали – это поднимет уровень защиты.

Утепление стен и пола 172 После утеплителя стены обшивают выбранным материалом (гипсокартон, ДСП), затем оклеивают обоями, красят, используют вагонку и т. д. на выбор. Снаружи стены также надо обшить. Здесь подойдет дерево, сайдинг – любые материалы для наружных работ.
Если посмотреть на стену в разрезе, она должна выглядеть так:
- слой внешней облицовки;
- ветроизоляционный материал;
- утеплитель;
- пароизолирующий материал;
- слой внутренней облицовки.
Для утепления пола, лежащего на деревянных лагах, используют ту же схему, что и для стен. Если на бетонном сделать сухую стяжку, можно будет устроить систему «теплый пол».
В принципе, возвести пристройку по силам каждому. Можно сказать, что это первый урок на пути к постройке полноценного дома. Поэтому не пугайтесь объема работ – начните, и все получится. Главное, используйте качественные материалы, инструменты и не забывайте про технику безопасности.
Новому помещению – новый пол
После того, как сделана крыша, настало время подумать в поле. Его мы также можем сделать своими руками. Если кратко, то возведение пола делается в несколько этапов:
- черновой пол
- чистовой пол
Черновой пол устраивается так. По бокам половых лаг крепится черепной брусок (5Х5 см или чуть меньше). На брусок укладывают обрезные доски, толщина которых должна составлять 2-2,5 см. Следующие слои: пергамин, утеплитель, вновь пергамин. Черного пол является несущим каркасом для чистового пола, а также создает воздушную подушку для еще большего утепления. После этого начинаем укладку чистового пола.
Деревянные полы для пристройки
Чистовой пол может быть следующих видов:
- деревянный
- бетонный
Если вы решили остановиться на деревянном, используйте фрезерованную доску. Очень удобные те, что соединяются шипами в пазах. Размеры могут быть следующие: 28-44х98-145мм. На тыльной стороне у них имеются продухи, обеспечивающие вентиляцию и циркуляцию воздуха. Размер продуха составляет около 20 мм.
Также для деревянного пола можно использовать: шпунтованные фальцованные доски, которые продаются с рейками в шпунт и шипами различных форм (прямой, сегментной и трапециевидной).
После чистового пола можно делать отделку.
Бетонный пол делается проще. После слоя изоляций и утеплителей проводится бетонная стяжка. Поверх стяжки можно класть отделку. Стяжку своими руками можно сделать, зная технологию. Однако бетонный пол имеет один минус – он холодный. Поэтому стоит подумать о системе «теплые полы» в пристройке, если она будет жилым помещением.
Уже готовые трубки, зафиксированные на ячейки решетки — удачный ход
Теплый пол делается так:
- Сперва укладывается бетонное основание или стяжка.
- Кладется лой теплоизоляции (20-100 мм).
- Армирующий слой
- Укладываются трубы водяной системы отопления. Для фиксации они закрепляются хомутами к ячейкам арматурной сетки. Шаг укладки трубы не должен превышать 3 см.
- Следующий слой — подложка под напольное покрытие.
- На последнем этапе монтируем напольное покрытие. Это может быть паркет, ламинат, плитка, линолеум и другие.
Кроме водяного теплого дома, вы можете сделать электрический, который еще проще.
Когда готов пол, проводим установку дверей и окон. Они крепятся с помощью саморезов, распорок, гвоздей и клиньев. Установка происходит по уровню.
О проводке электричества в новое помещение вы можете прочитать здесь. Проводка может осуществляться как извне дома, там и через общую стену с пристройкой.
Кровля — один из важнейших элементов конструкции
В качестве кровельного материала используйте тот, который вам больше всего нравится. На сегодняшний день самым дешевым вариантом является обычный 8-волновой шифер длиной 175 см. На пристройку размерами 5х11 м нужно будет более 30 таких листов. По ширине 3 листа и 10 листов по длине, а то и больше. Точное количество зависит от того, с каким нахлестом вы будете укладывать материал. Нахлест должен быть от 5 до 10 см.
Место, в котором крыша примыкает к дому, необходимо перекрыть фартуком из оцинкованного железа, согнув его под углом (угол должен быть около 120°, точное значение зависит от угла наклона кровли). Ширина фартука — не меньше 30 см.
Схема армирования ленточного фундамента.
Вам понадобится лист оцинкованного железа 2,5х1,25 м, который нужно разрезать при помощи болгарки или кровельных ножниц на 4 полоски по длине. Одну сторону фартука крепите к стороне дома таким образом, чтобы она зашла под свес крыши. Вторую сторону необходимо уложить сверху на шифер пристройки и тоже закрепить. Для этого используйте шиферные гвозди длиной 100-120 мм. Концы гвоздей загибать не нужно. В противном случае жестко закрепленные листы могут потрескаться под воздействием перепадов температуры. В крайнем случае их можно обрезать при помощи болгарки. На 1 лист шифера используйте как минимум 5 гвоздей.
Вместо шифера можно использовать и другие, более дорогие материалы. А дешевле шифера может быть только рулонный материал, такой как рубероид. Однако такой вариант стоит рассматривать, только если вы очень сильно ограничены в бюджете.
Особенности пристройки из бруса естественной влажности. Соединение с домом
Прочное и надежное основание – только часть проблемы, которая в принципе характерна для всех капитальных пристроек. Это не крыльцо и не летняя веранда, для которых не столь важна герметичность и теплоизоляция стыка к фасаду дома
А для пристраиваемого жилого помещения важно, чтобы не было щелей
Для пристройки из кирпича к кирпичному дому задача герметизации решается просто – оба материала одинаково стабильны и не меняют своих размеров ни во времени, ни при изменении влажности. И здесь используют обычную монтажную пену, которую сверху заделывают цементно-песчаным раствором.
Дерево ведет себя по другому. Особенно, если используют брус естественной влажности – застывшую пену просто разорвет. Поэтому стык между фасадом дома и стеной пристройки надо сделать в виде непродуваемого «скользящего» узла.
Сам принцип не новый – аналогичный прием используется при соединении обсады (посадочной рамы) окна к стенам деревянного дома. Или таким же образом крепят к стенам внутренние перегородки из бруса.

Один из вариантов крепления бруса к деревянной стенеИсточник optolov.ru
Есть разные способы соединения пристройки из дерева к фасаду дома. А выбор конкретного вида зависит от материалов фасада.
Перекрытия и крыша
После возведения стен делают перекрытия и на их основе строят крышу:
- Сначала нужно установить потолочные балки. Они прикрепляются к верхним балкам каркаса, устанавливаются параллельно друг другу на расстоянии 60-70 сантиметров друг от друга. Их обычно принято закреплять с помощью специальных уголков.
- Сверху устанавливаются стропила, которые представляют собой деревянные брусы, расположенные под небольшим наклоном, на которые устанавливается вся конструкция крыши. Здесь мы говорим об односкатной крыше, имеющей наклон в двадцать — двадцать пять градусов. Такой наклон необходим для того, чтобы обеспечить очистку крыши от снега или дождевой воды.
- Верхняя часть стропил ставится на специальные небольшие бруски, которые будут их опорой. На них ложится горизонтальный деревянный брус, к которому и будут прибиты стропила. Их край должен выходить за пределы стен на 25-30 сантиметров, для того, чтобы стекающая вода не попадала на стены. Деревянные брусы закрепляются с помощью металлических уголков.
- Нужно обеспечить правильное соединение крыши пристройки и крыши дома такое, чтобы исключить протекание на этом стыке.
- Для установки кровли можно поступить двояким образом. Если речь идёт об использовании материалов типа черепицы, то по верху стропил нужно прибить листы фанеры (или частая поперечная обрешётка) и сверху на них класть кровлю. Если же речь идёт о больших металлических листах, которые можно просто расположить внахлёст, то их можно прикреплять непосредственно на стропила. Перед укладкой кровельного материала должен быть проложен слой гидроизоляции.
- Кровля укладывается слоями с нижнего края крыши так, чтобы кровельный материал располагался внахлёст.
Проектировка и расположение веранды
Сделать каркасную веранду обычно стараются перед входом в основной дом: такая пристройка заменяет собой большое крыльцо. Однако можно расположить её сбоку: в этом случае на неё нужно будет сделать отдельный вход с дополнительным крыльцом. Каркасное строительство позволяет реализовать самые разные проекты, поэтому нужно определиться со следующими параметрами:

Размеры пристройки. Стандартная ширина составляет 2,5 метра, длина зависит от длины самого здания. Нужно заранее продумать, как это помещение будет использоваться, чтобы оно не оказалось слишком тесным.
Тип фундамента. Для пристройки можно использовать ленточное, свайное или столбчатое основание, последний вариант является самым распространённым.
Он представляет собой бетонные столбы, которые устанавливаются в местах максимальной нагрузки, которые устанавливаются на глубину ниже промерзания грунта. Ленточное основание рассчитано на более мощные сооружения, и стоить оно будет дороже.
Вариант заполнения стен. Обычно веранда остаётся хотя бы наполовину открытой: всё-таки это летняя пристройка, для которой характерна большая площадь остекления.
Можно оставить её полностью открытой, наподобие небольшой террасы, но в этом случае на ней будет комфортно находиться только летом. Можно использовать современный вариант с панорамным остеклением, площадь веранды можно превратить в мини-оранжерею, если расположить её на солнечной стороне дома.
Материал для кровли. Он обычно совпадает с материалом, использованным для основной крыши: это может быть профлист, металлочерепица, асбестоцементные листы и т. д. Кровельная система веранды является продолжением кровли дома, обычно для неё устанавливается односкатная крыша.
Строительство каркасной веранды своими руками можно начинать сразу после возведения основного дома: в идеале она должна быть сразу включена в проект, чтобы был общий фундамент. Однако на практике пристройки часто возводятся через десятки лет после основного строительства: это отличный способ обновить внешний облик дома и сделать его более уютным и современным.
Делаем все по закону
По окончании всех строительных работ каркасную пристройку к дому следует узаконить. Владельцы, зачастую с опозданием начинают задумываться об узаконивании своей постройки. Но более дальновидный хозяин понимает, что это следует сделать перед началом работ. Самовольно сооруженную пристройку гораздо сложнее легализовать, нежели все согласовать перед началом работ.
Если вы уже возвели строение, то появится необходимость обращаться в суд, решение которого не всегда однозначно и, в случае проигрыша дела, придется сносить шедевр архитектурного строения. Самое неприятное, что это придется делать за свой счет. Можно, конечно, не ставить никого в известность и получать удовольствие от использования неучтенных квадратных метров, но это чревато тем, что впоследствии вы не сможете свою собственность продать, сдать в аренду, а также завещать или дарить.
Во избежание неловких моментов, стоит к походу в суд подготовиться основательно, собрать все необходимые (и не только) документы, в ряду которых самыми важными являются:
- Документ на право собственности землей;
- На право собственности жилых помещений;
- Бумага из БТИ;
- Разрешительный акт из ЖКХ;
- Выписка из домовой книги о зарегистрированных гражданах в вашем доме;
- План каркасного пристроя;
- Проект дома;
- Съемка пристроенного сооружения в масштабе 1:500;
- Одобрение соседей (в случае если строение будет граничить с их наделом земли);
- Справка от эпидемиологической службы;
- В некоторых случаях может потребоваться фотография участка, основного строения и самой пристройки.
После подачи искового заявления следует ожидать ответ, который придет по почте. Чтобы быть уверенным, что ваш иск дошел по адресу, следует позвонить и уточнить доставку, делается это, как правило, через 10 рабочих дней.
Судьи имеют право отклонить прием искового заявления только в 2 случаях:
- Уже принятое решение по поводу вашего запроса;
- Или же неграмотно составленное исковое заявление. При втором варианте отказа следует подать повторный иск.
На время судебного разбирательства ответчиком становится муниципалитет, истцом же в данном случае является сам собственник жилья, к которому осуществлен пристрой. В случае положительного решения суда для владельца ему следует взять в Росрегистрации платежный документ для оплаты госналога, внести деньги и получить все причитающиеся документы по узакониванию самовольного сооружения.
Если говорить о расходах, то порядка 10 000 рублей уйдет на услуги юристов, сбор информации и т. д. Госпошлина в этом случае равняется, в среднем, 500 рублей, в Градостроительном кадастре запись будет стоить около 20 000 руб., и не более 60 000 руб. стоит судебная строительно-техническая экспертиза. Подсчитав все эти расходы, мы понимаем, что окромя затрат на саму постройку, ее узаконивание потребует, в среднем, 100 000 рублей.
Поэтому настоятельно рекомендуется легализовать строение до его возведения, это будет проще, быстрее и легче, а главное — на порядок дешевле.
Возведение каркаса и стен
Стены из бруса удобнее всего собирать сначала в горизонтальном положении, делая своего рода щит, и только после этого устанавливать на нужное место. Можно работать с каждым брусом отдельно, размещая последовательно и соединяя с балками.
Статья по теме:
Полезное применение пластиковых бутылок в огороде: 10 способов

Возведение каркаса и стен
Основные этапы:
- через каждые полметра делают выемки на нижней обвязке – в них будут устанавливаться вертикальные брусья;
- устанавливают их, тщательно закрепляя саморезами;
- делают аналогичную обвязку сверху;
- чтобы соединить веранду с домом, на его стене размещают вертикальные брусья, крепят к ним конструкцию анкерными болтами;
- получившийся скелет плохо противостоит непогоде, чтобы он не разрушился, надо сразу переходить к обшивке стен;
- оконные и дверные проемы остаются пустыми, пока не будет закончена крыша;
- затем их вставляют.
Подбираем основание
Встроенная веранда делается только вместе с домом на этапе его возведения. Далее возможно создавать только пристроенные конструкции. Чтобы они были надежными, понадобится фундамент. Единственное исключение – если веранда планировалась изначально, фундамент и настил для нее сделали, а стены и крышу оставили на потом.

Встроенная веранда делается только вместе с домом на этапе его возведения
Создание основы для постройки – второй этап после разработки детального чертежа
Важно просчитать условия, учесть тип грунта, его подвижность, даже погодные условия – если местность часто заливает, позаботьтесь, чтобы фундамент не размывало
Существует немало материалов, которые могут пригодиться при возведении основания для пристройки. Это сваи из дерева, бетона, стали, камни, кирпичи и т. д.
Статья по теме:
Секционное решение для своей территории
Типов фундамента тоже много, поэтому выбрать подходящий не составит труда:
- свайный;
- плитный;
- свайно-ростверковый;
- ленточный;
- столбчатый.
Два последних вида наиболее востребованы и распространены в наших широтах. Разберемся с ними подробно.
Инструменты и материалы для создания каркасного пристроя к дому
Разрешение из БТИ получено. Теперь необходимо подготовить инструменты и материалы для строительства. Вам потребуются:
- цементный раствор;
- деревянные доски;
- песок;
- мелкие камушки;
- ОСБ-плиты;
- утеплитель;
- гидроизоляция;
- шпаклевка;
- краска для ОСБ-плиты;
- материал для устройства крыши;
- деревянная или металлическая дверь (по желанию хозяина);
- окно в пластиковой или деревянной раме (в случае необходимости);
- линолеум, керамические плиты или ламинат для отделки пола;
- перфоратор;
- строительный миксер;
- валики и кисти;
- гвозди и саморезы;
- монтажная пена;
- строительный степлер;
- лопата;
- металлические трубы диаметром 15-20 см, длиной 2,7-3 м.
Цементный раствор реализуют в пакетах по 25 килограммов каждый. Правила использования указаны на упаковке товара. Цена – 700 до 2 тысяч рублей, одни из лучших производителей — «Силка», «Макссил», «Мапей».

Основание пристройки должно быть прочным и устойчивым, поэтому для фундамента выбирайте качественный цемент, а не дешевую смесь
Деревянные доски понадобятся сначала для создания опалубки фундамента. Затем ими можно будет застелить залитый цементом пол, чтобы утеплить его и смягчить. Для подобных целей лучше всего подойдут ель, сосна, дуб. Толщина доски – не менее 5 миллиметров. Длину выбирайте в зависимости от площади каркасной пристройки к дому.
Выбирайте ОСБ толщиной не менее 7 миллиметров с размерами 100 × 100 сантиметров. Сама плита должна быть гладкой и однотонной. Это говорит о высоком качестве изделия.
Как утеплитель можно использовать минеральную вату или пенополистирол. Первый вариант дешевый, но материал быстро приходит в негодность. Пенополистирол имеет длительный срок эксплуатации (до 20 лет). Реализуется в виде плит, размеры одной — 200 × 100 сантиметров.
Выбирайте изделия от 10 миллиметров толщиной от компаний: «Пеноплекс», «Экстрол», «ТехноНиколь».

Пенополистерол для утепления пристройки к дому предпочтительнее, чем минвата. Он не впитывает жидкость, не боится перепадов температур
Гидроизоляция нужна обязательно. В качестве таковой можно использовать полимерный рулонный материал. Толщина – не менее 5 миллиметров.
Цена за квадратный метр – около 500 рублей. Среди фирм пользователи рекомендуют отдавать предпочтение следующим: «Боларс», «Пенетрон», «Полилен», «Зубр».
Шпаклевка и краска нужны для наружной и внутренней отделки. Узнать о выборе краски подробнее можно здесь.
На крышу можно положить металлочерепицу. Это прочный и устойчивый к погодным катаклизмам материал, который прослужит долго, к тому же он выглядит стильно, стоит недорого.
За квадратный метр вы заплатите 200-400 рублей. Толщина черепицы должна быть не менее 5 миллиметров.
Важно: проще всего создать каркасный пристрой к дому с помощью ОСБ. Такая комната будет теплой и прочной, если правильно утеплить ее. Конечно, возвести стены можно из кирпича, пеноблоков или деревянных брусьев
Но это гораздо дороже и энергозатратней
Конечно, возвести стены можно из кирпича, пеноблоков или деревянных брусьев. Но это гораздо дороже и энергозатратней.
Сколько взять материала для стен и пола? Какова сумма затрат? Все зависит от размеров самого пристроя.
Определиться с видом помещения помогут чертежи, представленные ниже:

С помощью такого чертежа можно создать простой пристрой к дому с односкатной крышей. Используйте собственные размеры

Такой чертеж пристройки к дому поможет просто и быстро возвести дополнительную комнату или, например, кладовую
Перекрытие и кровля
Односкатный тип кровли сочетается практически с любой крышей дома, поэтому является самой распространённой конфигурацией. Его и рассмотрим.
- Стропила одним концом утанавливают под скатом крыши дома, а другим опирают на стену веранды. Фиксируют металлическими уголками. Главное, точно подобрать угол уклона.
- Стропильные ноги должны выступать за границу стены минимум на 30 см. Такой свес крыши защитит стены веранды от атмосферных осадков.
- Вопрос с покрытием кровли решают заранее. Обычно выбирают тот материал, которым покрыт дом. Под мягкую кровлю на стропила укладывают сплошной материал: фанеру, листы OSB или частую обрешётку. Шифер или металлочерепицу укладывают на стропила, если лаги установлены с малым шагом.
Односкатная крыша для каркасной веранды
- Конструкцию покрывают гидроизоляцией, которую подбирают индивидуально к материалу покрытия.
- Укладку кровли начинают с нижней части стропила.
- Для утепления применяют минеральную вату, которую укладывают между стропилами. Зашивают потолок досками или панелями и декорируют.





