Разновидности двойных распашных дверей
Такие двери сегодня можно заказать на любой вкус. Большое разнообразие моделей и материалов, из которых они выполняются, позволяют каждому найти вариант согласно своим пожеланиям и предпочтениям. Распашные двери являются достаточно распространенными, ведь они функциональны, обладают хорошей шумоизоляцией, неплохо держат тепло, просты в эксплуатации.
Распашные двустворчатые двери со вставками из матового стекла
Существуют различные виды двойных дверей для межкомнатного пространства с распашной конструкцией. По типу открывания их делят на 2 группы:
- односторонние – открываются только в одну сторону;
- маятниковые – створки распахиваются в обе стороны.
Двойные двери очень удобны. К их основному преимуществу по сравнению с одностворчатыми конструкциями относят наличие значительно меньшей площади, которая требуется на распахивание. Кроме того, они позволяют спроектировать достаточно широкий проем, когда другие виды дверей совершенно не подходят. Бывают такие разновидности распашных конструкций с 2-мя створками, как:
- прямоугольные;
- арочные;
- стрельчатые;
- с фрамугой.
Прямоугольные двустворчатые двери
Ширина полотен бывает как одинаковой, так и разной. В некоторых моделях предусмотрена возможность зафиксировать одну створку с помощью задвижки. Это позволяет в зависимости от ситуации открывать одновременно оба полотна двери или только одну створку. Дверные полотна, которые имеют разные размеры, чаще устанавливают в не слишком широкие проемы. Такой тип конструкции особенно хорошо вписывается в недостаточно просторные помещения.
Сырье, которое используется для производства таких дверей, тоже может быть различным. Двойные распашные конструкции выпускают из:
- массива дерева различных пород;
- шпона и МДФ;
- пластика (ПВХ);
- стекла;
- в комбинации из нескольких видов материала.
Двустворчатые двери из МДФ
Особенно изысканно при сочетании материалов выглядят двери со вставками из стекла. Оно может быть матовым, рельефным или с рисунком. Дверные же конструкции из массива дерева можно назвать классикой, они всегда смотрятся очень привлекательно. Створки полностью из стекла используются достаточно редко, но такой вариант выглядит стильно и богато.
Конструкция входных групп из пластика
Изделия состоят из следующих элементов:
- Профильная рама. Улучшенные защитные характеристики конструкции пластикового профиля достигаются за счет усиления стальными элементами.
- Пластиковое полотно. Внутри конструкции предусмотрен теплоизолирующий материал.
- Стеклянные вставки разного размера и формы. При этом стекло предложено в двух вариантах: триплекс и бронированное. И то, и другое при ударе не разлетается на мелкие кусочки, а остается на специальной пленке, которой оно покрыто.
Варианты дизайна штульповой двери из пластика
Дополнительные варианты
- Надежные замки.
- В некоторых моделях полотен из пластика, представленных сегодня, есть стальные вкладыши, которые перекрывают доступ к замкам, усиливая защиту от несанкционированного проникновения в дом.
- Порог, который оснащен теплоизоляционной прокладкой.
Конструкция входных блоков распашная, причем в большинстве случаев используется шпульповая технология. Одна из створок открывается, вторая зафиксирована на нижние и верхние шпингалеты. Она открывается, когда нужно. Часто рабочая створка пластикового блока больше по размерам.
Такая конструкция для входной группы удобна, ведь смонтировать в широком дверном проеме большое по площади полотно из пластика не удастся – тяжелая створка со временем провиснет и потребует замены. К тому же петли и замки быстро выйдут из строя.
Используемые материалы для изготовления
Все межкомнатные двери можно разделить по типу используемого для их производства материала. Эта классификация понемногу расширяется, поскольку изготовители постоянно пытаются создавать новые технологии, позволяющие удешевить производство, сохраняя при этом хороший внешний вид и качество изделий. Так межкомнатные двери бывают:
- Деревянными;
- Металлическими;
- Композитными;
- Стеклянными.
Дерево
В процессе производства деревянных дверей используются различные породы дерева. Наиболее надежными и прочными считаются двери, изготовленные из дубового массива. Однако, одновременно с этим, они являются одними из самых тяжелых и дорогих. Довольно часто применяются пиломатериалы из ясеня, бука, ореха, ольхи и сосны.
Основным преимуществом таких изделий является их натуральность и экологичность. Именно благодаря этому они весьма популярны. Конечно же, межкомнатные дверные конструкции из дерева имеют еще множество достоинств и некоторые недостатки. Однако эти показатели разнятся в зависимости от типа используемой древесины.
Металл
Несмотря на значительную прочность и выносливость материала, его использование при производстве межкомнатных полотен весьма ограниченно. Это объясняется как существенным весом конструкции, так и теплопроводностью материала.
Композитные материалы
К изделиям из композитных материалов относится огромное количество дверей, состоящих из листов МДФ, ДСП, покрытых натуральным либо экошпоном, а также пластиковые конструкции. Объединение такого разнообразия изделий в один тип обусловлено принципом производства сырья. Так, для изготовления каждого из этих видов материалов используется несколько составляющих, обеспечивающих в совокупности необходимую плотность и износоустойчивость поверхности готового изделия. К примеру, дверь из МДФ плит производится путем проклейки брусьев, накладок и ламинирования всей поверхности. При изготовлении ПВХ дверей применяются элементы жесткости в виде алюминиевых профилей.
Однако использование того или иного композитного материала при изготовлении дверей разнится. Дверные полотна из МДФ и ДСП достаточно распространены в основном благодаря своей легкости и небольшой стоимости. Дверные конструкции шпонированного типа стоят несколько дороже благодаря свойствам получаемого покрытия и его внешнему виду.
Двери из ПВХ, несмотря на свою высокую практичность, отличные показатели уровня шумопоглощения, сравнительно небольшой вес и цену, в качестве межкомнатных конструкций используются не слишком часто. Причиной этому является тот факт, что несмотря на огромное разнообразие цветового оформления и возможность установки декоративных стеклянных элементов, распашные межкомнатные двери из пластика не дают ощущения уюта и комфорта. В качестве межкомнатных конструкций такие изделия выглядят удачно в основном на только фото, но не в живую.
Стекло
В качестве межкомнатных полотен полностью стеклянные двери используются лишь при необходимости визуального расширения имеющегося пространства. Большую степень популярности имеют конструкции с частичным остеклением или, как минимум, с наличием обрамляющей рамы.
Виды двустворчатых дверей
На сегодняшний день двойные двери – это одни из самых популярных моделей на рынке. Преимуществом такого рода изделий является разнообразие вариантов, обилие расцветок и разные материалы изготовления. Классифицировать такие двери можно по нескольким факторам, одни из которых — тип открывания и материал изготовления.
По типу открывания
На основании конструктивных особенностей, специалисты выделяют четыре основных вида двустворчатых межкомнатных дверей по типу открывания:
Распашные. Такие двери по способу открывания ничем не отличаются от обычной одностворчатой. Створки располагаются зеркально по отношению друг к другу, каждая из них открывается только в одну сторону. Отличительной чертой является легкий монтаж и надежность. Также стоит отметить, что при грамотной эксплуатации дверная конструкция станет вашим верным помощником на долгое время (до 15-20 лет).

Маятниковые. Особенностью таких дверей является особый механизм поворота. За счет этого створки открываются в обе стороны (как внутрь, так и наружу). Маятниковые двери еще имеют название «качающиеся», очень удобны в эксплуатации.
Раздвижные. Такие дверные блоки отличаются тем, что створки не открываются наружу (как у распашного типа), а скользят по направляющей в стороны. Рельсовый механизм может быть установлен как вверху, так и внизу. Большой плюс данных решений в экономии жилого пространства.

Складные. Такая дверная система включает в себя створки, которые способны складываться по типу «гармошка». Это необычный, и в то же время экономичный вариант межкомнатных дверей.


На видео: нюансы выбора межкомнатных дверей.
По материалу изготовления
Изготавливают двустворчатые конструкции из дерева, металла, стекла, пластика. Самые дорогие модели – из массива натурального дерева. К бюджетным вариантам можно отнести полотна из деревянного каркаса, покрытого шпоном, ламинированным МДФ, пленкой ПВХ.
Выделим основные особенности дверей из конкретного материала:
Дерево. Двери изготавливают из разных пород древесины, самые качественные и дорогие модели – дубовые. Обладают хорошими звуко- и теплоизоляционными свойствами. Створки могут иметь различный декор: вставки из стекла, витраж, резьбу, изящные ручки. Такие межкомнатные двери больше подходят под классический интерьер.

Металл. К этой группе относятся не цельностальные двери, а металлопластиковые аналоги. Их основное преимущество в прочности, надежности и долговечности. Конструкции весят не более 20 кг, каркас полотен изготавливается из оцинкованной стали с покрытием из МДФ, пластика.

Стекло. В качестве основы дверных полотен используется высокопрочное стекло – триплекс, которое зачастую либо не имеет рамы, либо обрамляется алюминиевым профилем. Двойные двери могут быть как из прозрачного, так и цветного, матового стекла. Их рекомендуют устанавливать в небольших помещениях, где требуется визуальное расширение пространства.
Комбинирование материалов. Межкомнатные двери могут быть в разном исполнении: иметь каркас из алюминия или клееного бруса, обшиваться панелями из МДФ или ПВХ, декорироваться стеклянными или зеркальными вставками.

На видео: из какого материала лучше выбрать межкомнатные двери.
В каких случаях устанавливать
Двустворчатыми называют двери с дверным полотном, состоящим из двух частей, объединенных общей дверной коробкой. Вообще, правильно говорить и писать — двустворчатые, но часто говорят двухстворчатые. Есть еще такое название, как двупольные или двухпольные. Это название произошло из-за того, что они состоят из двух половинок. Называют их и двойными — причина тоже понятна. Есть еще один вариант названия — полуторные двери. Это двустворчатые двери со створками разной ширины.
Двустворчатые межкомнатные двери
Когда хороши двустворчатые межкомнатные двери? Ведь не всегда и не везде они уместны или удобны.
- Большие дверные проемы хороши в просторных помещениях. Обычная дверь будет смотреться куцей, даже если она шириной 90 см. Двустворчатые двери смотрятся более «парадно», так что они отлично вписываются в интерьер гостиных.
- Если двери выходят в узкий коридор, или в открытом виде будут мешать. Это частая беда наших хрущевок, да и современные планировки не всегда удачны в этом смысле.
- Если одинарное дверное полотно некуда «пристроить», а дверь должна быть постоянно или часто открытой.
Вариант возможной установки двустворчатой межкомнатной двери
Вообще, двустворчатые межкомнатные двери в узком проеме — не слишком хороший вариант. Смысла в двух узких створка нет, ведь никто не протиснется в 40 см проход. То есть функционально узкие половинки просто неоправданны. Все равно придется постоянно открывать обе створки. А стоят они больше, чем одно полотно той же ширины, да и установка более сложная, звукоизоляция похуже, так как имеется дополнительная щель между створками. Она хоть и прикрыта планкой, идеальной тишины не даст.
Ставить двустворчатую дверь стоит при ширине проема более метра. Тогда хоть открывающуюся створку можно сделать 60 см, что позволяет нормально ходить. Вторая часть может быть зафиксирована и использоваться по особым случаям. То есть, такой вариант функционален и оправдан. Лучше он и в плане исполнения: слишком широкое дверное полотно неудобно и отбирает очень много пространства.
Распашная и раздвижная двери
Но иногда просто некуда деться — обычная распашная дверь никак не становится. Тогда приходится делать узкие половинки в двухстворчатой двери. Плюс в том, что их можно держать открытыми и они не будут перегораживать проход, сбоку от двери можно на небольшом расстоянии ставить предметы интерьера.
Это интересно: Гост двери металлические противопожарные
Двухстворчатая дверь – основные характеристики и особенности
Двухстворчатая (она же двупольная) дверь преимущественно устанавливается в помещения с широкими проемами. Такие двери удобно открываются и без труда позволяют проносить крупные предметы: технику, мебель, картины и т.д. Раздвижной тип двухстворчатых дверей позволяет без труда пропускать большой людской поток на входах в магазины, деловые центры, концертные залы и другие общественные здания. При одинаковой ширине проема двери с двумя створками удобнее, так как требуют меньших усилий и меньше места для открывания. При установке одностворчатой двери с широким полотном придется использовать более прочную раму, а также усиленные или дополнительные петли, что делает конструкцию значительно дороже.
Материалами для изготовления входных двупольных дверей могут служить: металл, дерево, стекло или современные полимерные сплавы. Дерево и металл чаще всего используют для установки на вход в жилые помещения, а стеклу и пластику (или металлопластику) отдают предпочтение при обустройстве входов в коммерческие и общественные зоны. При частной жилой застройке все чаще используются надежные стальные двери – спрос на них возрос, хотя не так давно их приобретали исключительно для подсобных помещений из-за внешней непривлекательности и неэстетичности.
Деревянные входные двери с двумя створками
Современные входные металлические двери в большинстве случаев сочетают в себе надежность с привлекательной внешней отделкой. Именно такой подход позволил им занять лидирующие позиции среди деревянных, стеклянных и пластиковых аналогов. По сравнению с деревянными моделями, изделия из металла имеют большую прочность, варианты же декорирования таких дверей сегодня не имеют границ.
Достаточно часто используют двери с прочными каркасами из стали, обшитые панелями из дерева или МДФ, не менее популярно нанесение порошковых красок с противовандальным эффектом на металлические дверные листы. Оригинально смотрятся и входные двери с накладными декорирующими фрагментами и вставками.
Важно! Двери распашного типа с двумя створками разделяют: по форме, размеру, способу декорирования и месту установки.
Конструкцией любой двустворчатой двери предусмотрено наличие двух полотен, ширина которых может совпадать или отличаться друг от друга. Как правило, одна из створок считается рабочей, а другая выполняет вспомогательные функции. Дополнительная створка, в большинстве случаев, зафиксирована в неподвижном состоянии – её прикрепляют при помощи шпингалетов к коробу и открывают в исключительно редких случаях. Однако встречаются и распашные двери с двумя рабочими створками одинакового размера, способными открываться в разные стороны. Устанавливаются такие двери преимущественно в общественных местах с высокой проходимостью и называют их маятниковыми.
Двуполая дверь из дерева на входе в дом
Форма стандартных двупольных дверей традиционна – они имеют вид прямоугольника или арочного полукружия. По индивидуальным заказам могут производиться и эксклюзивные модели любых других форм, в том числе и ассиметричные. Стандартные входные распашные двери открываются только в одну из сторон. При выборе модели и планировании помещения стоит учитывать и эту особенность дверей подобного типа.
Металлическая двухстворчатая дверь
От места размещения входных двухстворчатых дверей зависят их специфические свойства. Входные двери в подъезды, внутренние тамбурные двери, а также двери на чердаки, в подвалы и подсобки практически никогда не утепляют, да и звукоизолирующие свойства их мало кого волнуют. Блоки для входа в частные жилые и коммерческие помещения снабжают надежной теплоизоляцией: изолируют оба полотна, а также дверную коробку. Обычно, теплоизоляцию совмещают с изоляцией от шума, проникающего снаружи, а по краю блока наклеивается лента-уплотнитель.
Замок и ручка традиционно располагаются на одном полотне двухстворчатой двери, а ответная планка – на другой. В дверях обычной конструкции её размещают в (или на) стойке короба, расположенной вертикально.
Особенности монтажа
Фактически потребуется выполнять ту же работу, что и при установке однопольных дверей, только в двойном объёме. Если ширина проёма недостаточна для установки двухстворчатой двери, потребуются дополнительные работы его расширению. Это трудоёмкая и недешёвая работа, но результат в большинстве случаев оправдает все затраты: двери из двух створок визуально увеличат пространство и придадут помещению более респектабельный вид.
Распашные двери
При монтаже распашных дверей нужно быть максимально внимательным: если петли на разных косяках закреплены по-разному или суммарная ширина полотен не соответствует ширине проёма – двери закрываться не будут. При размещении петель на распашных дверях необходимо пользоваться уровнем, а не отступать на одинаковое расстояние от притолоки или пола. Любой дом имеет свойства усаживаться и вполне возможно, что дверные створки не будут ориентированы строго горизонтально.

Раздвижные и складные двери
При монтаже раздвижных или складных конструкций также необходимо вымерять горизонталь. При работе «на глазок» есть опасность пустить направляющую под уклон, тогда створки будут открываться или закрываться самопроизвольно.
В зависимости от количества створок, тяжести полотна и других особенностей конструкции дверей, используют разное количество роликов в механизме. К примеру, дверное полотно из ПВХ легко выдержат два алюминиевых подшипника, а для массивного деревянного или комбинированного полотна со стеклом и металлом понадобится как минимум три. Некоторые конструкции предполагают разное количество роликовых механизмов.

С установкой двери-пенала могут возникнуть большие сложности. Если стена с дверным проёмом выполнена из кирпича или монолитного бетонного блока — сделать карманы для створок самостоятельно будет практически невозможно, потребуется помощь специалистов. Со стеной из гипсокартона такое проделать гораздо проще: часть стены убирается, на это место устанавливается каркас для полотна и обшивается панелями обратно.
Разные виды стеклянных дверей
Для стеклянных дверей нельзя использовать стандартную фурнитуру. Необходимо пользоваться только теми комплектующими, которые будут в наборе при покупке дверей. Как правило, это металлический зажим: две стальные пластины, внутрь которых вставляется край стекла и фиксируется специальными болтами. Для таких дверей в обязательном порядке используют две направляющие, так как стеклянное полотно очень тяжелое.
Подробная информация о том, как производится установка двухстворчатых межкомнатных дверей, есть на видео выше. Если в точности соблюдать имеющиеся инструкции, то сборка дверей станет приятным занятием, а результат будет радовать долгие годы.
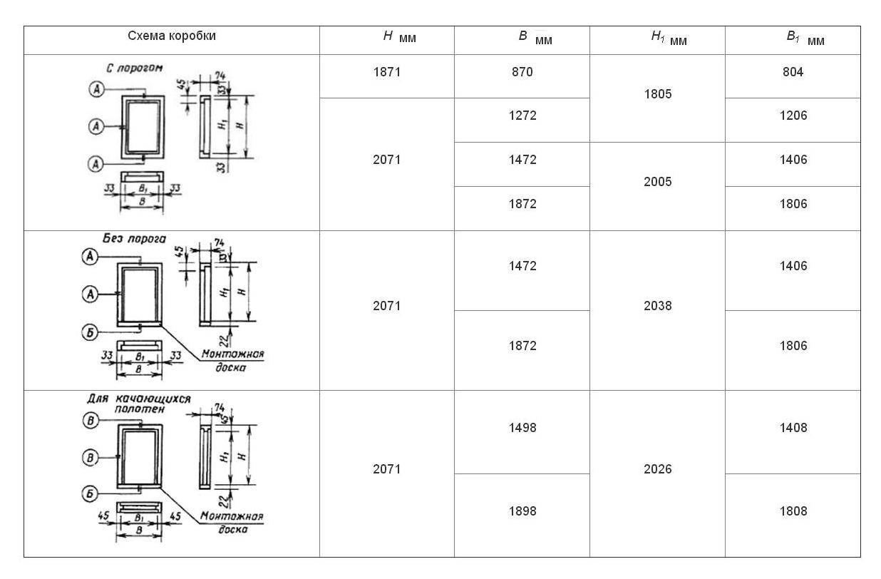
Размеры коробки
Дверная коробка — это прямоугольник, который обрамляет дверное полотно и держит петли для его навешивания. Под размерами обычно подразумевают внешний контур коробки (высоту, ширину, толщину), поскольку именно от него зависит, поместится ли коробка в проём. Если вы покупаете или заказываете коробку отдельно, потребуется также учесть глубину четверти (паза, посадочного места для створки), которая обычно соответствует толщине полотна. Стандартные размеры дверной коробки, рекомендованные действующим ГОСТом, приведены в таблице.


Для разных типов строения коробки ГОСТ рекомендует различающиеся размеры конструкции
Поскольку нормативные документы не учитывают всего разнообразия современного рынка, не каждый сможет найти в них рекомендации для своего случая. По возможности ознакомьтесь с типоразмерами на сайте производителя и не стесняйтесь измерять понравившиеся двери и коробки прямо в магазине. Иногда для экономии коробку можно заказать у столяра или сделать её самостоятельно.
Самодельные дверные коробки — это отдельная сложная история. Большинству мужчин с прямыми руками и работоспособным фрезером кажется, что собрать прямоугольник из четырёх деревяшек они смогут наверняка. Эго моего мужчины, во всяком случае, посчитало именно так. Но из-за отсутствия столярных навыков углы были собраны на самое простое соединение, так называемую четверть. В лежачем положении выровненная под угольник готовая коробка казалась верхом совершенства, во всяком случае своему создателю точно. Но при попытке её поднять и перенести обнаружился минимальный шат. Попытка установить коробку в проём вылилась в полуторачасовые пляски с бубном, угольником, уровнем и деревянными клинышками всевозможных типоразмеров, выстроганными тут же на коленке. Наконец коробка выровнялась по углам и перестала заваливаться в любой плоскости. Казалось бы, победа наша. Но на этапе навешивания двери оказалось, что полотно в коробку не влезает Мешал буквально миллиметр по высоте и крохотное «пузико» посередине левой вертикальной планки. Спасло только то, что коробка была деревянной — стоило чуть поработать шлифмашиной, и дверь встала как родная. Если бы работали с ламинированным материалом, этот номер точно не прошёл. Мораль истории вылилась в новый закон Мёрфи: «если ты не столяр, при изготовлении деревянных изделий будь готов выкручиваться».


Перепад в толщине коробки и добора — это нормально
Двери наружные и межкомнатные
По характеру расположения относительно внешней среды двери подразделяются на:
- наружные,
- межкомнатные.
Двухстворчатые наружные дверные конструкции выполняют две основные функции – декоративную и защиту от вторжений. Соответственно, и основные требования к ним – приятный внешний вид и надежность.
Функцию разграничения пространства выполняют межкомнатные двустворчатые двери, и требования к ним зависят в основном от назначения помещений. Это – эстетически привлекательный внешний вид, соответствие дизайнерскому стилю, хорошие звукоизоляционные качества, простой уход.
Распашные варианты
Традиционный и наиболее распространенный тип заполнения проемов – межкомнатные распашные двустворчатые двери. Они удобны тем, что распашные двустворчатые полотна имеют меньший радиус открывания, чем одностворчатые. Следовательно, при этом экономится часть полезного пространства.
По соотношению размеров полотен они могут быть:
- равнопольные ,
- неравнопольные.
В неравнопольных распашных конструкциях узкие полотна сочетаются с более широкими. Узкие полотна обычно удерживаются в фиксированном положении с помощью защелки или шпингалета и увеличивают ширину входа по мере необходимости.
Двери раздвижные
Полюбившиеся потребителям раздвижные двери вполне заслуживают хороших отзывов. Варианты-купе экономят пространство перед входом, что позволяет распорядиться им оптимальным образом. Современные конструкции по типу купе плавно и бесшумно перемещаются по направляющим, фиксирующим полотна в вертикальном положении.
По ширине полотна раздвижных дверей могут быть широкими или узкими, главное, что наличествовало свободное пространство вдоль стен для установки направляющих.
Материалы для дверных конструкций
Ориентируясь на размеры, эстетические достоинства, прочность конструкции и ценовую категорию, потребители могут выбрать двери из определенных материалов. Ориентирами могут служить каталоги и фото изделий.
- Если на первом месте стоит защита, то металлические изделия являются лучшими. Они имеют металлический каркас и полотна из металла. Изделия эконом-класса отделывают винилкожей или красят методом порошкового напыления. Применяются в основном для наружных входов.
- Отделка ламинатом или МДФ отлично противостоит перепадам температур, осадкам, прямым солнечным лучам и механическим воздействиям. Особо стоит отметить противопожарные двери, которые защитят офис или квартиру от огня, а их взлом представляет собой невыполнимую задачу.
- Идеальное сочетание цены и качественных характеристик предлагают производители пластиковых дверей. Из огромного ассортимента пластиковых вариантов обязательно найдется модель, заинтересующая потребителя.
- Изделия из натурального массива дерева добротны, красивы, долговечны. Они придают фасаду или интерьеру дома респектабельность. Однако, деревянные двери находятся в самой высокой ценовой категории.
- Отличным вариантом для современных интерьеров являются межкомнатные двери со стеклом или полностью стеклянные. Моделей со стеклом или стеклянными вставками бесчисленное множество. Выбрать дверь со стеклом трудно только с одной позиции – не растеряться от разнообразия предложений. Действительно, остановиться на определенном экземпляре, глядя на фото многочисленных модификаций дверей, очень сложно. Роскошные модели с прозрачным, матовым, цветным или узорным стеклом придадут любому интерьеру изысканный вид.
- В более доступной ценовой категории располагаются двери, покрытые шпоном. Имея прекрасный внешний вид, они легко реставрируются в случае нарушения целостности отдельных участков.
Устанавливаем правильно
Получить информацию о том, как производится установка двустворчатых межкомнатных дверей, можно, посмотрев видео. Процесс установки зависит от того, какие двери мы устанавливаем – наружные или внутренние; распашные или раздвижные.
https://youtube.com/watch?v=qWFEaMPFuao
Вся процедура установки подразделяется на этапы. Как, например, выглядит поэтапная установка распашной двустворчатой двери:
- Собирается коробка.
- Коробка устанавливается в подготовленный, очищенный и выровненный дверной проем.
- Выполняется монтаж полотен: навешиваются петли, устанавливаются полотна.
- Заделываются имеющиеся щели, крупные – задуваются монтажной пеной.
- Отделка завершается прикреплением наличников.
Особенности
Несмотря на большой выбор межкомнатных дверных конструкций, распашные являются самыми распространенными. Знакомый всем вариант имеет классический дизайн: в дверном проеме устанавливается коробка и полотно с ручкой, створка распахивается влево или вправо (обычно «на себя», но иногда и в обратном направлении). Классический способ эксплуатации побеждает модные новинки (двери-купе, поворотные и другие варианты). Практичность таких моделей доказана временем.


Имеют они и другие достоинства:
- Привлекательный внешний вид. Распашные конструкции смотрятся элегантно и стильно. Аккуратный дизайн позволяет им вписываться в большинство интерьерных решений.
- Удобство эксплуатации. Такие двери легко открываются и закрываются, а способ эксплуатации всем привычен и знаком.
- Простота установки. При наличии определенных навыков конструкцию можно установить самостоятельно, не прибегая к помощи специалистов.
- Отличные изолирующие свойства. За счет плотного прилегания полотна к коробке (при грамотной установке) такие двери лучше препятствуют проникновению в помещение постороннего шума. Этот же нюанс обеспечивает лучшее сохранение тепла и защиту от посторонних запахов, в отличие от других типов конструкций. Именно поэтому распашные модели особенно рекомендуются для кухни.
- Разнообразие вариантов. Огромный выбор моделей, материалов, оттенков и фактур позволяет таким дверям легко подходить к любому стилю. Это и утонченная классика, и романтичный шебби-шик, и даже грубоватый лофт. Вы можете замаскировать дверную конструкцию на фоне стен или сделать ее изюминкой интерьера, все зависит лишь от вашей фантазии.
Недостатков у распашных дверей немного, хотя при покупке их также стоит учитывать.
- Ограничения по размеру. Для слишком широких дверных проемов одностворчатые двери такого типа не подходят. Технически возможно изготовление модели большого размера на заказ, но она будет выглядеть слишком громоздкой и нелепой. В таких случаях лучше выбирать двустворчатые конструкции либо устанавливать дополнительную перегородку.
- Необходимость свободного пространства для открывания. В малогабаритных квартирах эксплуатация такой двери может вызвать сложности. Конструкция требует наличия свободного места для ее распахивания. В открытом состоянии она также занимает некоторое полезное пространство помещения.
- Необходимость ограничителя. Если при открывании не рассчитать силу, ручка двери может удариться о стену. При регулярном резком открывании может повредиться и сама ручка, и обои, поэтому желательно устанавливать специальные ограничители на полу для контроля над движением дверного полотна.
Стандартные габариты
Их используют для зонирования помещений, отделения одной зоны от другой. Ставят, чтобы улучшить звукоизоляцию, сделать место более теплым. А величины зависят от функций комнаты, стен и пожеланий жителей дома.
Популярные разновидности
По типу конструкции:
складные – в собранном виде похожи на гармошку;
качающиеся – открываются в любую сторону;
распашные — классические;
раздвижные – разъезжаются вдоль стены.
Стандартные размеры дверей
Можно разделить все изделия на те, что созданы по стандарту, и те, которые выпиливали по индивидуальному заказу. Обычно вширь они не превышают 1,2-1,5 метра. Довольно часто на входе в зал ставят ассиметричные модели – где одна створка меньше и зафиксирована, а вторая свободно открывается. При необходимости можно открыть обе части.
Допустимая толщина
Чем больше этот показатель, тем выше звукоизолирующие свойства и меньше потери тепла. Все зависит от материала:
раздвижные конструкции 2-3 см;
фанерные, МДФ, ДСП – 3,5 – 4 см;
полотно с фальцем – 4 – 4,5 см;
натуральное дерево – 4-6 см.
Возможный вес
Важно не ошибиться. Нельзя перегружать гипсокартоновые или просто очень стены цельнодеревянными образцами
Все, что тяжелее 60 кг, требует дополнительных креплений. Этот показатель тоже напрямую зависит от того, из чего выпиливали изделие:
деревянный массив – 20-100 кг;
пластик – 4-5 кг;
МДФ, ДСП – 4-9 кг.
Нестандартные случаи
Если владелец принял решение устанавливать необычного размера или формы дверь, то он должен быть готов к неожиданным ситуациям. Нужно все продумать и просчитать заранее. Лучше, если этим заниматься будет мастер.
Если придется уменьшать проем под уже купленный образец, подойдут кирпичи, гипсокартон, монтажная пена. Используются также декоративные элементы, панели, аксессуары.
Когда стеклянная вставка треснула или разбилась – можно заменить полностью полотно или только ту часть, которая раскололась.



















































