Полезные советы
- Выбирая материал, из которого будет создана кровать, следует учитывать необходимость отделки (покраски или облицовки), которая достаточно трудоемка и не всегда возможна в условиях городской квартиры. Для исключения этого этапа можно использовать ЛДСП, которая не нуждается в отделочных работах и позволяет выбрать расцветку, максимально гармонирующую с остальными предметами интерьера.
- Двухъярусная кровать — достаточно массивное, громоздкое сооружение. Выбирая цвет, следует отдавать предпочтение светлым или белым оттенкам. Темные тона вызывают ощущение доминирования, кровать «давит» на человека, находящегося в комнате, постоянно находится в поле зрения. Светлые изделия психологически воспринимаются намного более положительно.
- При отсутствии необходимой производственной базы лучшим выбором станет привлечение специалистов со стороны. Им надо заказать все сложные в изготовлении детали, а самостоятельно произвести только сборку. Это и ускорит процесс, и позволит не производить дома сложные, шумные и грязные работы.
Создание двухъярусной кровати своими руками — это сложный процесс, включающий в себя проектные, производственные и дизайнерские работы. От них зависит качество и внешний вид будущего изделия. При отсутствии навыков работы с инструментом, знания особенностей материалов и техники сборки, достичь желаемого результата будет очень сложно. Поэтому перед началом работ надо трезво и критически взвесить свои силы и возможности, чтобы не потратить впустую время, усилия и материалы. Качество работы должно быть максимально высоким, чтобы двухъярусная кровать, изготовленная своими руками, радовала мастера и его домочадцев в течение длительного времени и приносила удовлетворение от проделанной работы.
Финальный этап работы
Сделайте реечное днище. К двум длинным планкам с шагом в несколько сантиметров прикрутите поперечные — короткие и плоские. Отлично подойдут и специальные ламели из строительного магазина.
Фото: instructables.com, блог floretan
В данном варианте днище вставляется в каркас кровати и вынимается из него, но можно крепить их прямо к внешней раме.
Покончив со сборкой, пройдитесь по всему изделию шлифовальной машинкой. Это нужно не для того, чтобы убрать сучки, ведь от них, по идее, вы избавились еще перед началом работы. Шлифование поможет скрыть неудачные стыки.
Фото: Instagram ish_ti22
Выполнение работы
Если подготовительный этап завершен, самое время приступить к сборке двухъярусной кровати.
- Основа. Сначала сооружают каркас, то есть короб прямоугольной формы, в который будет помещаться матрас.
- Царги. Основание двухъярусной кровати изготавливают из распиленных согласно размерам и потом отшлифованных деталей. Перпендикулярно к ним присоединяются меньшей ширины доски. Таким образом получается что-то вроде полочки.
- Брусочки. Они крепятся саморезами к царгам. Между ними выкладываются доски, которые будут держать матрас.
- Укрепление каркаса. На коротких сторонах кровати также необходимо сделать полочки с внутренней стороны получившейся прямоугольной конструкции. Для этого соединенные полочкой доски крепят к царгам саморезами способом потайного крепления.


- Доски, которые выкладываются между царгами, должны быть крепкими, чтобы выдерживать достаточный вес.
- Установка спинок. Спинки крепятся к стойкам. Их ширина обычно равна ширине кровати. Спинок должно быть три: у ног, в изголовье и у той части кровати, которая будет стоять возле стены. Для крепления этих элементов используются шканты – это деревянные брусочки круглого сечения, их диаметр определяется толщиной сверла. Просверлив отверстия нужного диаметра в спинке и стойках, в них помещают шканты.
- Таким же способом делается кровать второго этажа. Затем к несущей стойке прикрепляется лестница. Также сооружают дополнительные спинки в качестве ограждения на верхнем этаже. Если конструктивные особенности изделия предполагают наличие мест хранения под лестницей, то она крепится с наружной стороны стойки.


Изготовление двуспальной кровати своими руками
Перед тем как собрать двуспальную кровать, следует измерить габариты матраса. В данном случае за основу берется элемент размером 160х200 см. Для изготовления конструкции понадобятся такие материалы:
- брус сечением 50х50 мм – для выполнения рамы и ножек кровати;
- доски 30х30 мм – для опорных балок под реечное основание;
- уголок металлический, имеющий ширину полки 50 мм;
- саморезы длиной 40-65 мм.
Чертеж двуспальной кровати, где А – 40 см, В – 147 см, С – 205 см, D – 82 см, E – 13,8 см, F – 5 см
Первым делом собирается каркас для матраса, предполагающий внутренние размеры 170х210 см и высоту 20 см. На каждой стороне склеиваются четыре бруса, которые стягиваются струбцинами. Должны получиться две заготовки длиной 180 см и две – 220 см. Они соединяются между собой в замок. Для этого лобзиком в середине выпиливается выемка длиной 5 см на коротких элементах. На длинных заготовках выполняются шипы. Для этого с обеих сторон отпиливается по 5 см бруса.
Образованные выемки и шипы обмазываются клеем и соединяются под прямым углом. В средней части каркаса с помощью металлического уголка фиксируется продольная перемычка с дополнительной опорой. По углам рамы крепятся ножки из бруса высотой 40 см, для данной цели используют клей и саморезы.
Для надежности конструкции ножки могут быть выполнены из более толстого бруса. Для придания им изящной формы необходимо стуслом снять фаску на внутренней стороне под углом 45 градусов. Для монтажа ножек следует применять длинные болты с головками и потайными шайбами.
При выборе высоты для будущей кровати следует учитывать и размер матраса
Вдоль длинных элементов каркаса на внутренней стороне крепятся балки под реечное основу. Их верхняя грань (это хорошо видно на чертеже двуспальной кровати) располагается в одной плоскости с верхней границей перемычки. Из досок 20х100 мм изготавливаются рейки длиной 170 см. Их необходимо уложить и закрепить поперек перемычек и продольных опорных балок с шагом 3 см. Первый и последний элементы должны плотно примыкать к передней и задней стенкам рамы кровати.
Как сделать двуспальную кровать своими руками: изготовление изголовья
После сборки каркас следует обработать шлиф-машинкой с использованием среднезернистой наждачной бумаги. На поверхность наносится морилка, после высыхания которой каркас покрывается лаком в несколько слоев.
Настенное изголовье для двухъярусной кровати изготавливается из 3 досок размером 25х100х1800 мм и 12 брусков габаритами 25х100х450 мм. Для первого ряда, который будет соприкасаться со спинкой, используются короткие изделия. На изнаночной стороне оборудуется скрытый крепеж. На соответствующих местах изголовья с помощью саморезов прикручиваются металлические пластины. Свободный их край при навешивании будет вставляться в пазы шин.
Схема изголовья для двуспальной кровати
Можно изготовить для кровати из бруса своими руками мягкое изголовье, состоящее из таких слоев:
- фанеры или ДСП (1 см);
- поролона (3 см);
- ватина;
- обивочной ткани с рисунком.
Из фанеры выпиливается основа размером 45х180 см. С ребер следует снять фаску, а затем тщательно обработать края, чтобы не повредить ватин и обивку.
Из поролона или пенополистирола вырезается совпадающая по форме и габаритам заготовка. Она прикладывается к деревянному изделию, выполняется несколько отверстий для декоративных пуговиц. Осуществляется раскрой ватина и обивочной ткани по параметрам заготовки с припуском, размер которого должен быть равен сумме толщины всех слоев, умноженной на два.
Поролон приклеивается к деревянной основе. На заготовку натягивается ватин, припущенные края которого фиксируются мебельным степлером. Количество скоб может быть неограниченным, поскольку они все равно будут невидимыми. Операция повторяется с обивкой.
После пришивания пуговиц, готовое изголовье навешивается на стену
Завершающим этапом является пришивание диванных пуговиц путем применения большой сапожной иглы и грубой толстой нитки. Обитое изголовье навешивается на стену с помощью шин для навесных шкафов.
Кровать замок с горкой
Этот пример впечатляет. Настоящий сказочный замок кровать, с большой игровой площадкой, горкой и удобными стеллажами. При покраске обязательно сделайте так, чтобы это выглядело как что-то из сказки. Можете использовать искусственную технику рисования, чтобы замок выглядела так, будто построен из камня или кирпича, или покрасьте своим любимым цветом. В любом хорошем замке должны быть двери и окна, а еще можно установить цветочные ящики и виноградные лозы, растущие по бокам. Вырежьте проемы и либо нарисуйте цветы и виноградные лозы, либо купите искусственные, которые можно прикрепить к фанере.
Источник фото: www.liveinternet.ru/users/ir22ina/post344512603/#
Двухъярусная кровать замок для девочек
Потрясающая двухъярусная кровать замок, сделанная дорогим папой. Один отец решил, что его две маленькие девочки просто не могут жить без собственного розового замка, поэтому он сделал удивительную самодельную двухъярусную кровать замок своими руками и силой своего воображения!
Также есть горка и другие приспособления для игр. К сожалению, инструкция отсутствует, но есть несколько пошаговых фото и чертеж, для тех кто имел дело со столяркой, это достаточно информации, чтобы сделать замок кровать своими руками.
Источник фото: makezine.com/2014/12/15/diy-castle-bunk-bed/
Посмотрите еще 5 примеров как сделать кровать замок своими руками
Вот первый пример, как сделать кровать замок для девочки. Вы можете сделать простую двухъярусную кровать, с дизайном, который будет напоминать внешний вид сказочного замка. Просто возьмите лист фанеры, нарезанный по размеру, и прикрепите с каждой стороны кровати, чтобы он служил в качестве турели. Затем соедините деревянные квадратики, расположенные на расстоянии нескольких сантиметров, вдоль верхней стены и башен для имитации зубчатых стен. Маленьким девочкам, конечно, нравятся замки принцессы, поэтому покрасьте в розовый цвет, еще для декора можно использовать занавески в окнах и над входом. Мастер класс, как сделать кровать замок своими руками, смотрите ниже на пошаговых фото.
Источник фото: shnyagi.net/34553-krovat-zamok-dlya-dochki-svoimi-rukami.html
Посмотрите еще такой вариант, второй пример как сделать кровать-замок для ребенка своими руками!
Для изготовления использовалась 10 мм фанера и 100 мм брус, поэтому конструкция получилась прочной и основательной. На подготовку и сборку кровати замка ушло 1,5 месяца и приблизительно 40 тысяч (рублей) по ценам 2014 года.
Источник фото: aparo.ru/2016/12/17/krovat-zamok-dlya-lyubimoj-docheri-svoimi-rukami/
Третий пример, как сделать кровать замок из листов МДФ и фанеры.
Один совет, когда будете работать с МДФ, делайте это в специальной мастерской или с помощью настольной пилы, подключенной к вакууму. Инструкцию по изготовлению кровати замка читайте на сайте.
Источник фото: www.instructables.com/id/Princess-Castle-BedPlayset/
Четвертый пример. Если в детской комнате есть подходящая ниша, можно сделать для ребенка вот такую встроенную детскую кровать своими руками в виде замка.
Основа конструкции – встроенная двухъярусная кровать. Замок сделан из МДФ и прикреплен к каркасу двухъярусной кровати. Используя этот дизайн, вы можете сделать любой тип тематической кровати – замок, домик или пожарную машину. Поскольку весь материал основан на размере комнаты или ниши в стене, здесь не представлено точных размеров. Но пошаговую инструкцию, как сделать кровать замок своими руками, вы можете прочитать на сайте.
Источник фото: www.instructables.com/id/Legend-of-Zelda-Hyrule-Castle-Bed/
И еще пятый пример, шикарная кровать-замок для дочки, сделанная своими руками
Конструкция полностью придумана и разработана автором проекта. Для изготовления использовались сосновый мебельный щит, фанера, декоративный кирпич из гипса, акриловые краски. Как был построен этот замок, смотрите на фото в галерее.
Источник фото: love-komfort.ru/2018/01/20/ruki-rastut-otkuda-nuzhno-shikarnaja-krovat-zamok-dlja-dochki-sdelannaja-svoimi-rukami/
Несколько слов о чертежах
Чтобы предварительно выполнить какой-то расчет, вам необходимо ознакомиться с чертежами будущей кровати. Но для начала его нужно сделать. Здесь есть два варианта: либо нарисовать его самостоятельно, подобрав свои индивидуальные размеры, либо взять какой-то чертеж из интернета. В приоритете первый вариант и вот почему:
- Самыми важными параметрами являются не столько длина и ширина, сколько высота кровати. В интернете вы можете найти различные стандартные размеры, которые не всегда подойдут для вашего помещения. К примеру, не у всех потолки 2,5 м, хотя именно такая высота встречается наиболее часто. Высота некоторых комнат может достигать 5–6 м или наоборот, – 2 м. Ребенок, который будет находиться на втором ярусе, должен не только свободно сидеть, но и передвигаться. Неприятно, когда потолок нависает прямо над головой. Малыш, который сидит на верхнем ярусе, не должен касаться потолка поднятой рукой.
- Когда вы планируете, что дети будут спать на кровати не один и не два года, а несколько лет, размеры нужно выбирать с некоторым запасом. Стандартно – это 90×190 см. Единственно, в таком случае есть ориентировка на используемый матрац.
- Подсчитывая соотношение, необходимо учитывать толщину вашего матраса.
Сделать подробный чертеж просто необходимо
Важно сделать схему двух лежаков, торца и фасада конструкции. Рисовать надо с учетом масштаба и по возможности, как можно подробнее
Если вы правильно сделаете схему, по ней будет очень просто рассчитать нужное количество материалов.
Если вы хотите использовать готовую схему, которую нашли на страницах интернета, убедитесь в том, что габариты конструкции будут вписываться в размеры комнаты. Если же вам требуется что-то изменить или внести коррективы, делайте это исключительно пропорционально. К примеру, нельзя изменить высоту кровати на 30 см и расположить нижнее ложе выше без последствий. Каждое изменение будет затрагивать надежность и устойчивость двухъярусной кровати. Поэтому, если уж решили вносить изменения, применяйте их ко всей конструкции пропорционально.
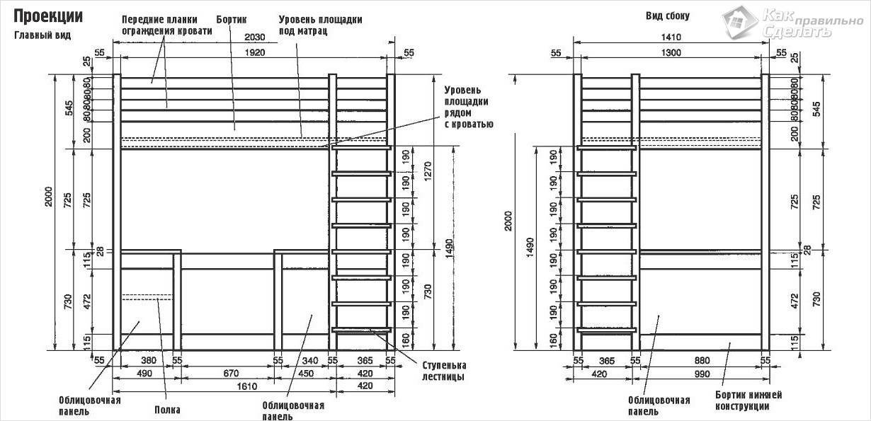
Ниже вы можете видеть чертежи двухъярусной кровати:
Чертеж двухъярусной кровати
Схема спального места
Чертеж нижней конструкции
Чертеж в проекции
Необходимые материалы
Начало сборки каркаса
- Основой для кровати служить прямоугольный каркас с нужными размерами (длиной и шириной). Соорудите его с помощью двух балок скрепленных в углах саморезами.
Далее изготавливаем боковые панели. Доски должны стоять под 90 градусов на каркасе, закрепите их. Между ними проложите бруски на одинаковом расстоянии, на которые устанавливается основа для матраса. Получилась конструкция – царга, сделать таких надо 4 штуки для двух ярусов.
- Подготовьте доски для матраса. Их нужно расположить у изголовья, в середине и в конце, у ног. Они сделаны для удержания спального места, чтобы оно не проломилось под тяжестью. Установите “как полочку” на каркас между брусками.
Какой материал выбрать для изготовления кровати для детей своими руками
Для того чтобы изготовить детскую кровать самостоятельно, нужно приобрести некоторые материалы и инструмент. Делать детские кроватки своими руками из дерева лучше всего, для этого подойдут хвойные породы: сосна, кедр, ель. Можно использовать фанеру, либо МДФ. Все зависит от ваших возможностей и способностей.
При изготовлении кроватей для детей своими руками предпочтительней использовать натуральную древесину, так как она экологичнее, чем другие материалы. Мебель из дерева всегда высоко ценилась за свои качества, к которым можно отнести прочность, долговечность изделия, красоту. При использовании деревянной кровати, детский сон будет намного крепче и спокойней. Но прежде чем приступать к процессу создания, необходимо приобрести матрас. Потому что ложе будет изготавливаться именно по его размерам
И не важно, делаете вы кровать для девочки своими руками или для мальчика. Матрас, целесообразнее купить в магазине. Благо современная промышленность делает их на любой вкус
Благо современная промышленность делает их на любой вкус.
Выбираем матрас
При покупке вам нужно просто учесть некоторые особенности приобретаемого товара:
Жесткость. Если ребенок маленький, нужен более жесткий вариант, чтобы была зафиксирована спина малыша. Для более взрослого чада изделие можно купить более мягкое. Также продаются двусторонние матрасы, то есть с разными по жесткости сторонами. В качестве набивки в такой продукции используется кокосовое волокно. Для детей старше трех лет матрас меняют и используют блоки независимых пружин, которые вставляются в отдельные карманы, что способствует равномерному распределению веса ребенка.
Наполнитель. Обязательно ознакомьтесь с информацией о наполнителе матраса. Как правило, изготовитель на своем изделии ставит ярлык «эко» или «био». В качестве наполнителя зачастую используют шерсть. Крайне нежелательно использовать матрасы с наполнителями из ваты или поролона. Тем более передавать их по «наследству» от ребенка к ребенку. Вата и поролон имеют свойство накапливать в себе вредные вещества, сваливаться и крошиться. Поэтому матрас становится неровным и может создать проблемы с позвоночником.
Обивка
Немаловажное значение имеет и драпировка матраса. Желательно, чтобы это были натуральные материалы, обработанные антисептическими составами против грибков и паразитов. Детский матрац должен быть легким в обслуживании, поэтому не лишним будет продумать вопрос о наличии съемного чехла.
Детский матрац должен быть легким в обслуживании, поэтому не лишним будет продумать вопрос о наличии съемного чехла.
Так же необходимо позаботиться о приобретении лакокрасочных материалов. можно выбрать оттенок в зависимости от того делаете вы своими руками кровать для мальчика или девочки. Ну и в дополнение нужно будет приобрести клей столярный для возможного соединения деталей создаваемой конструкции.
Какую краску лучше использовать при покраске детской кроватки
На производствах по изготовлению мебели, как правило, используются масляные краски, в них добавляют антисептические средства для защиты древесины от гниения, и они придают изделиям яркий колорит. Это позитивно влияет на внешний вид продукции.
Применяемые для покрытия поверхности кровати лаки изготавливаются на водной основе. Они подчеркивают текстуру древесины и приятны на ощупь. Но поверхность, обработанную подобными средствами ненужно мыть активными моющими препаратами, так как она быстро приходит в негодность. Достаточно будет протереть поверхность влажной ветошью. Для покраски самодельной детской кровати следует покупать составы с нетоксичными компонентами.
В этом случае хорошим вариантом может быть:
- Краска на водной основе, еще она называется акриловой. Имеет повышенную износостойкость, не боится воды и влажных уборок. Имеет доступную цену.
- Краска нитроэмаль. Образуют стойкую пленку, быстро высыхает. Демократическая стоимость гарантирует, что приобрести ее сможет каждый.
- Краска водоэмульсионная. Не вредна при эксплуатации, маскирует повреждения древесины глубиной до 1-2 мм.
- Покрытие поверхности кровати маслом и воском. Очень хорошо подчеркивает структуру древесины и сохраняет ее от повреждений.
Некоторые люди хотят видеть текстуру дерева самодельной кровати, не покрытую краской, тогда необходимо применять акриловый лак. Он не имеет резкого запаха, выдерживает ультрафиолетовые лучи. Все остальные лаки обладают либо высокой токсичностью, либо недолговечны в работе.
Все материалы можно приобрести в хозяйственных либо специализированных магазинах и лесоторговых базах.
Сборка кровати из ЛДСП
Двухъярусная кровать из ламинированного ДСП собирается по методике, обычной для корпусной мебели. Следует учитывать, что прочность ЛДСП намного ниже, чем у массива дерева, поэтому все детали должны быть более широкими, способными обеспечить достаточную несущую способность. К достоинствам материала можно отнести возможность придать практически любые формы спинкам и поперечинам, а также простоту присоединения любых дополнительных элементов — шкафов, комодов, бельевых ящиков и т.д.
Сборка производится поэтапно:
- Нарезка необходимых деталей.
- Нанесение кромочного материала. Оптимальным вариантом будет использование двух видов кромки — тонкой, имеющей нанесенный клеевой слой, присоединяемой с помощью утюга, и накладной П-профиль, который легко монтируется в домашних условиях. Более толстый П-профиль устанавливается на все места, с которыми возможен непосредственный контакт спящего человека, а тонкая кромка устанавливается на все остальные детали.
Некоторые места, например, торцы продольных планок, упирающиеся в спинки, можно оставить неоклеенными.
Соединения производятся на конфирмат, мебельные стяжки, уголки или мебельные болты. Выбор того или иного вида соединений производится самостоятельно, так как по прочности они примерно одинаковы. Поэтому критерием выбора становится наличие навыков или опыта у мастера. Для начинающих можно порекомендовать конфирмат, который по методике монтажа наиболее близок к шурупам и обеспечивает весьма прочное и надежное соединение. Для установки винтов используется 2 сверла — одно диаметром 4,5 мм идет под резьбовую часть, а второе диаметром 7 мм используется под верхнюю часть. Под шляпку засверливаться не надо, она довольно тонкая и достаточно углубляется в материал при завинчивании. В продаже имеются также специальные сверла для конфирмата, которые за один заход обеспечивают все нужные диаметры.
Для того, чтобы прикрыть шляпки винтов, продаются полиэтиленовые заглушки одного цвета с материалом.
- При сборке кровати необходимо обеспечить максимальную жесткость всех узлов, способных испытывать нагрузку на изгиб. ЛДСП — материал, плохо переносящий такие воздействия, поэтому надо их исключить. Для этого надо делать массивные спинки, в идеале они должны представлять собой цельные куски материала, хоть это и несколько расточительно. Обычно их используют как опорные плоскости для дополнительных элементов — открытых стеллажей, шкафов.
- Под нижней лежанкой удобно расположить выкатные бельевые ящики. От выдвижных они отличаются наличием собственных колес, что делает их независимыми от конструкции кровати. Самостоятельное перемещение с непосредственной опорой на пол позволяет делать ящики глубокими, вес хранящихся в них вещей не создает проблем для механизмов движения. Устройство ящиков достаточно просто, передвижение осуществляется при помощи мебельных колес, установленных на нижних кромках боковин.
- Лестница делается из двух полос ЛДСП с отверстиями для вклейки деревянных перекладин. В продаже часто встречаются конструкции с металлическими хромированными перекладинами. Этот способ прост в изготовлении, но эксплуатация такой лестницы намного опаснее. Стальные трубы имеют скользкую поверхность, опасную для использования детьми. Да и взрослый человек спросонья может соскользнуть и причинить себе какой-либо вред.
- Монтаж лежанок лучше всего производить с использованием стандартных ортопедических ламелей с креплениями. Они обеспечат нужную прочность и вентиляцию матрацев. Ламели имеют разные размеры, что позволяет подобрать детали, наиболее подходящие для своего проекта. Крепление опорных планок производится на продольные планки изнутри, при помощи шурупов, мебельных уголков. Если необходимо подстраховаться, то можно использовать болтовое крепление, при котором шляпки мебельных болтов будут видны снаружи. Для этого надо приобрести декоративные болты с гладкими шляпками.
Материалы
Самодельные спальные места для 2 детей профессионалы советуют собирать из таких безопасных и надёжных материалов:
- Дерево (массив либо доска). Долговечный, экологически чистый выбор для детской комнаты. Однако в работе понадобятся строительные навыки. Не советуют использовать пиломатериалы, деформированную и непросушенную древесину. Взвешенным выбором эксперты называют доску из сосны с сечением 5х15 см либо мебельный щит, склеенный из брусков разных пород дерева
- МДФ. Современный материал, обладает надёжными характеристиками по эксплуатации. Если аккуратно выполнить сборку, то кровать из листового материала невозможно отличить от заводской модели
- Металл. Конструкция считается самой надёжной, но для сборки нужна сварка и стоимость полученного изделия высока. В работе используются круглый прокат, трубы, проволока
- ДСП (ДВП). Подходит для изготовления отдельных элементов (ящиков, боковых панелей каркаса, спинки). Из-за использования формальдегида при производстве такого стройматериала, как ламинированная ДСП, кровати из него не делают
Ламинат на деревянный пол своими руками: полное описание процесса. Схемы укладки, какие материла следует использовать (Фото & Видео) +Отзывы
Как самому сделать двухъярусную кровать

Сборка конструкций из дерева и металла происходит аналогичным образом
В самом общем виде порядок сборки кровати из готовых деталей происходит в такой последовательности:
- Изготавливают 2 короба по размерам чертежа
- Предусматривают полочку, основание для матраса, монтируют перпендикулярные перекрытия
- Вертикальные стойки крепят к нижнему ярусу
- К стойкам присоединяют верхний ярус на нужной высоте
- Присоединяют изголовья с обеих сторон (сплошные либо в виде отдельных элементов)
- Оба яруса соединяют лестницей
- Крепят защитные боковые панели
- Конструкцию грунтуют, покрывают лаком либо краской
Из дерева

Оптимальный выбор для кровати из дерева – сосновый брус либо мебельные щиты
Для изготовления детского спального места на 2 яруса из массива, понадобятся такие заготовки, выпиленные по нужным размерам:
- 4 вертикальные стойки
- 4 царги
- 4 боковые доски для несущего каркаса
- 4 наружные накладки для стоек
- 4 бруска для последующей укладки досок в основание каркаса
- 2 изголовья и 2 изножья (с одинаковыми параметрами)
- 4 доски для монтажа торцов
- 24 рейки для основания под укладку матраса (по 12 штук для каждого яруса)
- 3 элемента под ступеньки и 2 – под перила лестницы
- 2 элемента для ограждения и защиты
Чтобы собрать двухъярусную кровать из деревянных заготовок, выполняют такие шаги:
1
Боковые панели (царги) соединяют между собой крепежами под углом 90 градусов, формируя прямоугольный короб

Крепление полочек к раме каркаса
2
К царгам саморезами прикрепляют бруски, на которые затем кладут доски в основание для матраса

Сначала собирают нижний ярус, начиная с каркаса и ламелей для матраса, затем все шаги повторяют для второго спального места
3
К коробу приделывают вертикальные стойки, равные по высоте всей конструкции, сверяя правильность строительным уровнем
4
В стойках дрелью делают отверстия и шкантами присоединяют 3 доски параллельно полу для формирования спинки

Нижняя рама двухэтажной кровати с отделениями под ящики
5
Верхний короб таким же образом соединяют с вертикальными стойками
6
Крепёжными элементами методом «под потай» к боковым царгам корпуса снаружи привинчивают лестницу

Детали соединяют на клей, но обязательно укрепляют саморезами
7
К боковине верхнего яруса, обходя лестницу, прибивают защитные панели. На нижнем ярусе допускается прибить защитный щиток только с одной стороны

Этапы сборки деревянной конструкции пошагово
8
Сбивают из ДВП выдвижные ящики, располагают их под нижним ярусом

Готовая деревянная конструкция шлифуется и покрывается лаком
9
Конструкцию шлифуют, покрывают защитным лаком, дают высохнуть, при необходимости красят
10
В углубление обоих каркасов кладут матрасы соответствующих размеров
Все элементы крепятся на клей, саморезы, укрепляются металлическими уголками. Для привлекательного и аккуратного внешнего вида крепёжные элементы рекомендуется располагать с внутренней стороны конструкции либо закрывать.
Из металла

Готовая конструкция на 2 яруса из металла
Сборка металлической кровати на 2 этажа предполагает, что в арсенале строителя есть такие заготовки:
- профили сечением 50х25 мм для короба
- профили сечением 20х25 мм для реек основания под матрас
- металлические конструкционные элементы сечением 40х40 мм для припайки боковых стоек

Чертёж для сборки двухэтажной детской метели из металлопрофиля
Далее процесс сборки из заранее нарезанных деталей происходит так:
- Элементы спинки приваривают соответственно под углом 90 градусов
- Из профиля меньшего сечения собирают основание, которое приваривают к длинным деталям нижней и верхней рам на одинаковом расстоянии друг от друга
- Вертикальные рейки попарно соединяют между собой спинки двух ярусов с помощью сварки
- На расстояние 30-40 см от пола к стойкам варят нижнюю раму
- Верхнее основание для матраса подсоединяют к рейкам уже на высоте 95-100 см от нижнего
- Из профилей изготавливают лестницу, которую в подходящем месте приваривают к обоим этажам кровати
- Места соединений шлифуют, конструкцию красят

Строим дом для кошки своими руками. Интересные идеи и пошаговые инструкции: из фанеры, картонных коробок, ткани. Чертежи с размерами (120+ Фото & Видео)
Кровать-домик самостоятельно: пошагово
Перед тем как приступить к изготовлению кровати-домика, необходимо сперва изготовить основу для будущей мебели.
Основание кроватки
Сперва требуется изготовить основание. Для этого необходимо четыре бруска, длина которых должна составлять по 1300 мм. Данная конструкция будет служить вертикальной опорой для кровати. После того, как вы зафиксировали и закрепили брусок, необходимо у каждого бруска вверху отрезать маленькую часть под углом 45 градусов. Такая процедура нужна для будущей крыши со скатами.
Перед тем как распилить кусочек от брусьев, необходимо пометить карандашом, используя обыкновенную линейку часть распила. Спиливать необходимо, используя ножовки.
Крыша для дома
Для того, чтобы сделать крышу домика, вам понадобится четыре бруска, длина которых должна составлять 730 мм. После того, как брусья закреплены нужно распилить сверху каждого брусочка под углом 45 градусов часть бруска. Не забудьте пройтись наждачной бумагой в тех местах, где вы произвели спил брусья, чтобы ваш ребенок не поранился об них.

Опора изготавливается из обрезков брусьев. Все должно прикрепляться к коньку крыши. Необходимо взять клей и верхнюю часть конька присоединить ко всей заготовки будущей мебели.
Вертикальные стыки и опоры необходимо будет проклеить. Причем данную процедуру необходимо повторить несколько раз. После всего верхнюю часть домика необходимо посадить на саморезы, длина которых должна составлять 40 мм. Саморезы стоит вкручивать не менее чем 4 мм от линии двух составляющих крыши.
После проделывания данных действий мы увидим итоговые очертания всей конструкции.
Крепление рамы
Для того, чтобы завершить работу с торцом домика, нужно к нижней части конструкции прикрутить брусок. Длина которого составит 830 мм. Данный брус будет служить балясиной. Которая будет удерживать на себе всю массу дома.
Рекомендуется для сборки боковых составляющих использовать стяжку, так как соединение будет практически незаметным и будете смотреться более элегантно и красиво.
Для такого малозаметного монтажа, необходимо просверлить дырки в нижней части мебели (в бруске), используя сверла 11 мм. Просверленное отверстие должно быть по середине на перекладине. Запомните, что дырка должно получиться сквозным.

Затем, потребуется посредине самого бруска просверлить отверстие, используя 6 мм сверло. В полученную дырку необходимо поместить шуруп, а затем все это закрепить стяжкой.
Также вы можете использовать не короткие саморезы, а длинные. Но необходимо предварительно обработать их клейким веществом.
Сборка основания дома
Для того, чтобы изготовить основание домика, необходимо использовать толстые брусья. Такие брусья должны быть по размерам идентичны боковым сторонам кровати. С внутренней стороны к брусьям необходимо прикрутить, используя саморезы, тонкие планки.
Необходимо помнить, что шурупы должны размещаться на одинаковом расстоянии. Такие пластины являются опорой для изготовленной рамы домика, которая поддерживает само дно мебели.
Необходимо заранее сделать из бруска шаблоны, длина которых должна составлять 6 сантиметров. Необходимо изготовить в деревянном бруске несколько дырочек для саморезов. Расстояние между каждой сделанной дыркой должно быть не менее 25 мм.
С внутренней стороны стойки отметьте место для дырки, в которой будет находится эксцентрик. Такое отверстие проделывается сверлом, а потом в него необходимо вкрутить саморезы длиной 10 см.

Большое внимание уделите местам стыка. После всех процедур в дырочки на нижнем ярусе необходимо залить склеивающуюся жидкость, и затянуть болтами
Закрепление каркаса для будущей кроватки
Необходимо хорошо прикрепить всю составляющею мебели. Для этого вам понадобится четыре бруска. Длина каждого из них должна составлять 1660 мм.
Запомните, что длина балок равна длине боковин спального места. Прикрепляются все составляющие, используя клей и саморезы. Укрепите всю конструкцию, используя крепежи угловой формы.
Используя фото можно сделать самостоятельно кровать-домик для ребенка.

Реечное днище мебели
Рейки нужно укрепить на планки. По бокам рейки закрепить к четырем сторонам всей составляющей кроватки. Нужно хорошо прикрутить все детали, так, чтобы не выпирали саморезы. Для дна универсального матраса надо будет использовать 14 реек.
Такая сделанная мебель для своего ребенка собственными силами — это не только хорошая безопасность, но и также реализация в реальность всей вашей мечты для ребенка.





