Как выбрать?
После того как вы узнали о наиболее популярных типах откосов, возникает логичный вопрос: как же их выбрать.
- Первым советом будет, конечно же, ориентироваться на то, какие окна вы собираетесь устанавливать. Если речь идет о деревянных, то логично, что откосы из древесины будут наилучшим решением в этом случае. Если окна ПВХ, то лучше будет пластик или сэндвич-панели.
- Второй важный момент – наличие средств. Если их немного, то можно обойтись гипсокартоном или пластиком. Если же средства есть, то наилучшим решением будет монтаж сэндвич-панелей, так как по характеристикам и свойствам – им нет равных среди других. А также довольно неплохим вариантом будет ячеистый наборной пластик, который по своим характеристикам где-то похож на сэндвичевые конструкции. Он удобен, внешне красив, быстро устанавливается и имеет неплохие теплосохраняющие свойства. Единственная проблема, как уже упоминалось, высокая стоимость.

- Еще один критерий – эстетическая привлекательность. По этому критерию лучше всего будут смотреться откосы из гипрока. Если их хорошо утеплить, они не будут уступать пластиковым откосам. А если их удачно состыковать со стеной, то они превратят оконный проем в завершенный, и он будет выглядеть отлично. Цена откосов из гипрока будет меньше, но их монтаж – дело не из простых. Правда, такие откосы испытывают проблему с влагой.
- Ну а если хочется найти самое простое решение, и слишком не зацикливаться на этом, то откос из штукатурки – то, что вам нужно. Несмотря на то что они самые трудоемкие, они в то же время и самые дешевые. Правда, там хватает своих недостатков, которые могут перевесить все преимущества, которые есть у таких откосов.


Установка пластиковых откосов в панельных и кирпичных домах
После установки окна приступать к отделке можно через 24 часа, за это время пена полностью затвердеет.
В данном случае, монтаж наиболее прост за счет того, что толщина бетонной стены, по сравнению с кирпичной, невелика. Здесь хватит стандартной ширины откосов из ПВХ в 250 мм. Но утепление здесь должно быть сделано очень тщательно, бетонные стены самые холодные.
- Стена зачищается от пены и к ней саморезами крепится стартовый профиль.
- Теперь раскраиваем панели. Установка начинается с верхней, а затем крепятся боковые части
- Запенивается пространство под сэндвич-панелями. Во избежание деформации, зафиксируйте их скотчем, и не должно быть излишка пены!
- Все стыки герметизируются
- Завершается монтаж финишным F-профилем. В местах стыков его необходимо запилить под углом в 45 градусов.
- Кирпич обладает высокой теплопроводностью. Дополнительного утепления здесь не потребуется. Обычно в кирпичных домах стенная кладка толстая, и потерь тепла избегают, просто углубив окно внутрь стены.
На цену и сложность монтажа повлияет именно толщина стены. Ведь стандартной ширины откосов из ПВХ тут может не хватить, а более широкие сэндвич-панели дороже узких, что вполне логично. В остальном, установка идет по той же схеме.
Правила установки снаружи с улицы
Наружные откосы требуют особенных характеристик, поскольку работают по открытым небом и в связи, с чем подвергаются критическим температурам и повышенной влажности.
Выбирая материал для внешних откосов, нужно поинтересоваться условиями применения по влагостойкости, морозостойкости и УФ-лучам.Запрещено использовать для этих целей гипсокартон, необработанное пропитками дерево и гипсовую штукатурку.
Правила установки наружных откосов на ПВХ- окна:
- Материал должен соответствовать условиям эксплуатации и внешнему виду дома.
- Перед установкой поверхность должна быть выровнена и утеплена.
- Его устанавливают после завершения всех монтажных работ на оконном блоке, закреплении отливов и подоконников.
- Под ПВХ-откосы устанавливают несущий каркас из металла или дерева.
Фото откосов своими руками






























Также рекомендуем просмотреть:
- Монтаж сайдинга своими руками
- Теплый пол своими руками
- Баня своими руками
- Наливной пол своими руками
- Декоративная шпаклевка своими руками
- Установка унитаза своими руками
- Столбы для забора своими руками
- Натяжной потолок своими руками
- Подсветка потолка своими руками
- Утепление лоджии своими руками
- Перегородка своими руками
- Проводка своими руками
- Деревянный пол своими руками
- Как сделать краску своими руками
- Кладка кирпича своими руками
- Декоративная штукатурка своими руками
- Забор из профнастила своими руками
- Камин своими руками
- Утепление дома своими руками и основные способы теплоизоляции
- Забор из сетки
- Установка пластиковых окон своими руками
- Внутренняя отделка своими руками
- Забор своими руками
- Как сделать балкон своими руками
- Печь своими руками
- Дверь своими руками
- Беседка своими руками
- Залить бетон своими руками
- Опалубка своими руками
- Жидкие обои своими руками
- Стяжка пола своими руками
- Фундамент своими руками
- Каркасный дом своими руками
- Прихожая своими руками
- Вентиляция своими руками
- Поклейка обоев своими руками
- Бетонное кольцо своими руками
- Крыша своими руками
- Укладка ламината своими руками
- Лестница на второй этаж своими руками
- Отмостка своими руками
- Ремонт ванной комнаты своими руками
- Поликарбонат своими руками
- Установка дверей своими руками
- Гипсокартон своими руками
- Арка своими руками
- Обшить вагонкой своими руками
- Проект дома своими руками
- Ворота своими руками
- Душевая кабина своими руками
- Укладка плитки своими руками
Средняя цена за работу
Средние расценки на демонтаж и замену старых откосов чаще всего зависят от используемых материалов, а также необходимости проведения высотных работ. Ниже указана средняя стоимость за демонтаж старых материалов:
- шпаклевки – 120 р/м.п. (метр погонный);
- штукатурки – 140 р/м.п.;
- обоев – 50 р/м.п.;
- краски – 120 р/м.п.;
- гипсокартонных/сэндвич панелей – 30 р/п.м.
Монтаж зависит от материала, глубины и формы проема, а также высотных работ:
- при глубине до 25 см отделку внутренних откосов обычных окон проведут за 650-750 р/м.п., а внешних – 850-950 р/м.п.;
- установка ламинированных откосов на проемы с глубиной до 25 см будет стоить 1600 р/м.п.
Советы и рекомендации опытных мастеров
Новичкам, во избежание ошибок при монтаже пластиковых панелей, рекомендуется использовать схему крепления. Шпаклевку наносят на поверхность проема, начиная от подоконника. Откос ровняют шаблоном из ламината или правилом. При штукатурных работах отделку начинают с верхнего откоса. Чтобы шпаклевка быстрее сохла, в нее можно добавить немного гипса, алебастра или плиточного клея.
Пластиковые панели устанавливают на проемы до 25 сантиметров. Сэндвич-панели подойдут для простенков более 25 сантиметров. Выбор наружных откосов зависит от ширины проема. Самый простой способ установки откосов – использование нащелкивателей. Это пластиковый профиль с шириной 90х60 или 180х90, который устанавливают на нипеля, закрепленные на раму.
Поделиться ссылкой:
Работы после установки деталей
Как только все части откоса будут установлены и закреплены малярным скотчем, оставляют объект для полной полимеризации. В дальнейшем, чтобы избежать шпаклевания зазоров между стеной и откосом, наклеивают пластиковый уголок на жидкие гвозди. Основной задачей является обеспечение ровной плоскости в углах. На обеих полках уголка наносят тонкую полосу клея и прижимают. Проводят рукой вдоль и держат несколько минут. Детали устанавливаются по всему периметру. До высыхания клея подклеивают полки уголка малярным скотчем и оставляют.
Спустя сутки скотч убирают. Можно считать откосы из пластика готовыми. Если где-либо будут обнаружены щели, их надо закрыть акрилом, как это было описано ранее. Силикон использовать не рекомендуется. На свету он приобретет жёлтую окраску. Спустя несколько лет окна будут выглядеть не совсем солидно. Лучшим вариантом будет белый акриловый герметик. Он идеально подходит для маскировки дефектов.
Внутренние откосы для пластиковых окон
Эксплуатация пластиковых окон также требует применение внутренних откосов. Они представляют собой внутренние стенки ниши оконного проема. Как и наружные аналоги, внутренние откосы необходимы для обеспечения должного уровня теплоизоляции. Помимо этого, эти конструкции защищают монтажную пену от негативного влияния влаги, которая способствует ее разрушению. Более того, необходимость во внутренних откоса обусловлена желанием придать оконной конструкции законченный внешний вид. Для отделки данных конструкций используются практически те же самые материалы – штукатурка, гипсокартон и пластик.

Рис. 8. Отделка внутренних откосов.
Функции внутренних откосов для ПВХ окон
Основной функцией внутренних откосов является защита монтажных швов пластиковых окон от неблагоприятного воздействия ультрафиолетового излучения и влаги. Благодаря откосам предотвращается возможность разрушения монтажной пены, которая чрезвычайно чувствительна к ультрафиолету. Под воздействием солнца она становится хрупкой, что приводит к образованию трещин между ПВХ оконной системой и стеной. К тому же негативное воздействие влаги может привести к существенному снижению теплоизоляционных качеств монтажной пены. Помимо этого, внутренние откосы необходимы для функции декора.

Рис. 9. Пластиковые откосы изнутри.
Штукатурные откосы для ПВХ окон
Отделка внутреннего откоса посредством штукатурки осуществляется в несколько этапов. На первом этапе поверхность обрабатывается слоем специального грунта. За счет этого улучшаются адгезионные качества конструкции. После того, как грунтовочный слой высохнет, наносится непосредственно штукатурка. Она устанавливается с использованием сетки. Для заделывания щели между штукатуркой и ЯПВХ окном используется силикон. Штукатурные откосы считаются самым дешевым вариантом отделки. Но при этом стоит учитывать относительно низкие теплоизолирующие качества этого варианта, которые могут привести к переохлаждению и запотеванию окон.

Рис. 10. Штукатурные откосы.
Гипсокартонные откосы для ПВХ окон
В случае правильного проведения монтажных работ гипсокартонные откосы отличаются своим длительным сроком эксплуатации, презентабельным внешним видом и отменным качеством исполнения. Более того, грамотная установка позволит получить необходимые теплоизоляционные свойства. Отделка гипсокартоном предполагает нанесение грунтовки и шпаклевки. Последний слой – это краска необходимого цвета. Ее следует наносить только лишь после полного высыхания всех слоев. Но при этом необходимо обязательно помнить, что гипсокартон является материалом, подверженым негативному воздействию влаги. Таким образом, гипсокартонные откосы стоит устанавливать исключительно в утепленных помещениях.

Рис. 11. Схема монтажа гипсокартонных откосов.
Пластиковые откосы для ПВХ окон
Еще один популярный вариант отделки ПВХ окон – пластик. Этот вариант отличается своим универсализмом. К тому же откосы из пластика характеризуются легкостью установки, надежностью, прекрасными тепло- и шумоизоляционными свойствами. Альтернативой подобным листовым откосам могут быть сендвич панели. Монтаж такой конструкции является превосходным вариантом для отделки боковых сторон проемов окна. К преимуществам сендвич панелей также стоит отнести большой выбор цветовых решений. Еще один плюс подобного варианта отделки – отсутствие необходимости в дополнительном декорировании.
Рис. 12. Отделка откосов пластиковых окон.
Подготовительный этап

Прежде, чем начать монтаж откосов на пластиковые окна своими руками, основание необходимо подготовить. Процесс этот прост. Для мероприятия понадобятся:
- строительный нож для подрезки излишков монтажной пены после ее высыхания;
- молоток для устранения выступающих элементов;
- щетка с металлическим ворсом для устранения ржавчины и грязи;
- кисть для нанесения жидких составов.
Грунтование позволяет решить несколько задач:
- укрепление основания;
- обеспыливание;
- защита от коррозии и влаги;
- улучшение адгезии.
После проделанной подготовки поверхность должна просохнуть. Затем можно приступать к черновой отделке.

Свойства пластиковых материалов
Стандартные ПВХ имеют полую внутреннюю конструкцию, уплотнённую рёбрами жёсткости. Сэндвичи обладают многослойной структурой, кроме пластикового основания из поливинилхлорида, содержат слой утеплителя. Характеристики:
- Возможны 3 способа стыковки — бесшовный, рельефный, рустовый — для создания монотонной или рельефной структуры. Для отделки откосов подойдут бесшовные модели.
- Разные типы отделки покрытия — матовые, глянцевые, монотонные, узорчатые.
- Разделение по эксплуатационному назначению на листовые, панельные, вагончатые.
- Использование полистироловых, минеральных, понеполиуретановых утеплителей в сэндвич-панелях.
Свойства пластика:
- низкий вес;
- шумоизоляция;
- низкая проводимость тепла;
- экологическая безопасность;
- антисептическая безопасность;
- устойчивость к химическим, термическим раздражителям.
ПВХ-панели имеют широкую размерную сетку, где изделия отпускаются в среднем плитами 3 х 1,5 м. Ключевую роль играет толщина панели, для откосов оптимальна от 10 до 24 мм, но не менее 8 мм.
Важно Чем больше толщина сэндвич-панели, тем больше слоёв утеплителя она содержит. Однако при выборе следует учитывать установку отопительных систем, которые могут приводить к некорректной терморегуляции. Оптимален монтаж двухслойных моделей
Оптимален монтаж двухслойных моделей.
Последовательность работ



Схема подрезки верхнего металлического отлива

Сначала необходимо установить отлив
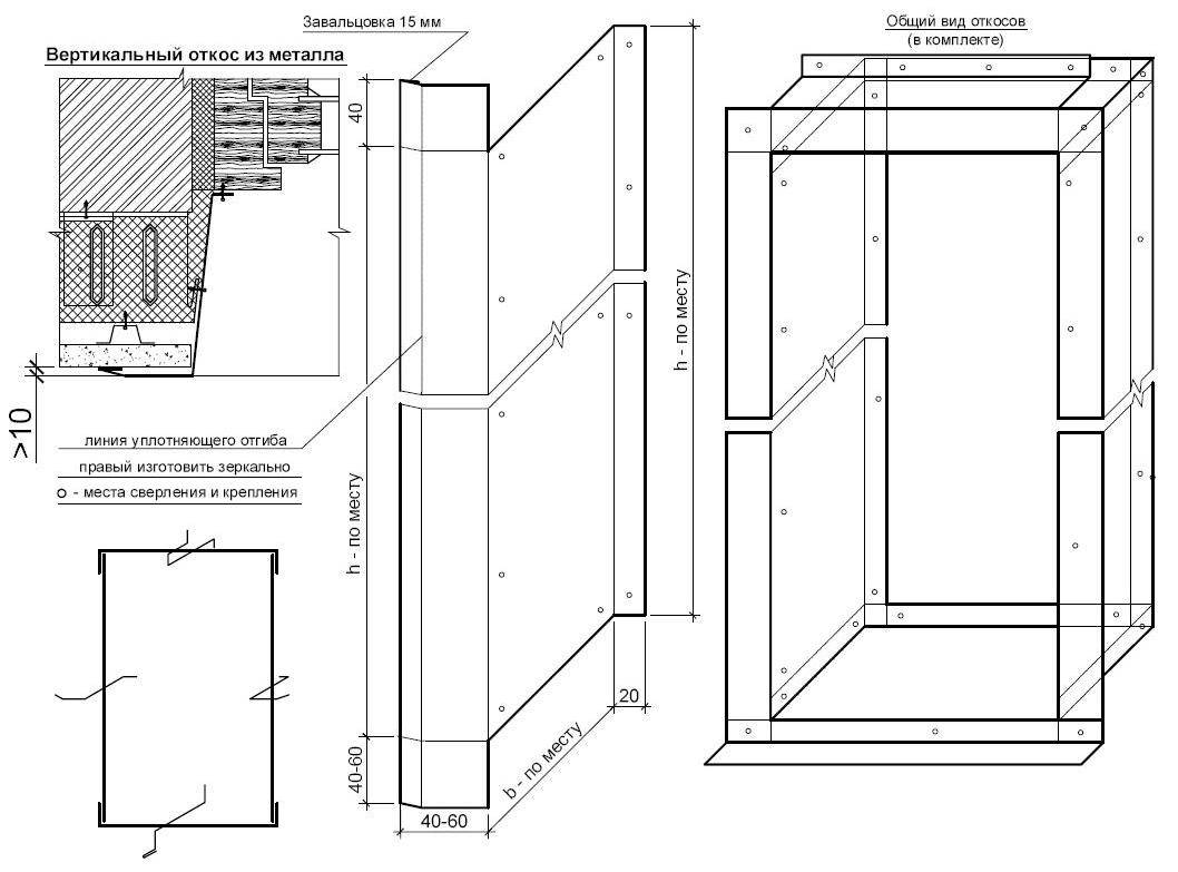
Во время крепления отлива монтажную пену наносят на оконный проем и на отлив с внутренней стороны. Чтобы он не загнулся из-за расширения пены, на время его плотно прижимают. После того как отлив закреплен, приступают к монтажу металлических откосов.
Перед тем как устанавливать металлические откосы, необходимо те места, в которых они будут соприкасаться с рамой окна, обработать герметиком.

Металлические откосы закрепляют с помощью монтажной пены
Сначала устанавливают боковые элементы с соблюдением необходимого уклона изнутри наружу. Верхняя и нижняя части корректируются при помощи ножа в зависимости от уровня наклона.
Боковые элементы должны быть установлены в вертикальном положении и притянуты при помощи шурупов. Верхняя часть подгоняется под боковые элементы. Она выравнивается относительно внешних углов и закрепляется саморезами.
На завершающем этапе все места прилегания обрабатываются герметиком.

При монтаже откосов на фасад из профнастила используют горизонтальные перемычки
Почему мы рекомендуем проводить отделку сэндвич-панелями?
Потому что это трехслойный материал – легкий утеплитель между двумя слоями прочного пластика. Именно эти три слоя обеспечивают устойчивость к механическим повреждениям, надежную герметичность и отличную теплоизоляцию.
Высокие теплоизоляционные свойства придает панели ее средний слой из экструдированного или свободновспененного пенополистирола. Он негорюч и обладает очень низкой теплопроводностью (0,041-0,045 кв.м/К)
Отделка откосов сэндвич-панелями очень проста. Существует несколько их стандартных размеров. Толщина обычно составляет 8-10 мм, а вот ширина варьируется от 2 до 3 м, длина от 0.9 до 2 м. Это позволяет сделать монтаж без стыков и швов.
А при помощи ламинированных сэндвич-панелей, имеющих широкую цветовую гамму и различную текстуру можно создать дома неповторимый дизайн и уют.
Пластиковые материалы
Откосы из пластика имеют огромные преимущества по сравнению со штукатуркой:
- Большой срок эксплуатации.
- Эстетичный облик.
- Закрывает все дефекты стыков.
- Не нуждается в дополнительной отделке и покраске.
- Отличная теплоизоляция.
- Средняя стоимость монтажных работ.
- Монтаж можно произвести за 2−3 часа.
- Легкость в эксплуатации — поверхность легко чистится.
- Высокая влагостойкость.
- Большой выбор цветовой палитры.
Во время замены старых окон можно сильно повредить оконный проем, поэтому важно заполнить образовавшиеся пустоты. В некоторых случаях щелей не видно, но из окна все равно сквозит
Это говорит о том, что произошла разгерметизация швов после монтажных работ.
Способы теплоизоляции
Утепление можно произвести 2 способами:
- Утеплить пространство пенопластом или минватой с внутренней стороны окна.
- Залить монтажной пеной щели на стыке оконного проема и рамы из ПВХ.
Зазор в пределах 50 мм на гладкой поверхности желательно утеплять Изовером, листовым пенопластом или пенополистиролом. При неровностях стены лучше использовать минеральную вату. Снаружи зазоры можно заполнить монтажной пеной.
Хорошо утепленные многослойные стены сами по себе отлично защищают оконный проем от внешних факторов, поэтому утеплять откосы необязательно, достаточно пройтись монтажной пеной по всем зазорам снаружи.
Монтаж откосов из пластика
Теперь рассмотрим как из пластика сделать откосы на окнах. Необходимые инструменты:
- Листовой пластик 8 мм, хватит 6 метров.
- Полоса стартовая П-образная и F-образная.
- Перфоратор или дрель.
- Строительный уровень.
- Ножницы по металлу.
- Угольник.
- Карандаш.
- Герметик и саморезы.
Как и в случае с гипсокартоном, откосы пластиковые своими руками монтировать нужно с брусков и пенопласта. Затем оконной раме крепим стартовый профиль при помощи клея, можно зафиксировать профиль к бруску на строительные скобы для большей надежности.
Следующим шагом крепим к бруску, который идет вдоль стены, F-профиль.
Теперь наступает самый сложный этап — установка панелей. Так как профили, которые были ранее закреплены, из пластика — они легко гнутся, это поможет завести их в F-профиль. Но до этого нужно вставить один край откоса в стартовый элемент и толкнуть его до упора.
Затем нужно аккуратно отжать внутренние края F -профиля и завести панель внутрь. Если работа проведена правильно, то профиль должен вернуться в свое начальное положение и надежно зафиксировать панель.
Монтаж откосов со стартовым П-образным профилем
Прежде всего подготавливаем откосы, отличий от первого способа при этом нет – сбивается штукатурка, пыль удаляется и поверхность кирпича, бетона, штукатурки пропитывается грунтовкой.
Список инструментов не меняется, но для закрепления П-образного профиля добавляется степлер со скобами 8-10 мм. Если степлера нет, профиль можно крепить гвоздиками или саморезами.

Перед установкой стартового профиля требуется закрепить деревянный брусок, к которому прибивают профиль. Сечение бруса должно быть таким, чтобы он расположился у рамы.

Не обязательно брус выбирается сплошной, это могут быть разные по длине отрезки. Подкладки помогут отрегулировать положение бруса, желательно слегка наклонить его относительно рамы, чтобы стартовый профиль не выкручивало при размещении в нём сэндвич-панелей.
При помощи перфоратора или шуруповерта брус крепится к бетону дюбелями, так прочно, чтобы монтажная пена не развернула, не сместила его в сторону.

Стартовый профиль следует приобрести плотный, более дорогой. Дешёвый профиль, при монтаже панелей в него, может изогнуть, между ним и сэнвич-панелью образуется заметная щель.

П-образный профиль устанавливают так, как и при монтаже пластиковой вагонки – длинной стороной к брусу. Лучше это делать степлером или при помощи саморезов – удары молотка могут ослабить прочность крепления бруса. Профиль необходимо хорошо прижимать к оконной раме, чтобы полностью избежать появления щелей.

Саморезы для крепления стартовой полосы лучше использовать не для гипсокартона, а с плоскими шляпками по типу пресс-шайбы.
Разметка панелей по длине выполняется с учетом подоконника для боковых отрезков. Есть методика, когда при монтаже боковых панелей верхний срез оформляют П-образным профилем, чтобы сделать проще процедуру подгонки верхнего и бокового откоса.
На передней части откосов монтируются рейки таким же образом, как и при способе без П-образного профиля.

Монтаж панелей происходит несложно – замеряем ширину верхней и боковых панелей.

Для этого вставляем сэндвич-панель, отрезанную по нужной длине, в профиль и отмечаем ширину, выполняя отметку карандашом, ручкой или т.п. Отрезаем ножовкой и подгоняем при необходимости. Если установлен подоконник, нужно добиться ровного положения боковой панели, без изгибов.


Альтернативный вариант оформления стыков панелей при помощи углового профиля.
Уже подогнанные панели вставляем боковыми торцами в стартовый профиль. Для их закрепления требуется слегка отклонить в сторону от откоса и нанести полосу монтажной пены из баллона. Другая методика – сначала змейкой нанести пену по всей плоскости откоса, полностью заполнить промежуток между бруском и рамой после этого вставить панель и прижать её к откосу.

При помощи уровня проверяем правильность положения панели в вертикальной плоскости, малярным скотчем фиксируем передний край. Если есть сомнения в прочности скотча, дополнительно фиксируем гвоздиками.

Откосы из сэндвич-панелей
Универсальным решением, как сделать откосы на пластиковых окнах, станет монтаж сэндвич-панелей, состоящих из двух внешних слоёв пластика, между которыми проложен утеплитель. Такие откосы, обладая тем же цветом и фактурой, станут логичным продолжением окна и не потребуют дополнительной отделки.
К явным преимуществам этого материала перед гипсокартоном можно отнести большую прочность и абсолютную нечувствительность к влаге, отсутствие пыли при монтаже, долгий срок эксплуатации без ремонта, простоту ухода и очистки от грязи.
Монтаж сэндвич-панелей осуществляется аналогично гипсокартонным откосам, приклеиваемым на монтажную пену. Как и в том случае, сначала вокруг окна устраивают паз в застывшей пене, затем вырезают панели с учётом его глубины. Детали устанавливают в паз, предварительно нанеся точечно на увлажнённую стену проёма монтажную пену, прижимают в нужное положение и фиксируют отрезками малярного скотча.
Монтаж сэндвич-панелей на монтажную пенуИсточник i2.wp.com
Когда пена схватится, скотч снимают и задувают все пустоты, но очень аккуратно, чтобы при расширении пена не выдавила панели.
Стыки между панелями и оконной коробкой по всему периметру заполняют герметиком или жидким пластиком. А на внешние торцы надевают вырезанный по длине F-образный профиль, полочку которого приклеивают к стене вокруг проёма. Сначала устанавливают вертикальные элементы, затем верхний горизонтальный, срезав углы под 45 градусов. До высыхания клея профиль также фиксируют малярным скотчем.
Свойства пластиковых откосов
Откосы для пластиковых окон могут выполняться из двух типов материала – это могут быть оконные откосы из ПХВ панелей или из сэндвич-панелей.

Откос служит защитой монтажной пены от разрушения
Для обоих видов пластиковых панелей характерны общие положительные качества:
- долгий эксплуатационный срок;
- пластиковые откосы для окон обладают декоративным внешним видом и сочетаются с материалом, из которого изготовлена оконная система;
- отделка оконных откосов внутри пластиком позволяет надежно защитить монтажную пену от воздействий окружающей среды;
- монтаж пластиковых откосов возможен для отделки арочных проемов, так как может применяться гибкий наличник ПВХ;
- можно устанавливать панели ПВХ своими руками, не имея профессиональных навыков и специального дорогостоящего оборудования;
- пластиковые панели для откосов можно резать ножовкой по металлу, но делать это нужно аккуратно, не прилагая усилий, чтобы ПВХ-панель не треснула;
- установка пластиковых окон своими руками происходит быстро и без образования серьезных загрязнений и строительного мусора;
- за панелями ПВХ просто ухаживать – достаточно их протирать иногда тряпкой, смоченной в мыльном растворе;
- они обладают низкой теплопроводностью;
- пластиковый оконный элемент обладает высокой влагостойкостью;
- отделка откосов пластиковых окон надежно защитит их от промерзания.
Подготовительные работы перед началом монтажа

Перед началом установки нового окна нужно провести демонтаж старого. Делается это поэтапно. Сначала из оконной рамы вынимают стекло, предварительно поддев стамеской штапики, которые его держат. Если этого не сделать во время монтажа стекло может разбиться и поранить вас. Далее нужно распилить раму. Сделать это можно как с помощью обычной пилы, так и с применением болгарки. Однако, стоит помнить, что болгарку можно применять лишь при наличии алмазного диска или диска по бетону. Во избежание травматизма категорически запрещается использовать диски по дереву и металлу. Распилив раму на части можно приступать к её демонтажу, вооружившись при этом перфоратором, ломиком или же гвоздодером.
Следующий этап заключается в удалении старого подоконника и отлива. Если они деревянные, то для демонтажа применяют тот же принцип что для рамы. Подоконник или отлив нужно распилить на несколько частей и вытащить их одна за одной. С бетонным подоконником дела обстоят несколько сложнее. Удалить его можно лишь предварительно разбив на части при помощи отбойного молотка.
Избавившись от старого окна можно приступать к финишным подготовительным работам. Оконный проем нужно тщательно очистить от строительной пыли и мусора, образовавшегося в процессе демонтажа. Сделать это можно с помощью обычного пылесоса. Также стоит убрать остатки старого утеплителя и монтажной пены.
После всех проведенных работ поверхность оконного проема нужно обработать грунтовкой. Далее в нижней части будущего окна устанавливается так называемый подставочный профиль, к которому в дальнейшем будет крепиться сам стеклопакет. Закрепляется профиль с помощью монтажной пены.
Конструкция из сайдинга
Как сделать наружные откосы сайдингом? По сути, сайдинг — это тот же пластик, только он имеет рифленую форму. Он состоит из набора разного вида профилей, отделочных пластин.
- Перед монтажом сайдинга все наружные поверхности здания необходимо обрешетить.
- Затем на обрешетку крепят сайдинговый вентилируемый фасад и наружные откосы. Сайдинговые пластины имеют в верней части крепежные отверстия, через которые материал закрепляется на обрешетке.
- Каждая последующая пластина накладывается на предыдущую, скрывая крепежный «шов». В результате получается, что на стене нет нигде и следа от креплений.
- Наружная отделка откосов пластиковых окон сайдингом включает в себя проведение аналогичных операций, что и при установке пластиковых откосов (разница в виде самих профилей).
- Сайдинговые откосы имеют специальную конструкцию, для их закрепления используются различные изгибы и отливы, позволяющие «собирать систему» откосов.
Как сделать самому: установка пошагово
Установка пластикового окна только тогда считается правильной, когда произведен монтаж откосов. Ведь эти элементы несут определенную долю теплоизоляционной нагрузки и предотвращают проникновение холода в помещение.
При некачественной установке откосов может произойти разрушение структуры строительных материалов, и дальнейшая эксплуатация окна станет невозможной. Поэтому следует устанавливать откосы, точно соблюдая все нюансы технологии. Процесс установки состоит из нескольких этапов.
Выбор материала
В этот момент следует ознакомиться с плюсами и минусами каждого материала и способом его установки. Это необходимо, чтобы рассчитать затраты средств, времени и выбрать вариант, который возможно установить собственными силами.
Подготовка

следует удалить все излишки пены, которые остались
Пена должна быть высохшей. Затем смазать оставшиеся слои пены акриловым герметиком. Этот прием способствует улучшению адгезии пластика рамы с материалом откоса.
Укрыть оконный блок, подоконник и прибор отопления под ним полиэтиленовой пленкой во избежание загрязнения в процессе монтажа. Очистить основание от пыли и грязи.
Если планируется штукатурный откос, то нужно хорошо выровнять поверхность проема с помощью маяков и цементно-песочной смеси. Для работы понадобится шпатель, правило, уровень. Перечисленные действия нужны при установке нового окна.
Если произведена замена, то необходимо удалить старый слой штукатурки, демонтировать старый подоконник и установить новый. Выровнять все монтажные швы, заполнить пустоты монтажной пеной, оштукатурить специальной строительной смесью. Раствор приготовить по инструкции.
В заключении прогрунтовать поверхность грунтовкой глубокого проникновения. При выполнении штукатурных работ необходимо выдержать время для высыхания слоев. На этом этапе рекомендуется выполнить все замеры для правильной разметки деталей. Замеры нужно сделать тщательно, чтобы не было лишних затрат материала.
Дополнительная подготовка оконных проемов
На этой фазе используются рейки для выравнивания проема в двух плоскостях. Затем их нужно оштукатурить смесями с гипсосодержашим составом. После высыхания покрыть антигрибковым раствором.
Далее требуется заделать швы качественным герметиком и приступить к подготовке деталей в зависимости от применяемого материала. Например, для штукатурных откосов нужно сделать начальный слой — выставить маяки, накидать раствор, выровнять правилом.
Завершающий этап
На нем производится монтаж откосов по технологии для выбранного материала. Затем идет окончательная отделка (если нужна) — декорирование, окраска, покрытие лаком (для дерева).
Установка пластиковых откосов на ПВХ-окна — в видео:





