Макеты в ARCHICAD
Для начала удалим все лишние макеты. Они созданы по умолчанию и не понадобятся нам.
Выделяем все макеты с зажатой клавишей Shift. Затем жмем на крестик в правом нижнем углу. В открывшемся окне подтверждаем удаление.

Теперь можно приступить к формированию книги макетов. Начнем с основных макетов.
Основные макеты в ARCHICAD
Основной макет – это модель листа, которая является шаблоном для обычного макета.
Основным макетом задается размер листа и поля.
В пространстве листа основного макета могут находиться почти любые элементы. Например, с помощью линий и текста создается и заполняется штамп.
Перейдем в основной макет. Для этого раскройте список с основными макетами. Чтобы перейти к редактированию основного макета кликните два раза по его названию.
Вы можете изменить штамп и подписи на макете исходя из своих нужд.
В подписях используется автотекс, с его помощью можно заполнить данные в штампе автоматически. Автотекстом удобно нумеровать страницы, подписывать масштаб и названия чертежей и многое другое. Как работать с автотекстом поговорим в следующей статье.
Теперь применим основной макет к обычному.
Для этого кликните правой кнопкой мыши по обычному макету и выберите из меню пункт «Параметры Макета…». В открывшемся окне находим параметр «Формат» и кликаем по нему, из открывшегося списка выбираем имя основного макета. Жмем «ОК»

Таким образом, мы переназначили основной макет для одного из обычных макетов.
Теперь создадим новый основной макет.
В стандартных макетах уже есть все самые используемые форматы листов со штампами. Если вам нужен другой размер листа, есть смысл создать новый основной макет.
Кликните по третьей иконке в нижней части книги макетов.
В открывшемся окне «Создание Нового Основного Макета» в пункте «Размер» указываются размеры листа. В пункте «Поля» можно задать размеры отступов от края листа.
Все что находится за пределами полей не печатается.

Теперь попробуем создать обычный макет.
Как создать макет в ARCHICAD
Процесс создания обычного макета почти не отличается от создания основного.
Кликните по второй иконке в нижней части книги макетов. В открывшемся окне в пункте «Формат» нужно выбрать основной макет.

Макет создан, разместим на нем чертежи.
Obucheniedoma

Особенности курса:
- Изучение программы с нуля от настройки интерфейса и до создания 3д модели коттеджа
- Последовательное обучение от вставки картинки плана, до создания кровли
- Никакой воды, только конкретика. Это НЕ записи вебинаров (где 80% времени — болтовня ни о чём), а полноценные видеоуроки
- Большой объём информации за минимальное время. Вы получаете все уроки сразу, не дожидаясь несколько дней
Для кого этот курс:
- Для Архитекторов и проектировщиков;
- Для Студентов ВУЗов направлений: архитектура, строительство, дизайн;
- Для тех, кто хочет узнать подходит ему ArchiCAD для работы или нет.
- Для Дизайнеров интерьеров;
- Для тех, кто хочет сам смоделировать свой дом с учётом своих особенностей;
- Для фрилансеров, ищущих дополнительные возможности заработка.
Soft Culture

ArchiCAD — самый гибкий BIM-инструмент, который подходит для проектов любого масштаба: от интерьера до небоскреба. Кривые руки превращают ArchiCAD в неуправляемого монстра. На онлайн-курсе по ArchiCAD вы разберетесь, как работать в программе правильно и последовательно, изучите все этапы работы над проектом.
На курсе вы настроите шаблон под себя, научитесь использовать ArchiCAD для создания как 2D-чертежей, так и детальной BIM-модели. Вам расскажут, как выводить альбом чертежей, считать спецификации, настраивать графику проекций и схем. В качестве бонуса — покажем экспорт в AutoCAD, SketchUp, 3ds Max и настроит «живую» связку с Rhinoceros и Grasshopper.
После курса вы убедитесь, что ArchiCAD ничем не уступает Revit. ArchiCAD удобнее в работе с графикой, а также показывает более высокую производительность при работе с большими моделями. Именно поэтому в нем работают такие бюро, как Sergey Skuratov Architects, FORM, Speech, Остоженка и др.
Нет знаний в сфере проектирования или дизайна. Как быть?
Нас часто спрашиваю, как освоить профессию, если в ВУЗе не учился? Уже нет на это времени. В интернете курсов тоже таких нет… Ведь это колоссальный объем информации. Профессии обучаются 5 лет. Да и вообще, можно ли самому со всем этим разобраться? Задача очень сложная, но вполне реальная. Вот вам пошаговый чек-лист от человека, который прошел невероятный путь от грузчика до высококлассного проектировщика!
ШАГ 1. Как заставить себя учиться?
Мы определились, что хотим освоить что-то новое, сложное, непонятно. С чего начать?
У вас есть желание или мечта, например, стать дизайнером интерьеров. Эту мечту надо “перепрограммировать” у себя в голове на цель. А дальше ищите возможность достижения своей цели. Главное не искать причины “Почему я не могу этого сделать?”, а искать ответы на вопрос “Как это сделать?”.
ПРИМЕР:
Что имеем? | Работаю кассиром | |
Чего хотим? | Хочу быть дизайнером! | |
О чем думаем? | Но я же не могу бросить работу! У меня дети. Времени на учёбу совсем нет. А вдруг не получится? | Как бы мне научиться дизайну? Работаю я до 20-00, дети ложатся спать в 22-00. Полежу 30-60 минут, посмотрю “обучалки” всякие в интернете. Лягу спать на час позже, но сегодня буду ближе к своей цели! |
РЕЗУЛЬТАТ через 5 лет | Полный провал! Кассир, который не довольный своей работой / жизнью / окружением | Успешный дизайнер, который работает с премиум сегментом. Возможность путешествовать и получать кайф от жизни. |

Вывод: мотивируем себя и начинаем изучать все, что есть в открытом доступе. Смотрим YouTube, читаем статьи, нормативные документы. Собираем базу знаний на компьютере.

ШАГ 2. Ищем рабочий инструмент
Знания – важная часть, но этого недостаточно. Теперь нужно найти рабочий инструмент. Он есть у любого ремесленника: у визажиста – косметика, у таксиста – машина, у повара – целый арсенал инструментов и оборудования. А что должно быть в руках проектировщика? Современная программа!

Проект должен быть, как конструктор Lego! Не равняйтесь на других, если вас что-то смущает. Не понятный проект, есть вопросы? Значит нужно сделать лучше!





ШАГ 3. Подключаем тяжелую артиллерию. Ищем спецов, которые помогут.
После того, как был проработан весь материал в открытом доступе нужно задуматься о прокачке своих скилов. Самое время найти профессионалов и перенять у них опыт.
Не думайте, что специалисты будут нянчиться с вами. Им просто некогда. Похвально, если вы их нашли и даже сумели пообщаться через соц.сети или почту. Но дальше этого дело не сдвинется. Здесь лучше поискать курсы.

На бесплатном материале далеко не уедешь! Не нужно думать, что это развод. Бесплатный курс – это пробник. Чтобы вы могли оценить качество подачи материала, сделать свои первые шаги и определиться, нужен ли вам полный курс. Ведь сейчас в интернете каждый второй готов вас научить за хорошее финансовое вознаграждение. И чтобы найти нормальный курс, нужно потратить много времени на анализ и сравнение материала. Так Илья пришел к нам на курс «Использование ARCHICAD на 100%»


ШАГ 4. Делаем классное портфолио!
Единственный аргумент для работодателя – это пример вашей работы. Очень здорово, что, проходя курс в AMS, вы сразу создаете портфолио. Затем рассылаете его в компании и фирмы. Ждете. Хорошо оформленный проект = успех!





Лайфхак от Ильи: что делать, если не получается и хочется «забить»?
У многих людей, в том числе и у меня, бывает такой момент. Когда что-то новое изучаешь и никак не получается. В голове закрадывается мысль «…а может это не моё?», «Никак не пойму, как это сделать?», «Это была ошибка», «Я не способен…», «Только время теряю…».

Тут оказалось всё намного проще, чем кажется. Сейчас расскажу, как устроен наш мозг. Сравним его с мышцами на теле. Если я никогда не поднимал штангу и неожиданно для мышц рук поднял её пять раз, мои мышцы получили микро-раны. На следующий день очень болят руки. Так болят, что невозможно поднять эту же штангу даже один раз.
Через 2-3 дня раны зажили, и я могу поднять штангу 5 раз с лёгкостью. И ещё пять раз, как развитие. И так далее. Каждые 2-3 дня.

Наш мозг устроен также: когда он получает новую информацию, то воспринимает чрезмерную нагрузку и получает (утрировано) «микро-раны». Надо просто дать ему отдохнуть пару дней. Для восстановление этих «ран» нужно время. Есть смысл вообще переключиться. Через 2-3 дня, когда вы будете пробовать сделать тоже самое, вы удивитесь, как всё оказывается было просто. Все получится, само собой.

Вывод такой: если что-то никак не получается понять, передохните пару дней. Потом вернитесь к этому вопросу. Всё станет понятно, и вы сможете двигаться дальше.
У меня так было с сопроматом (сопротивление материалов). Расчёт нагрузок. Никак не мог понять формулы, по которым всё высчитывается. Но давая перерывы голове, в конечном итоге, всё понял и сейчас применяю на практике.
Очень важно понимать, что цель которую вы ставите – это самое главное для вас. Ни в коем случае нельзя останавливаться
Если поставить себе цель и не достигнуть её, значит на подсознательном уровне вы и не хотите этого.
Пример: Надо бросить курить, это вредно, опасно для здоровья, дорого. Надо, но не бросаю. Значит я и не хочу бросать! Если бы хотел, то сделал бы всё для того, чтобы бросить.
3D Warehouse – модели SketchUp
Ещё один хороший ресурс с моделями, которые подходят для ARCHICAD – 3D Warehouse. Можно загружать модели SketchUp сразу в ARCHICAD в формате .*skp.
Для этого понадобится зарегистрироваться на сайте – https://3dwarehouse.sketchup.com/
Затем скачиваем подходящую модель в формате «SketchUp 2017 Model». Чтобы загрузить модель в ARCHICAD, открываем план этажа и просто перетаскиваем файл модели в 2D окно.

Любая модель, загруженная таким способом, будет доступна через инструмент «Объект». Конечно, она не будет параметрической. Но для нужд дизайн-проекта это не всегда нужно.
Если вы заметили, у модели, которую я загрузил, много лишних линий как в 2D так и в 3D. Их можно убрать, оптимизировав модель.
Как это сделать показано в нашем бесплатном марафоне «Создание дизайн-проекта квартиры в ARCHICAD». Там есть целый раздел, посвященный работе с объектами и моделями. Поэтому регистрируйтесь и проходите уроки бесплатно!
Теперь вы умеете загружать модели в ARCHICAD. А также знаете, где их брать. Если вам этого не достаточно, вы можете ознакомиться со списком сайтов с объектами для ARCHICAD.
ARCHICAD
Проект своими руками
Урок по проектированию небольшого дома для тех, кто абсолютно не знаком с программой. Проект представляет собой дом с двумя детскими, спальней, подсобными помещениями, кухней, залом, кладовкой. Автор показывает использование различных инструментов. Начинают с построения наружных и внутренних перекрытий, меня их толщину и в зависимости от их расположения, размечая размеры дома и помещений. По ходу размечают двери и сторону их открытия. Далее отмечают расположение окон. Все нюансы конструирования автор комментирует. В конце делается крыша
Так как дом имеет неправильную форму, то на ее построение следует обратить особое внимание.
Структура хранения данных
Проектирование не начинается и не заканчивается в Archicad. Файл Archicad — это очень важная, может быть даже главная, но не единственная составляющая общего процесса работы. На входе мы имеем некоторые исходные данные: реквизиты договора (номер проекта, название и т.п.), топосъемку в векторном формате или файл со списком координат точек. В процессе формирования BIM-модели в Archicad появляются данные (которые могут обрабатываться в сторонних приложениях), задания смежным специалистам и т.д. Поэтому необходимо начать с приведения в порядок структуры хранения файлов. Прежде всего проанализируйте ранее выполненные проекты. Разберитесь в том, какие данные вы имеете на входе, а какие — на выходе, для чего и когда они используются и так далее.
Нужно четко определить и прописать в Регламенте организации структуру именования файлов. Существует Британский BIM-протокол, регламентирующий структуру именования и хранения файлов проекта. Он, хоть и не совсем соответствует российским требованиям к составу проектной документации, но может стать хорошей основой для формирования стандарта организации.
На иллюстрации приведена схема возможных взаимосвязей между исходными данными, файлом Archicad, выдаваемыми заданиями, публикуемыми Интерактивными Каталогами для сбора Технико-экономических показателей и последующей вставки их в пояснительные записки всех разделов проекта. Очевидно, что связей много, они многоуровневые, и эту сетку связей невозможно настраивать в постоянно меняющейся структуре файлов. Если же учесть, что над проектом работают не только архитекторы, то становится очевидна необходимость структурирования системы хранения всех файлов всех разделов проекта. Тут подтверждается тезис о том, что Шаблон работы в Archicad должен быть частью общего регламента работы организации. Так как, если структурировать работу только одного отдела, то это даст очень ограниченный эффект, и этот «островок» порядка неизбежно погрязнет в окружающем хаосе. Ведь архитектор не только выдает задания, но и получает их. | ![]() |
Таким образом, если внешние файлы смежников будут постоянно дублироваться, а их названия будут меняться, то все время, сэкономленное на оптимизации процесса постановки задач, будет потрачено на получение обратных заданий от смежников. Идеальный вариант: когда все специалисты работают в рамках одной организации и используют PDM (Product Data Management) систему хранения файлов с сохранением версионности, настройкой прав доступа и ролей пользователей.
Следует упомянуть, что в случае совместной работы специалистов разных организаций настройка системы взаимодействия становится на порядок сложнее. Даже в рамках одной организации очень трудно мотивировать людей менять устоявшиеся принципы работы, даже если эти принципы очевидно неэффективны. Для того, чтобы установить единый регламент работы, хранения и именования файлов со специалистами других организаций, надо как минимум заручится поддержкой руководства этих организаций
Как правило, это возможно только в том случае, если вы сотрудничаете с данной организацией давно, и это сотрудничество жизненно важно для обеих организаций. Это можно сравнить с использованием отдельного с/у в своей квартире, или общего — в коммуналке
Обращаю внимание на то, что в корне папки раздела АР находится файл описания структуры хранения файлов данного раздела. Это сделано для того, чтобы новый сотрудник или смежный специалист мог быстрее понять, где находятся нужные ему данные
Так вот, если все этапы обмена информацией регламентируются стандартом организации с полностью сформированной структурой файлов, то работа существенно упрощается, поскольку становится легче определить этап, на котором возник «затор», и устранить проблему. Этот процесс можно сравнить с дорожным движением. Когда все ездили на лошадях и гужевых повозках, дорожное движение не требовало серьезного регулирования, но страшно представить, во что превратились бы улицы современных мегаполисов, если бы не были введены четкие правила дорожного движения.
На этом можно считать, что общая проблематика формирования Шаблона Archicad в целом очерчена. В следующих статьях данного цикла я перейду к детальному разбору отдельных элементов, из которых состоит Шаблон, и принципам работы с ними.
Разработка фундамента
При разработке модели дома, в первую очередь, проектируют фундамент. Именно его разработке посвящено видео. Состоит из 4-х частей. В 1 части — закладка фундамента. Приступают к построению с фундамента, выбирая для этого инструмент «Стена», задают материал и высоту во вкладке «Параметры». Размеры расположения элемента задают с учетом, что он будет ниже уровня земли, поэтому значения будут отрицательные. Чтобы увидеть фундамент, переключаются в панели навигации на подземный этаж и выставляют ширину этого элемента. Выстраивают основной фундамент, добавляют подушку. Модель строят в плоском виде, но ее всегда можно посмотреть в трехмерном. 2 часть — проектирование 1-го этажа. 3 —2-го этажа и дверей. Заключительная 4 часть — расстановка оконных проемов.
Пример №5
Строители, воплощавшие один из наших проектов, железобетонный резервуар, озвучили заказчику претензию, что в документации КЖ неверно указана арматура. По их подсчетам, суммарный вес арматуры должен быть в полтора раза больше, чем заложено в чертежах. Трудность подсчета арматуры заключалась в сложной форме резервуара: скошенные ребра, внутренние стенки (рис. 17).
Выстроенная архитектором по чертежам и спецификациям КЖ модель резервуара с полным армированием (рис. 18) показала, что в КЖ была ошибка в количестве и диаметре отдельных позиций, но данные строителей оказались очень завышенными. В результате спецификации были откорректированы, а заказчик выявил «хитрость» строителей.

Рис. 17. Трехмерный разрез модели резервуара с армированием всех конструкций

Рис. 18. Трехмерный разрез модели резервуара с армированием всех конструкций (бетон скрыт в слоях)
Конечно, программа Archicad не предназначена для выполнения конструкторской работы, проектирования армирования, составления спецификаций арматурных стержней и изделий, но данный пример показывает, что смоделировать армирование и проверить количество арматуры – задача, вполне решаемая средствами этого приложения.
Планы по этажам
Сама идеология BIM проектирования предполагает построения виртуальной модели здания в реальных размерах. Как и в реальном здании, здесь есть логическое деление на этажи, чтобы легче было работать с моделью и выводить поэтажные планы.
Пожалуй, самый экзотический метод использования этажей не по назначению — это создание различных планов одной квартиры (план полов, план потолков…) на разных этажах. В результате мы имеем картину вроде следующей: на 1 этаже обмерный план, на втором — монтаж-демонтаж, на третьем — план с мебелью и так далее, сколько требуется чертежей в проекте. Весьма причудливо все это выглядит, если открыть в 3Д окне.
1. Неправильное использование этажей.
Метод серьезно затрудняет работу с несколькими реальными этажами, доводку модели в 3Д, да и редактирование самих чертежей тоже становится нелегким делом. Например, если у вас 30 чертежей, и на всех надо подвинуть пару перегородок, вносить изменения придется довольно долго.
2. Правильное использование этажей.
Трудно сказать, откуда появилась идея использовать этажи не по прямому назначению. Тем, кто уже к этому привык, горячо рекомендую осознать логическую связь этажа реального здания и этажа в архикаде, и начать использовать для разделения планов одного уровня специально предназначенные для этого слои.
Изучаем интерфейс
Начиная осваивать программу, знакомятся с ее интерфейсом, о чем подробно рассказано в видео. При запуске появляется окно выбора проекта, где можно создать новый либо выбрать уже существующий. Сверху находится командное меню, по центру — команда состояний, ниже — информационное табло, слева — панель инструментов. Основное место занимает рабочее поле. Во вкладке «Файл» собраны операции, которые можно производить с файлом (открыть, сохранить, вывод на печать и др.). Вкладка «Редактор» содержится опции элементов проектирования (порядок отображения, изменения формы, расположение). Во вкладках «Вид» — инструменты отображения проекта, в «Конструирование» — настройка этажей, навесной крыши, редактирование и операции соединения. Настройки перьев, графическая замена, реконструкция, визуализации собраны во вкладке «Документ». Настройку реквизитов элементов и среды проекта можно сделать через «Параметры». Установки навигации по этажам и т.д. находятся во вкладке «Окно».
Все чертежи на одном этаже
Самый распространенный вариант, когда уже вычерченный обмерный план копируется и вставляется рядом на том же этаже. Особенно часто этим страдают люди, работающие в AutoCAD (бесконечно копируют планы в пространстве модели), но и среди архикадчиков встречается нередко.
3. Найдите 10 отличий.
Здесь имеем все то же нежелание работать со слоями, а в результате получаем проект, который не стыкуется по этажам, который трудно редактировать и оформлять для печати.
Часто в таких случаях проектировщик даже и не знает о существовании макетов, и печатает чертежи вместе с рамками прямо с плана этажа. Особо продвинутые используют макеты, и это радует, потому что следующая распространенная порочная практика — это как раз печать с этажа.
Послесловие
Статья не предназначена для студентов и инженеров, знающих или изучающих компьютерную программу ArchiCad. Вы господа учитесь у своих преподавателей или зайдите в меню в разделе “Помощь”. А моя статья предназначена рабочим строительных профессий и людям, которые начали или думают сделать первый шаг в строительстве собственного домика, коттеджа или бани. Люди, которые мучаются, как им построит дом. Платят деньги архитекторам и конструкторам, а получив от них проект, зачастую бывают недовольны чертежами, которые они купили. Поверьте, я знаю о чём говорю.
Таким людям проще скачать программу и установить на их компьютер. Настроить рабочую среду и дать им возможность самим попробовать “почем фунт лиха”.
Были заказчики, которые промучившись, снова приходили и просили чтобы проектировщик сам разработал. А были, и не один и не два, которым только помог настроить рабочую среду и прочитал азы настройки и черчения элементов. И они сами себе сделали проект и воплотили в жизнь. Флаг им в руку. На этом всё.
Нажми ссылку “Одна Семья”.
Будьте здоровы!
Возможности Архикада
Существуют различные системы автоматического проектирования. Некоторые из них имеют универсальный характер. С их помощью можно решать задачи в различных сферах.

Однако из-за такой универсальности, их возможности меньше по сравнению со специализированными средствами. Эта программа работает на различных языках, в том числе и на русском.
Выпускается большое количество справочной литературы по программе и учебников.
Архикад является программой, предназначенной для создания трёхмерных моделей здания. В этой среде архитектор не занимается непосредственно черчением. Ему предоставлена возможность использовать большое количество специализированных блоков, из которых он создаёт конечный продукт.
На основе сделанного Архикад может подготовить соответствующий комплект чертежей и сопроводительной документации. Однако на ней нельзя работать с нуля, для успешного выполнения проектов надо стать мастером своего дела.
Работа над проектом протекает в течение нескольких этапов. Рассмотрим их далее.
Создание этажных планов
Сначала архитектор ведёт работу на отдельных планах этажей дома. При этом он планирует расположение стен, перегородок, окон, дверей.

Специалист работает над созданием перекрытий и определяет места, где будут лестницы.
Важно при этом думать не только над архитектурными деталями, но и планировать расположение мебели, оборудования, работать над размещением осветительных приборов.
Чтобы выполнить перечисленные здесь операции, архитектору предоставляются специальные модули и библиотеки объектов. Пользователь имеет возможность заниматься созданием собственных библиотек или приобрести дополнительные, создаваемые сторонними специалистами.
В процессе проектирования в любой момент присутствует возможность не только работы с планами этажей, но и переключение, для того чтобы увидеть полученный результат в трёхмерном виде.
Создание сопроводительной документации
После того, как проект был создан, необходимо подготовить чертежи и другие сопроводительные документы. Это делают на втором этапе разработки.

При этом не только требуется начертить чертежи в нужных ракурсах, но и сделать на них необходимые пометки, нанести размеры, поставить условные обозначения в соответствии с требованиями соответствующих инструкций.
Кроме чертежей готовится пакет необходимых спецификаций, а также предоставляется смета. Имеется возможность создать материалы для презентации заказчику.
Существенная часть работы по проектированию выполняется в автоматическом режиме. Специалисту достаточно выбрать нужную операцию и указать необходимые параметры.
Для проведения работ могут использоваться результаты, полученные с помощью других систем автоматического проектирования. Для того, чтобы это сделать, надо применить функцию для импорта файлов.
При этом поддерживается возможность работы с 15 наиболее распространёнными форматами графических файлов.
Аналогичным образом возможно передавать проекты, сделанные в Архикаде, для использования в других системах САПР. В частности есть возможность передавать подготовленные сметы в бухгалтерские программы.
Подготовка документов для заказчика
После того, как проектирование проведено, необходимо подготовить комплект необходимой документации, предназначенной для заказчика.
Документы могут быть выполнены в виде электронных копий или напечатаны на бумаге. Для этого предварительно создаются электронные макеты печатных страниц.
Быстрая разработка планировки
Чтобы быстро сделать планировку, необходимо иметь плоский план дома. Используя его, можно будет легко построить трехмерную модель. В ролике показан вариант построения дома с опорой на бумажный план. Во-первых, загружают картинку в программу, затем выставляют ее реальные размеры. Далее приступают к возведению стен, воспользовавшись соответствующим инструментом и выставив нужные параметры. Наметив их, приступают к расстановке окон и дверей. Расставляют их в нужных местах, откорректировав предварительно размеры и указав сторону открывания. В завершение строят перекрытие, воспользовавшись одноименным инструментом.
Смотрите онлайн-курс: Archicad с нуля до PRO
Отображение фасадов в ARCHICAD
Все настройки отображения элементов на фасаде находятся в параметрах.
Перейти в параметры можно несколькими способами.
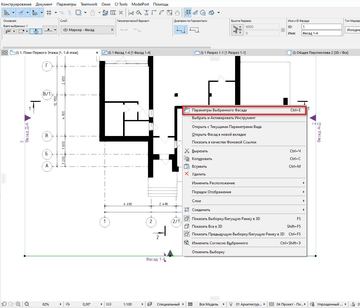
Для того чтобы перейти к настройкам с плана, выберите маркер и кликните по нему правой кнопкой мыши. В появившемся меню выберите первый пункт «Параметры Выбранного Фасада».

Перейти в параметры можно из самого фасада.
Давайте откроем фасад. Это тоже можно сделать несколькими способами. Из меню, нажав правой кнопкой мыши на фасад, выбрать пункт «Открыть Фасад в новой вкладке». Или через панель навигатора.

Чтобы перейти в параметры фасада кликните правой кнопкой мыши в любом свободном месте, из меню выберите «Параметры Фасада…».

Первое что нужно настроить в параметрах, это отображение осей. На фасадах показываются только крайние оси и оси на перепадах высот.
Настройки показа осей находятся на вкладке «ПОКАЗ ОСЕЙ». Выбираем значение «Выбранные» в пункте «Показать Оси по Маркировке». Затем кликаем на кнопку «Выбор элементов…». В открывшемся окне отмечаем оси, которые должны остаться на фасаде. Жмем «ОК».

Также лишние оси можно просто удалить, они будут удалены только на фасаде.
Перейдем на вкладку «ПОКАЗ МОДЕЛИ» и посмотрим, как можно настроить отображение элементов.
Тени на фасаде
Для того чтобы включить тени на фасаде найдите вкладку «СОЛНЦЕ И ТЕНИ» и отметьте пункт «Солнечные Тени». Параметры высота и азимут солнца оставляем по умолчанию равным 45 градусов.

Теперь попробуем различные варианты отображения цвета поверхностей. Эти настройки находятся во вкладке «ПОКАЗ МОДЕЛИ» → «ВИДИМЫЕ ЭЛЕМЕНТЫ».
Белый фасад в ARCHICAD
Чтобы сделать заливку всех элементов на фасаде белыми в пункте «Штриховка Видимых Поверхностей» выбираем значение «Единое Перо». Затем выбираем цвет пера в пункте «Перо Видимых Поверхностей».

Если включить параметр «Векторная 3D-штриховка» поверхности будут отображаться со штриховкой, которая назначена материалу.
Фасад в цвете
Чтобы элементы на фасаде стали цветными в пункте «Штриховка Видимых Поверхностей» выбираем значение «Цвета Собственного Покрытия».
Цвет поверхности будет зависеть от цвета покрытия. Покрытия настраиваются через меню «Параметры» → «Реквизиты Элементов» → «Покрытия…».

Фасад с текстурами в ARCHICAD
Используя только инструмент «Фасад» невозможно создать фасад с исходными текстурами, которые отображаются в 3D-виде.
Для фасадов в ARCHICAD используется векторный механизм отображения. Поэтому единственный выход – создать рабочий лист и заменить обычные штриховки на штриховку-рисунок.
Как работать со штриховками, подробно описано в статье – «Штриховки в ARCHICAD».
Чтобы создать рабочий лист перейдите на фасад. Выберите инструмент «Рабочий Лист», он находится в панели инструментов на вкладке «Документирование». Затем задайте область, после этого в навигаторе появится новый рабочий лист.
В рабочем листе все элементы преобразуются в линии и штриховки и с ними можно работать дальше.

В итоге можно получить такой результат:

На этом все, мы немного разобрались в достаточно обширной теме. Теперь вы сможете создавать и настраивать фасады в ARCHICAD.
Кстати, настройки отображения фасадов мало чем отличаются от разверток. У нас есть отдельная статья на эту тему – «Развертки стен в ARCHICAD».
ARCHICAD






