Элементы и комплектующие откатных ворот
Основную часть конструкции представляет створка откатных ворот. Нижняя часть оснащается роликовым механизмом, за счет которого происходит открытие и закрытие ворот. Движение осуществляется по забетонированным рельсовым швеллерам. Чтобы во время движения створку не перекашивало, в верхней части устанавливаются дополнительные ролики. Так как на них ложится меньшая нагрузка, то нет необходимости в установке мощных элементов.
Для снятия нагрузки с рамы в закрытом положении и для надежной фиксации, в нижней части створки установлен улавливатель, который при закрытии фиксируется концевым роликом. Аналогичный механизм фиксации устанавливается в верхней части.
Также на откатных воротах и заборе, устанавливаются дополнительные элементы – фурнитура. Приобретайте комплектующие только известных и проверенных производителей. Высокая стоимость продукции не свидетельствует о качестве фурнитуры.
Преимущества и недостатки
Рассматривая преимущества откатных конструкций, необходимо выделить следующие моменты:
- Оптимизация пространства. В отличие от распашных ворот, во время открытия и закрытия, передняя и задняя часть подъездного пути к загородному дому, остается свободной.
- Беспрепятственное открытие в заснеженные зимы. Особенно это актуально для регионов с суровым климатом, где снег является нормой.
- Удобство открытия. Правильно установленный и качественный механизм, сделает передвижение плавным и не затруднительным.
- Широкий выбор декора. Обшивка откатной конструкции, может быть произведена практически из любого материала, отвечающего требованиям прочности и надежности.
Недостатки конструкции:
- Высокая стоимость. Готовая конструкция стоит очень дорого.
- Необходимо бетонирование основания. Для надежного удержания, требуется заливка фундамента.
- Постоянный осмотр и ремонт подвижных частей механизма. Особенно это касается времени, когда на дворе идет снег или дождь.
Материал
Распространенными материалами при изготовлении откатных ворот служат металл и древесина. Каждый материал обладает своими преимуществами и недостатками.
Достоинства откатных конструкций из металлического профлиста:
- Уровня прочности достаточно для сборки конструкции.
- Устойчивость к механическим повреждениям.
- Доступная цена.
- Простая сборка. Собрать конструкцию можно самостоятельно.
- Устойчивость к образованию коррозии. Профлисты имеют специальное покрытию, препятствующее образованию ржавчины.
- Разнообразный выбор цветов. Можно выбирать под общее ландшафтное оформление.
- Долгий срок службы. Профилированный лист имеет срок службы до 20 лет и более.
Преимущества деревянных откатных сооружений:
- Доступность материала для строительства ворот.
- Для сборки понадобится минимальное количество инструмента.
- Дерево, как отделочный материал, поддается различным видам отделки резке, резьбе и прочим действиям.
- Подходят, если частный дом выполнен из деревянного сруба или бруса.
- Практичные и имеют привлекательный вид
Деревянная обшивка
Недостатки:
- Непродолжительный период эксплуатации.
- Недостаточный уровень прочности.
- При столкновении с открытым огнем, склонны к быстрому возгоранию.
- Не способны обеспечить должный уровень безопасности.
Декор
Голый каркас откатных ворот, практически никогда не используется – поверх основания проводится декорирование различными декоративными элементами. Исключения составляют ворота из профнастила.
В зависимости от выбранного исходного материала для строительства откатной конструкции, декорирование может проводится при помощи следующих элементов:
- Металлические рамы украшаются кованными узорами, уголками и габаритными рисунками.
- Вертикально располагают металлические винтовые пруты с фигурными наконечниками.
- Деревянные ворота могут собираться из отдельных планок.
- На массиве вырезаются узоры и орнаменты. Совместно с полотном створки декорируются столбы.
Откатные ворота своими руками: фотоотчет с пояснениями
Эти ворота сделаны на основе готового комплекта, раму делали сами, также самостоятельно монтировали
Ворота ставились в Москве, соответственно цены — столичные. Ставили их в 2010 году, с тех пор комплекты сильно подешевели. Например, «свежая» цена привода для полотна весом не более 400 кг (есть до 1,2 т) — около 100$, но это — бюджетный вариант. Во времена строительства приобретены комплектующие фирмы Rolling Center (лучшие тогда на рынке) с ведущей балкой длиной 6 метров. Были также заказаны отдельно верхний ловитель и кронштейн. Все с доставкой обошлось около 600$.
Также были куплены следующие материалы:
- профильная труба 80*60 мм — 6 м, 60*40 мм — 18 м, 40*20 мм — 36 м;
- швеллер — 180 мм — 3 метра, 200 мм — 2,4 метра;
- арматура 12 мм — 6 м;
- электроды — 2 кг;
- краска — 3 банки, кисти, заклепки;
- цемент М-400 — 5 мешков;
- профнастил покупался при изготовления забора.
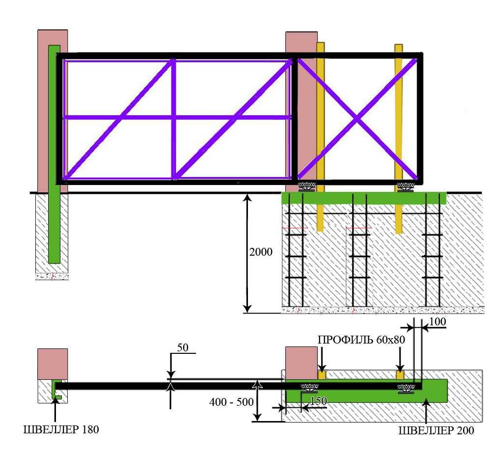
Схема откатных ворот с размерами
Первым делом сварили каркас для ворот с противовесом. Раму (черным цветом) делали из профильной трубы 60*40 мм, перемычки и внутренний каркас (сиреневый) из трубы 40*20 мм. Внизу приварена направляющая балка разрезом вниз.
Как варилалсь рама
Внутренний каркас варили с отступом от края — по 20 мм с каждой стороны. Так удобнее потом крепить профлист, при желании можно и изнутри обшить.
Как приваривать профильную трубу 40*20 мм
Сначала залили фундамент. В него установили арматуру, сверху швеллер спинкой вверх. Вплотную к швеллеру две стойки из профилированной трубы 80*60 мм. Одна стойка примыкает к столбу, вторая выставлена вертикально на расстоянии 120 см. На них потом навешиваются ролики, которые придерживают полотно сверху. С другой стороны, вдоль ответного столба установили швеллер 180 мм.
Швеллер на 180 мм прикрепили к ответному столбу
Примерка на месте
На ответной части к швеллеру вверху и внизу закреплены уловители, которые не дадут воротам болтаться при ветре.
Установленные на приемном столбе упоры
Верхний и нижний уловители
Следующий шаг — установка пластин с роликами. Они крепятся к закладным. В данном случае это швеллер, потому пространство получилось большое. Когда делали фундамент, его сделали слишком высоким, потому пластины приваривались непосредственно к закладной. Это непрактично: если поломается ролик, поменять его будет проблематично. Обычно приваривают площадку, к которой потом на болтах крепят площадку с роликами.
Приварены роликовые площадки и на них «наехали» роликами
Готовый каркас ворот просто накатывают на закрепленные ролики.
Фото створки на роликах с разных ракурсов
После установки на опорную балку с обоих концов надевают заглушки. С дальней стороны устанавливается еще упорное колесо, которое в закрытом положении заезжает в нижний уловитель, приподнимая ворота и снимая нагрузку с роликов.
Установка заглушки и упорного ролика (балка на фото перевернута)
Теперь, чтобы ворота не «гуляли» в верхней части (они сейчас ничем не закреплены), к стойкам (80*60 мм) крепят комплекты верхних роликов — по одному на стойку. Их практически надевают на раму. Теперь имеющиеся внутри ролики будут придерживать ее вверху.
Верхние ролики крепят на стойки, захватывая верхнюю кромку ворот
Так выглядят установленные верхние ролики
Все, откатные ворота своими руками собраны и готовы к эксплуатации.
Как выглядят откатные ворота со двора
Если остались вопросы, посмотрите видео. В нем собирают готовый комплект, весь процесс станет понятнее.
Установка своими руками
Если вы решили самостоятельно установить откатные ворота, то вам понадобятся следующие инструменты:
- Лопата;
- Сварочный аппарат;
- Лом;
- Рулетка;




- Уровень;
- Молоток;
- Дрель (запаситесь сверлами по металлу);
- Болгарка.




Полотно раздвижных ворот нужно устанавливать вдоль забора. Заранее позаботьтесь о свободном пространстве для откатки створки. Для этого рекомендуется приготовить подробный чертеж будущей конструкции. Купите все необходимые материалы в специализированных магазинах и приступайте к монтажным работам.

Для начала изготовьте и установите столбы. Можно использовать простые бетонные варианты, прочную металлическую трубу или деревянные бруски. Специалисты рекомендуют бетонировать данные детали, чтобы они были более устойчивыми и надежными.

Теперь можно переходить к укладке фундамента. Его следует разместить вдоль забора и качественно забетонировать. Для этого необходимо подготовить траншею с глубиной около 1 м и шириной не меньше 0,5 м.


Далее следует заняться изготовлением металлической части откатных ворот. Для этого пригодится металлический швеллер (его ширина должна составлять 14-15 см, а длина должна равняться длине фундамента). После этого к швеллеру нужно приварить небольшие ножки из металла диаметром 13 мм. Затем металлическую часть необходимо уложить в выкопанную траншею (ножками вниз) и забетонировать.

Теперь нужно подождать неделю до того момента, пока бетон полностью не высохнет. Это время не стоит терять зря – лучше заняться изготовлением откатных ворот.
Еще одним важным этапом является сварка и покраска щита. Сначала при помощи болгарки необходимо удалить с металлических оснований следы коррозии (если таковые имеются), а также заметные масляные следы. После этого материал нужно обезжирить (для этого подойдет бензин). Далее следует нанести специальную грунтовку с антикоррозийными свойствами и оставить конструкцию до полного высыхания.

После нанесения и высыхания грунтовки можно переходить к процессу варки рамы. Для этого пригодится рельс с длиной в 6 м. Его нужно положить так, чтобы разрез смотрел вниз. Затем к нему следует приварить профильную трубу. Ее размер должен составлять 60х30х2 мм. Далее на эту трубу устанавливаются вертикальные стойки и так же привариваются. Эти детали должны иметь аналогичный размер.

Не забудьте о последнем, но не менее важном штрихе – варите внутреннюю трубу с размером 40х20х2. В завершении необходимо обработать и зашлифовать получившиеся швы, чтобы конструкция выглядела аккуратно, а потом нанести на готовое полотно еще один слой грунтовки

Щит можно красить при помощи обычной кисти, но лучше пользоваться специальным краскопультом. Тогда весь процесс займет меньше времени, а результат вас обязательно порадует. После того, как краска полностью высохнет, следует обшить основу деревом, пластиковым листом или профнастилом.

Теперь можно переходить к установке механизма ворот. Роликовую систему нужно установить на швеллер. Закрепление этой детали происходит с помощью боковой части. Затем роликовую систему укладывают на специальные тележки. После этого полотно следует установить вдоль забора и приварить. Что касается улавливателей и подвижных роликов, то их следует закрепить на несущих столбах. Для фиксации этих деталей можно использовать сварку, дюбели или хомуты.


Управление воротами может происходить с помощью автоматической системы. Ее вполне можно собрать своими руками. Более того, такая работа позволит сэкономить деньги, поскольку собственноручный сбор автоматики обойдется намного дешевле, чем покупка готовой системы. Но не думайте, что изготовить свою автоматику будет просто. Для этого понадобится немало усилий и свободного времени.

Замеры и материалы для установки откатных ворот
Изготовить откатные ворота своими руками вполне возможно, и в первую очередь благодаря тому, что стало доступным приобретение комплектующих.
Помимо основного материала, для установки откатных ворот потребуются металлические трубы диаметром 2 см для создания основы конструкции, к которой впоследствии будут крепиться профлисты или другой материал обшивки.
Желательно подбирать цельные листы, чтобы на каждой створке ворот швы были только в местах соединения по краям и на стыках с трубами.

После проведения замеров закупаются все необходимые материалы, после чего можно приступать к работе. В первую очередь следует установить опорные столбы для будущих ворот. Для изготовления опор можно использовать стальные трубы, швеллер или дубовый брус либо их роль могут выполнять кирпичные или бетонные столбы. По обе стороны будущих ворот следует выкопать ямы глубиной 1м, затем в них установить столбы и после этого произвести заливку бетоном. Бетонный раствор окончательно застывает примерно через неделю.
Необходимые материалы для установки откатных ворот своими руками показаны на этих фото:




Выбор материалов для откатных ворот
Ворота защищают внутреннее пространство двора от посягательств, поэтому материал зашивки должен выдерживать удары и другие нагрузки. Каркас полотен делают из металлической трубы, из аналогичного материала выполняют подкосы и диагонали створки. Для заполнения используют металл не меньше 2 мм толщиной или ставят профилированные листы с цинковым покрытием или окрашенные поливиниловыми составами.
Из фурнитуры потребуется:
- профиль для направляющей балки;
- ролики;
- каретка для колесиков;
- улавливатели;
- концевой ролик;
- захватное приспособление;
- заглушка;
- комплект автоматического управления.
Заполнением могут служить деревянные щиты, сэндвич-панели. В качестве роликового прогона используют швеллер, тавр, двутавр, уголки.
Виды
Откатные ворота по принципу управления бывают подвесными, консольными и передвигающимися по рельсу. Кроме того, они подразделяются на одностворчатые и двустворчатые конструкции, последние, к слову, стоят дороже, поскольку для установки потребуется в два раза больше фурнитуры. Также следует отметить, что откатные ворота, изготовленные из металла, бывают сплошными, их еще называют «глухими», и решетчатыми. Решетчатые изделия, в свою очередь, делятся на изделия либо массового производства, либо выполненные под индивидуальный заказ – кованые.
Реже всего устанавливается подвесная система, и, как правило, на промышленных предприятиях или на коммерческих территориях. Движение воротного полотна осуществляется за счет верхней балки, которая чем-то напоминает рельс. Непосредственно на металлической балке располагаются ролики.
Плюсами такой системы можно считать простоту в управлении, долговечность, а благодаря тому, что весь процесс работы механизма налажен в верхней части ворот, нижняя часть остается свободной, соответственно, зависимости от погодных условий нет.
Пожалуй, главным недостатком такой системы можно считать ограничение по высоте. Если на огороженную территорию понадобиться заехать большегрузу, с большой долей вероятности он не проедет.
Как такового ограничения по высоте у откатных ворот, передвигающихся по рельсу, нет. Рельс монтируется на поверхность, для которой заливается бетонное основание. К полотну приваривается ролик, который скользит по рельсу.
Зачастую такую разновидность откатных ворот устанавливают в частном секторе. Они в открытом виде удерживаются посредством металлического каркаса. При этом створки могут быть открытого или закрытого типа, а через глухие полотна не будет просматриваться территория участка.
К достоинствам рельсовой системы можно отнести простоту механизма. К слову, некоторые умельцы даже изготавливают устройство своими руками. Еще один плюс – это, несомненно, компактность. В режиме «калитка» полотно можно отодвигать на небольшое расстояние, необходимое для прохода человека, а благодаря ролику створка не провисает, Поэтому для такой системы частая регулировка не потребуется, в отличие от распашных ворот.
Но поскольку рельс располагается на бетонной поверхности, атмосферные осадки могут вывести механизм из строя, заблокировать его работу
Поэтому важно периодически убирать мусор и снег с пути следования ролика. Имейте в виду, специалисты рекомендуют монтировать рельс в бетонный фундамент «заподлицо», это позволит минимизировать вред, наносимый транспортом на направляющую. В консольных воротах рельс, удерживающий створку, крепится непосредственно к полотну
Он может быть закреплен в нижней, верхней части полотна либо посредине – особой разницы в этом нет. Главное, чтобы рельс был нужной длины, достаточной для удержания створки. Иначе потребуется установка дополнительного электропривода с противоположной стороны, после чего двустворчатые ворота будут открываться и влево, и вправо
В консольных воротах рельс, удерживающий створку, крепится непосредственно к полотну. Он может быть закреплен в нижней, верхней части полотна либо посредине – особой разницы в этом нет. Главное, чтобы рельс был нужной длины, достаточной для удержания створки. Иначе потребуется установка дополнительного электропривода с противоположной стороны, после чего двустворчатые ворота будут открываться и влево, и вправо.
Поскольку направляющая балка устанавливается на полотне, зависимости от чистоты фундамента или от высоты – нет. Для уравновешивания веса ворот необходимо, чтобы полотно было в полтора-два раза длиннее проема, в противном случае наладить правильную работу изделия не получится.
Имейте в виду, что рельс, или как его еще называют «швеллер», можно установить и на глухие, и на решетчатые конструкции. При этом потребуется залить основательный фундамент, чтобы опоры не вырвало от веса ворот.


Как сделать консольные откатные ворота
Эта конструкция хороша тем, что над проездом нет балок. Но она — самая дорогая в устройстве. Дело не столько в системе роликов, сколько в необходимости устройства фундамента с металлическими закладными, к которым затем будет крепиться консольная балка. Если столбы уже есть, фундамент заливается перед ним и вдоль забора на длину технического выноса, который необходим для компенсации нагрузки, создаваемой полотном.
Комплектация консольных ворот
Даже если делают консольные откатные ворота своими руками, комплект, состоящий из направляющей балки, роликов, концевых роликов и уловителей покупают обычно в фирме. Все запчасти рассчитываются исходя из размеров полотна, материала каркаса и типа обшивки: вес имеет существенное значение. Потому желательно со всеми этими параметрами определиться заранее.
Зная длину несущей балки, вы сможете рассчитать необходимый размер фундамента. По типу — это ленточный фундамент, котлован под него копают ниже глубины промерзания грунта (для каждого региона она своя), в который закладывают армированные опоры под пластины с роликами, а также устанавливают стойки. К этим стойкам затем крепится комплект верхних роликов, удерживающих полотно и не дающих ему раскачиваться.
Как рассчитать фундамент под крепление для консольной балки
Сложного при расчете ничего нет. Фундамент по длине равен почти половине длины пролета. Если пролет 4 метра (ширина проезда или расстоянием между столбами), то фундамент должен быть 1,8-2 м. Ширина его 40-50 см, глубина — ниже глубины промерзания грунта для региона.
Фундамент под консольную балку при строительстве откатных ворот
Котлован выкапывают еще на 10-15 см глубже — под гравийно-песчаную подушку. Этот фундамент армируют (по типу ленточного), в верхней его части к арматуре приваривается швеллер (18 или 20) и все это заливают бетоном. Швеллер выставляется в «нулевой» уровень, то есть он должен стоять на одном уровне с уровнем грунта или материалом, которым отделан двор.
Подготовленное армирование и закладной швеллер
Есть более дешевый и быстрый вариант, но по надежности он уступает описанному выше. В грунт вкручивают три винтовых металлических сваи, к ним приваривают швеллер.
Установка роликовых опор
К закладному швеллеру привариваются шпильки, к ним потом на болтовых соединениях крепятся платформы с роликами. Иногда можно встретить варианты, когда платформы приварены сразу к закладной. Это неправильно. Существует довольно большая вероятность того, что фундамент или столб забора даст усадку. Даже небольшое смещение — и ваши ворота работать не будут. Если ролики со шпилек можно снять, шпильки переварить и все собрать на место, то как корректировать если платформа приварена? Срезать? Сложно, долго, без гарантий. Так что лучше в этом случае делать все по правилам.
Пример крепления роликовых площадок
При покупке обратите внимание на роликовые каретки и на сами ролики. Это обязательно закрытые подшипники качения. Они обычно располагаются в два ряда по 4 штуки в каждом
Смазка в них должна быть морозостойкой — нижний предел температур -60°C. Осмотрите платформу, на которой они крепятся. Она должна быть стальной, литой, хорошего металла с оцинкованной поверхностью, покрыта защитной смазкой
Они обычно располагаются в два ряда по 4 штуки в каждом. Смазка в них должна быть морозостойкой — нижний предел температур -60°C. Осмотрите платформу, на которой они крепятся. Она должна быть стальной, литой, хорошего металла с оцинкованной поверхностью, покрыта защитной смазкой.
На ролики накатывается опорная балка, потому основную нагрузку несут они
Покатайте ролики. Все должны кататься без усилий, и не должны иметь люфта (не должны шататься из стороны в сторону). Тогда можно быть уверенным, что ворота будут ездить легко и откатной механизм будет работать продолжительное время (некоторые фирмы дают гарантию 10 лет). Ведь большая часть нагрузки приходится именно на ролики, потому их качество ключевой момент, как и сбалансированная конструкция полотна.
Остальные этапы монтажа более понятно будут описаны в фото-отчете: ворота собраны самостоятельно, без привлечения специалистов.
Этапы монтажа конструкции
Сделать функциональные конструкции помогут чертежи, фото и видео откатных ворот. Своими руками можно сделать любую выбранную модель. Для этого потребуется подготовить специальные инструменты и материалы.

Перед монтажными работами тщательно вымеряются все размеры
Необходимый набор инструментов
Для установки откатных конструкций необходимо подготовить следующие специализированные инструменты:

Для использования сварочного агрегата необходимы профессиональные навыки

Воздушный компрессор помогает очень быстро произвести покраску

Также потребуется дрель, пассатижи и рулетка.
Устройство фундамента
Как возвести фундамент можно посмотреть на видео. Откатные ворота своими руками следует начинать с разметки места. Ширина траншеи должна быть около полуметра. В качестве опор используются столбы для забора. При монтаже автоматической конструкции нужно предусмотреть место под укладку электрического кабеля. При монтаже основы под забор используется швеллер с арматурой. Бетонная смесь должна застывать в течение шести суток.

Монтаж швеллера требует точных расчетов и аккуратности
Возвести фундамент можно следующими способами:
- при монтаже свайного монолитного фундамента в почву устанавливаются два столба, которые соединяются швеллером. Для выемки почвы применяется садовый бур. Ямки должны располагаться близко к ограждению и соединяться траншеей;
- для установки свайной винтовой основы нужно сваи вкручивать в землю.

На фундамент приходится вся основная нагрузка
Установка конструкции
Разметка выполняется перед тем, как производится сборка откатных ворот своими руками. Чертежи, схемы, эскизы, конструкция проекта помогут поставить отметки правильно. По отметке проема протягивается шнур, который обозначает траекторию передвижения створок. Также следует произвести фиксацию участков регулировки. Затем определяется расстановка опор с роликами.

На схеме показаны все основные элементы сборки
Монтаж подобного забора состоит из следующих этапов:
- предварительная заготовка роликовых тележек;
- сборка системы;
- регулировка положения роликовых опор;
- монтаж закрывающего ролика и заглушки основного профиля;
- крепление направляющих кронштейнов;
- установка опоры и обшивание полотна;
- крепеж механизма ловителей и автоматики;
- регулировка с помощью гаечного ключа.
После регулировки движения полотна выполняется установка кольцевого ролика. Его нужно разместить внутри основной конструкции и зафиксировать крепежными болтами. Далее устанавливается верхний элемент с роликами, которые должны захватывать верх полотна. Установка уловителя позволяет уменьшить вес на роликовые тележки. Элемент собирается при закрытых створках.

Для сборки конструкции понадобятся специальные инструменты и дополнительные материалы
Покраска
После установки конструкции полотна можно окрасить в разнообразные цвета. Используется только стойкая и качественная краска. Чтобы покрытие сохранилось долгое время, поверхность тщательно зачищается с применением шкурки, а затем обезжиривается ее ацетоном. После очистки конструкция грунтуется. Для этого можно использовать валик, кисть или окрасочный пистолет. Затем выполняется окрашивание в несколько слоев. В зависимости от вида краски на высыхание уходит от нескольких часов до дней.

Монтажные работы
Сооружение каркаса
Трубы при помощи электроинструмента нарезают в соответствии с размерами, отмеченными в проекте. Далее собирается рама: методом сварки скрепляют все угловые соединения, приваривают стыковочные места. Сварные швы шлифуют, каркас проходят грунтовкой с антикоррозионными добавками и окрашивают алкидной эмалью.
Створку полотна зашивают с одной или с двух сторон. В первом варианте каркас приваривают вровень с лицевой частью рамы. Второй вариант предусматривает сварку посередине: в раму закладывают готовый каркас и проваривают небольшими участками. К раме, а точнее, к нижней ее части приваривают направляющие.
Обустройство фундамента

Для начала необходимо выполнить разметку для будущего фундамента. Далее выполняется установка ответного столба, чтобы не уменьшить проем, его располагают со стороны участка. Оставляют место под электрические кабели для подведения автоматики в дом.
Следующий этап – подготовка котлована, его глубина обычно не превышает 2 м. Далее по ширине рва закладывают швеллер. К швеллеру приваривают арматуру диаметром 12 мм. Закладка элемента выполняется арматурой вниз, швеллер устанавливают по уровню, параллельно открытию ворот. Бетонные работы выполняют только после укладки закладного элемента.
Установка ворот на участке
После полного застывания бетона можно приступать к установке ворот. Первоначально делают разметку. Далее две каретки размещают на некотором расстоянии друг от друга, а полотно ворот вставляют в направляющую рельсу. Систему необходимо отрегулировать, чтобы ворота не доезжали до края одной каретки примерно на 10 см.
После заваривания стыковочных участков каретки и закладной полости, выполняют установку оставшихся деталей: верхних роликов и металлической пластины на анкерных болтах. К столбу необходимо прикрепить отрезок трубы, на ней впоследствии будут установлены верхний и нижний ловители. По окончанию монтажных работ устанавливаются резиновые заглушки.
Об установке откатных ворот своими руками смотрите видео:
Выбор автоматики для откатных ворот
Хотя откатная створка отлично открывается и вручную, не создавая сложностей даже женщинам, детям и старшему поколению, все же гораздо комфортнее, когда все происходит автоматически. Для открытия (закрытия) будет достаточно легкого нажатия на брелок: вам не придется выходить из машины и тратить дополнительное время. Автоматизировать откатные ворота значительно проще и дешевле, чем распашные. Главным элементом системы управления является привод.

Чтобы система автоматизации откатных ворот исправно функционировала годами, при выборе привода нужно обращать внимание на несколько базовых параметров
- Рабочий ресурс мотора – от этого показателя зависит количество рабочих циклов электропривода.
- Мощность двигателя – подбирается исходя из габаритов и веса створки, модельный ряд начинается с двигателя мощностью 500 Вт, рассчитанного на конструкцию до 500 кг массой.
- Рабочий диапазон температур – оборудование должно функционировать без затруднений при -60 … +30 ˚С.
- Устойчивость к перепадам напряжения – в диапазоне 160-270 В.
- Простота управления – интуитивно понятный интерфейс, быстрая настройка.
- Универсальность – при необходимости в систему можно интегрировать управление уличным освещением и элементы безопасности (фотоэлементы, сигнальная лампа).

Даже в стандартной комплектации автоматика не только повышает уровень комфорта, но и обеспечивает безопасность эксплуатации откатных ворот. При этом стоимость базового комплекта автоматики с приводом, монтажным набором, пультами ДУ и ключами разблокировки в рамках общего бюджета, выделяемого на откатные ворота, не столь значительна, чтобы отказаться от него в целях экономии.
Особенности проектирования конструкции
Чтобы сделать ворота своими руками, чертежи, схемы и эскизы конструкции понадобятся для оценки потребностей в материале, определения стоимости строительства, составления плана работ, размещения элементов системы на местности.
Размеры полотна. Считаем оптимальную ширину и высоту проема
Основой всей конструкции является направляющая, которая двигается по роликам. Ее длина равна продольному размеру створки и противовеса или сумме длин 2 створок и 2 противовесов, если используется двухстворчатая синхронная схема.
Проем под ворота делают исходя из размеров транспорта, который будет въезжать. Например, чтобы под углом 45˚ смог заехать КАМАЗ-самосвал, нужна ширина не менее 4,5 м. Чтобы проехал легковой автомобиль, достаточно 3-3,5 м.
Т. к. у систем консольного типа в отличии от подвесных отсутствует верхняя перекладина, высоту проема планировать не нужно. А высота полотна принимается выше среднего человеческого роста – 1,85-2,2 м.
Расчет противовеса
Механизм откатных ворот работает за счет роликов, которые выносят за проем. Если используется одностворчатая система, то их понадобится 1 пара. В случае, когда ставится конструкция из 2 ширм, используют 2 пары тележек.
Срок их службы, а также легкость, с какой будут работать створки, зависит от правильности расчета противовеса.
Более экономичная конструкция предполагает противовес в 1/3 длины створки, выполненный в форме треугольника.
Делать такое устройство оправданно, если не хватает места для нормальной схемы в виде прямоугольника, который является продолжением створки и составляет ½ ее длины.
Полноценная конструкция противовеса упрощает сдвиг створок вручную, облегчает работу автоматике, увеличивает срок эксплуатации кареток.

Расчет веса
При устройстве сдвижных ворот своими руками без автоматики или с электроприводом требуется расчет по массе. Утяжеленная конструкция нуждается в более прочных комплектующих – роликах и направляющей балке, усиленном фундаменте и повышенной мощности автоматического устройства открывания.
Вес вычисляют, сложив вместе значения для металла, который используется в каркасе и обшивке створок. Полученную величину лучше увеличить на 30-40%, чтобы учесть возможные ветровые нагрузки. Запас понадобится при выборе и покупке фурнитуры.
Чертежи и схемы
Лучше, если на чертежах ворота на роликах представлены в видах:
- Общей структурной схемы.
- Схемы для закладной площадки.
- Монтажной схемы для изготовления конструкции.
- Вспомогательными чертежами: кареток с направляющей, концевика, опорной скобы, полотна с направляющей рейкой.
Сборка откатных ворот
К швеллеру привариваются роликовые каретки. Для правильного функционирования створок нужно добиться идеального выравнивания.
Для ровной установки полотна можно использовать лазерный уровень или шнур. По центу швеллера устанавливаются пластины, на которые прикрепляются роликовые тележки с помощью болтов.
После этого нужно еще раз все замерить и проверить функциональность тележек.
Для правильной установки ворот вдоль их хода натянуть веревку или шнур, который поможет ориентироваться при монтаже.
Сверху монтируются направляющие – они необходимы для противодействия раскачиванию ворот при ветре и их остановке при движении. Для этого на столбы устанавливается кронштейны. После необходимо проверить движение полотна – оно должно двигаться строго вертикально.
Для плавного перемещения ворот и увеличения срока эксплуатации роликов устанавливают заглушки.
Концевые ролики устанавливают на направляющие с другой стороны столба в самом профиле.
Ворота закрывают наглухо и монтируют уловители, которые борются с провисанием и расшатыванием конструкции.





